Продажа

Загородный дом в хвойном лесу

8927
Маслово Парк, Рублёво-Успенское шоссе (25 км от МКАД)
315 000 000
3 335 377
3 080 829
2 619 680
Показать цену в
400 кв.м.
23 сот

Актуальность информации и точную стоимость уточняйте у менеджера: +7 (495) 800 67 76
Поделиться:
Дом

Общая плошадь
400 кв.м.

Кол-во спален
5

Отделка
Под чистовую

Тип застройки
Охраняемый поселок

Материал стен
Кирпич

Фундамент
Монолитный

Кровля
Эксплуатируемая кровля

Облицовка
Комбинированная
Участок

Площадь участка
23 сот.

Ландшафт
Лесной

Рельеф
Ровный

Разрешенное использование
Для жилищного строительства (ИЖС)

Населённый пункт
Маслово

Поселок
Маслово Парк

Расстояние до МКАД
25 км.
Коммуникации

Электричество
15 кВт.

Газоснабжение
Магистральный

Водоснабжение
Центральное

Канализация
Центральная
Дополнительно

Охрана
Есть

Бассейн
Нет
Описание объекта
Предлагаем к покупке загородный дом в хвойном лесу.
Планировка:
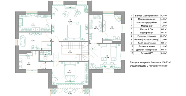
1-й этаж: входной холл, просторная гостиная с большим открытым камином, гостевая спальня, профессионально-укомплектованная кухня-столовая с барной стойкой  и выходом на просторную террасу с лаунж-зоной, санузел, постирочная, котельная, спальня-кабинет, кухня с выходом на малую террасу и зону барбекю;
2-й этаж: холл, 4 спальни с санузлом и просторной гардеробной, терраса с видом на тихий участок. Со 2-го этажа есть возможность выхода на 3-й этаж и эксплуатируемую крышу.

Посёлок "Маслово Парк" расположен на территории Масловского леса, посёлок граничит с загородным комплексом " Резиденция Маслово", на територии которого расположены оздоровительный комплекс со SPA и бассейном, футбольное поле, открытые и крытые теннисные корты.

Рядом находится новый парк Правительства Подмосковья Масловский Лес с дорожками и тропинками из гранитного отсева, корабельными соснами, площадками для волейбола, бадминтона и настольного тенниса, пространствами для отдыха с гамаками. Также жителям доступна богатая инфраструктура Николиной Горы, в том числе фитнес-центр с бассейном в Коттон Вэй, салоны красоты, рестораны, бары, футбольное поле, детские площадки, школы и детские сады.

Посёлок "Маслово Парк" отличает хорошая транспортная доступность и близость к столице.
Заявка на просмотр объекта
Вы даете свое согласие на обработку Ваших персональных данных
Узнавайте о новинках первыми, подпишитесь:
Спасибо за обращение! Мы свяжемся с вами в ближайшее время
Ваше имя Ваш телефон

Похожие объекты:

Продажа
2 361 052 500
1 180 526 2
250 сот. 2000 кв.м.
25 000 000
12 500 2
250 сот. 2000 кв.м.
23 092 062
11 546 2
250 сот. 2000 кв.м.
19 635 561
9 818 2
250 сот. 2000 кв.м.
Резиденция на большом участке! Рублёво-Успенское шоссе, 19 км ID: 9229 В избранное:
7 спален Эксклюзивный
Под ключ с мебелью
Подробнее
Продажа
57 000 000
199 301 2
5.5 сот. 286 кв.м.
603 544
2 110 2
5.5 сот. 286 кв.м.
557 483
1 949 2
5.5 сот. 286 кв.м.
474 037
1 657 2
5.5 сот. 286 кв.м.
Таунхаус в КП "Европа-3" Ильинское шоссе, 22 км ID: 9122 В избранное:
4 спальни Лесной
Под ключ с мебелью
Подробнее
Продажа
350 000 000
808 314 2
18 сот. 433 кв.м.
3 705 974
8 559 2
18 сот. 433 кв.м.
3 423 144
7 906 2
18 сот. 433 кв.м.
2 910 755
6 722 2
18 сот. 433 кв.м.
Новый дом в Миллениум Парке Новорижское шоссе, 19 км ID: 7601 В избранное:
4 спальни Газон
Под ключ
Подробнее
Продажа
199 000 000
398 000 2
10 сот. 500 кв.м.
2 107 111
4 214 2
10 сот. 500 кв.м.
1 946 302
3 893 2
10 сот. 500 кв.м.
1 654 972
3 310 2
10 сот. 500 кв.м.
Дом "под ключ" в КП "Усадьба Подушкинского Лесопарка" Рублёво-Успенское шоссе, 9 км ID: 8896 В избранное:
4 спальни Лесной
Под ключ
Подробнее
Аренда
350 000 / мес.
0.1 сот. 180 кв.м.
3 706 / мес.
0.1 сот. 180 кв.м.
3 423 / мес.
0.1 сот. 180 кв.м.
2 911 / мес.
0.1 сот. 180 кв.м.
4-х комнатная квартира в Соснах Рублёво-Успенское шоссе, 25 км ID: 7499 В избранное:
4 комнаты 2 сан. узла
Без отделки 1 этаж
Подробнее
Продажа
572 573 120
295 141 2
80 сот. 1940 кв.м.
6 062 689
3 125 2
80 сот. 1940 кв.м.
5 600 000
2 887 2
80 сот. 1940 кв.м.
4 761 772
2 455 2
80 сот. 1940 кв.м.
Резиденция на Ильинке! Новорижское шоссе, 10 км ID: 8742 В избранное:
4 спальни Смешанный
Под ключ с мебелью
Подробнее
Продажа
152 880 000
14.6 сот.
1 618 770
14.6 сот.
1 495 229
14.6 сот.
1 271 418
14.6 сот.
Земельный участок в КП "Миллениум парк" Новорижское шоссе, 19 км ID: 9222 В избранное:
Лесной
Подробнее
Продажа
1 038 863 100
465 858 2
35 сот. 2230 кв.м.
11 000 000
4 933 2
35 сот. 2230 кв.м.
10 160 507
4 556 2
35 сот. 2230 кв.м.
8 639 647
3 874 2
35 сот. 2230 кв.м.
Резиденция под отделку Новорижское шоссе, 23 км ID: 9002 В избранное:
6 спален
Без отделки
Подробнее
В избранном 0
Посмотреть избранное: 0
Скрыть
Отмена