Продажа

Дом под отделку в КП "Аносино-Парк"

8486
Усадьбы Аносино, Новорижское шоссе (25 км от МКАД)
36 500 000
386 480
356 985
303 550
Показать цену в
296.4 кв.м.
5.42 сот

Актуальность информации и точную стоимость уточняйте у менеджера: +7 (495) 800 67 76
Поделиться:
Дом

Общая плошадь
296.4 кв.м.

Кол-во спален
4

Отделка
Без отделки

Тип застройки
Охраняемый поселок

Материал стен
Кирпич

Фундамент
Монолитный

Кровля
Мягкая кровля

Облицовка
Комбинированная
Участок

Площадь участка
5.42 сот.

Ландшафт
Лесной

Рельеф
Ровный

Разрешенное использование
Для жилищного строительства (ИЖС)

Населённый пункт
Аносино

Поселок
Усадьбы Аносино

Расстояние до МКАД
25 км.
Коммуникации

Электричество
15 кВт.

Газоснабжение
Магистральный

Водоснабжение
Скважина

Канализация
Септик
Дополнительно

Охрана
Есть

Бассейн
Нет
Описание объекта
    Предлагаем к покупке дом в коттеджном посёлке  "Аносино Парк".
    1-й этаж: прихожая, холл, кухня-гостиная, кабинет, с/у гостевой, гардероб, теплогенераторная, гараж, терраса.
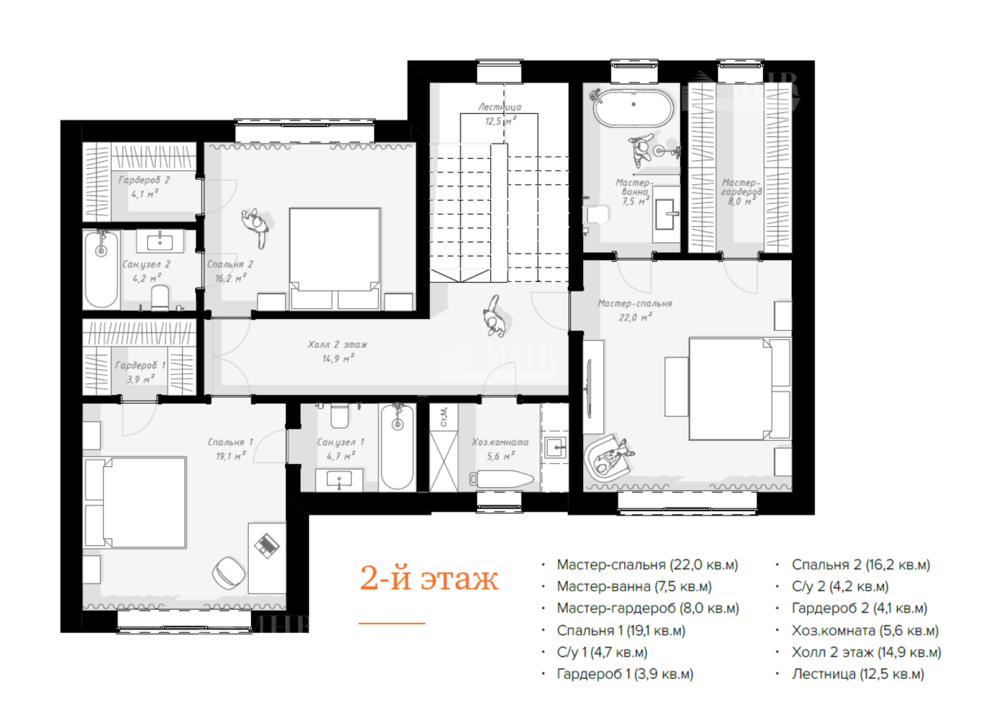
    2-й этаж: холл, мастер-спальня, мастер-ванна, мастер-гардероб, 2 спальни, 2 с/у, 2 гардеробные, хоз. комната.
    Видовой участок в полностью застроенной части посёлка, в 2-х минутах ходьбы от Парковой зоны.
    
Заявка на просмотр объекта
Вы даете свое согласие на обработку Ваших персональных данных
Узнавайте о новинках первыми, подпишитесь:
Спасибо за обращение! Мы свяжемся с вами в ближайшее время
Ваше имя Ваш телефон

Похожие объекты:

Продажа
250 000 000
403 226 2
24 сот. 620 кв.м.
2 647 125
4 270 2
24 сот. 620 кв.м.
2 445 103
3 944 2
24 сот. 620 кв.м.
2 079 111
3 353 2
24 сот. 620 кв.м.
Новый дом в классическом стиле Рублёво-Успенское шоссе, 24 км ID: 9099 В избранное:
6 спален Лесной
Под ключ с мебелью
Подробнее
Продажа
207 772 620
384 764 2
31 сот. 540 кв.м.
2 200 000
4 074 2
31 сот. 540 кв.м.
2 032 101
3 763 2
31 сот. 540 кв.м.
1 727 929
3 200 2
31 сот. 540 кв.м.
Дом в Монтевиле Новорижское шоссе, 25 км ID: 6333 В избранное:
4 спальни
Без отделки
Подробнее
Продажа
270 000 000
270 000 2
30 сот. 1000 кв.м.
2 858 894
2 859 2
30 сот. 1000 кв.м.
2 640 711
2 641 2
30 сот. 1000 кв.м.
2 245 440
2 245 2
30 сот. 1000 кв.м.
Большой дом на Николиной Горе! Рублёво-Успенское шоссе, 24 км ID: 7397 В избранное:
6 спален Смешанный
Под ключ с мебелью
Подробнее
Продажа
250 000 000
392 465 2
17 сот. 637 кв.м.
2 647 125
4 156 2
17 сот. 637 кв.м.
2 445 103
3 838 2
17 сот. 637 кв.м.
2 079 111
3 264 2
17 сот. 637 кв.м.
Новый современный дом "под ключ" с бассейном Минское шоссе, 23 км ID: 9043 В избранное:
4 спальни Прилесной
Под ключ
Подробнее
Продажа
75 000 000
342 466 2
10 сот. 219 кв.м.
794 137
3 626 2
10 сот. 219 кв.м.
733 531
3 349 2
10 сот. 219 кв.м.
623 733
2 848 2
10 сот. 219 кв.м.
Дом в стиле прованс в КП "Новорижский" Новорижское шоссе, 24 км ID: 8819 В избранное:
4 спальни Лесной
Под ключ с мебелью
Подробнее
Продажа
283 326 300
30 сот.
3 000 000
30 сот.
2 771 047
30 сот.
2 356 267
30 сот.
Участок в НПИЗ Барвиха Рублёво-Успенское шоссе, 9 км ID: 6704 В избранное:
Подробнее
Продажа
99 000 000
247 500 2
8 сот. 400 кв.м.
1 048 261
2 621 2
8 сот. 400 кв.м.
968 261
2 421 2
8 сот. 400 кв.м.
823 328
2 058 2
8 сот. 400 кв.м.
Дом в КП "Николина поляна" Ильинское шоссе, 20 км ID: 8450 В избранное:
4 спальни Лесной
Под ключ
Подробнее
Продажа
57 000 000
199 301 2
5.5 сот. 286 кв.м.
603 544
2 110 2
5.5 сот. 286 кв.м.
557 483
1 949 2
5.5 сот. 286 кв.м.
474 037
1 657 2
5.5 сот. 286 кв.м.
Таунхаус в КП "Европа-3" Ильинское шоссе, 22 км ID: 9122 В избранное:
4 спальни Лесной
Под ключ с мебелью
Подробнее
В избранном 0
Посмотреть избранное: 0
Скрыть
Отмена