Продажа

Уютный одноэтажный дом

7676
Рублёво-Успенское шоссе (17 км от МКАД)
45 000 000
476 482
440 118
374 240
Показать цену в
135.5 кв.м.
10 сот

Актуальность информации и точную стоимость уточняйте у менеджера: +7 (495) 800 67 76
Поделиться:
Дом

Общая плошадь
135.5 кв.м.

Кол-во спален
3

Отделка
Под ключ

Тип застройки
Охраняемый поселок

Материал стен
Блоки

Фундамент
Монолитный

Облицовка
Дерево
Участок

Площадь участка
10 сот.

Ландшафт
Смешанный

Рельеф
Ровный

Разрешенное использование
Для жилищного строительства (ИЖС)

Населённый пункт
Горки-2

Расстояние до МКАД
17 км.
Коммуникации

Газоснабжение
Магистральный

Водоснабжение
Центральное

Канализация
Центральная
Дополнительно

Охрана
Есть

Бассейн
Нет
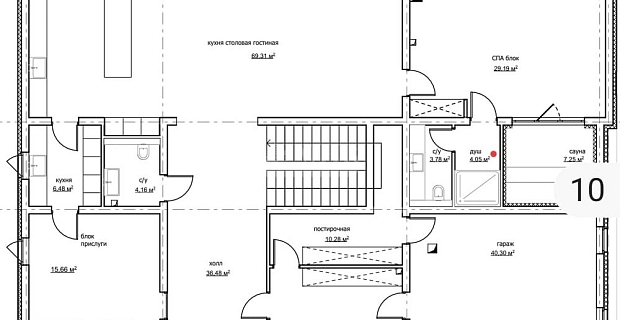
Описание объекта
Предлагаем к продаже компактный одноэтажный дом со стильной внутренней отделкой, без мебели.

Планировка:
1й этаж: холл, гардеробная, кухня-столовая, гостиная с выходом на террасу, две спальни,
санузел, основная спальня с гардеробной и ванной комнатой, постирочная.

На участке расположен гараж на 2 м/м, котельная.

Вокруг поселка вся необходимая инфраструктура, шклы,детские сады, тц и спортивные школы  Удобный выезд на платный дублер.
Заявка на просмотр объекта
Вы даете свое согласие на обработку Ваших персональных данных
Узнавайте о новинках первыми, подпишитесь:
Спасибо за обращение! Мы свяжемся с вами в ближайшее время
Ваше имя Ваш телефон

Похожие объекты:

Продажа
239 000 000
395 041 2
24 сот. 605 кв.м.
2 530 651
4 183 2
24 сот. 605 кв.м.
2 337 518
3 864 2
24 сот. 605 кв.м.
1 987 630
3 285 2
24 сот. 605 кв.м.
Новый дом на прилесном участке! Рублёво-Успенское шоссе, 18 км ID: 8990 В избранное:
5 спален Газон
Под чистовую
Подробнее
Продажа
305 000 000
342 697 2
25 сот. 890 кв.м.
3 229 492
3 629 2
25 сот. 890 кв.м.
2 983 025
3 352 2
25 сот. 890 кв.м.
2 536 515
2 850 2
25 сот. 890 кв.м.
Шикарный особняк в КП "Павлово-1" Новорижское шоссе, 16 км ID: 8119 В избранное:
7 спален Смешанный
Под ключ
Подробнее
Продажа
135 000 000
321 429 2
5.7 сот. 420 кв.м.
1 429 447
3 403 2
5.7 сот. 420 кв.м.
1 320 355
3 144 2
5.7 сот. 420 кв.м.
1 122 720
2 673 2
5.7 сот. 420 кв.м.
Торцевой таунхаус Ильинское шоссе, 12 км ID: 7813 В избранное:
5 спален Газон
Под ключ с мебелью
Подробнее
Продажа
283 326 300
452 598 2
19.5 сот. 626 кв.м.
3 000 000
4 792 2
19.5 сот. 626 кв.м.
2 771 047
4 427 2
19.5 сот. 626 кв.м.
2 356 267
3 764 2
19.5 сот. 626 кв.м.
Дом Рублёво-Успенское шоссе, 19 км ID: 7844 В избранное:
Подробнее
Продажа
240 000 000
648 649 2
15 сот. 370 кв.м.
2 541 240
6 868 2
15 сот. 370 кв.м.
2 347 298
6 344 2
15 сот. 370 кв.м.
1 995 947
5 394 2
15 сот. 370 кв.м.
Дом в Трувиле Минское шоссе, 20 км ID: 6873 В избранное:
4 спальни Эксклюзивный
Под ключ с мебелью
Подробнее
Продажа
100 000 000
666 667 2
1 сот. 150 кв.м.
1 058 850
7 059 2
1 сот. 150 кв.м.
978 041
6 520 2
1 сот. 150 кв.м.
831 644
5 544 2
1 сот. 150 кв.м.
Шикарная квартира под ключ с мебелью Рублёво-Успенское шоссе, 9 км ID: 3332 В избранное:
2 спальни Прилесной 3 комнаты 2 сан. узла
Под ключ с мебелью 3 этаж
Подробнее
Продажа
160 000 000
631 912 2
12.22 сот. 253.2 кв.м.
1 694 160
6 691 2
12.22 сот. 253.2 кв.м.
1 564 866
6 180 2
12.22 сот. 253.2 кв.м.
1 330 631
5 255 2
12.22 сот. 253.2 кв.м.
Стильный одноэтажный дом с видом на храм в КП "Крекшино" Минское шоссе, 20 км ID: 8865 В избранное:
4 спальни Лесной
Под ключ с мебелью
Подробнее
Продажа
97 000 000
388 000 2
12 сот. 250 кв.м.
1 027 084
4 108 2
12 сот. 250 кв.м.
948 700
3 795 2
12 сот. 250 кв.м.
806 695
3 227 2
12 сот. 250 кв.м.
Стильный коттедж с мебелью Ильинское шоссе, 21 км ID: 9014 В избранное:
3 спальни Газон
Под ключ с мебелью
Подробнее
В избранном 0
Посмотреть избранное: 0
Скрыть
Отмена