Продажа

Новый дом на прилесном участке!

8990
Бузаево, Рублёво-Успенское шоссе (18 км от МКАД)
239 000 000
2 530 651
2 337 518
1 987 630
Показать цену в
605 кв.м.
24 сот

Актуальность информации и точную стоимость уточняйте у менеджера: +7 (495) 800 67 76
Поделиться:
Дом

Общая плошадь
605 кв.м.

Кол-во спален
5

Отделка
Под чистовую

Тип застройки
Коттеджная застройка

Материал стен
Кирпич

Фундамент
Монолитный

Кровля
Плоская кровля
Участок

Площадь участка
24 сот.

Ландшафт
Газон

Рельеф
Ровный

Разрешенное использование
Для жилищного строительства (ИЖС)

Населённый пункт
Бузаево

Поселок
Бузаево

Расстояние до МКАД
18 км.
Коммуникации

Газоснабжение
Магистральный

Водоснабжение
Центральное

Канализация
Центральная
Дополнительно

Охрана
Есть

Бассейн
Нет
Описание объекта
Предлагаем к покупке абсолютно новый дом с чистовой отделкой на лесном участке в КП "Бузаево".

Большая зона остекления в доме, продуманное пространство, которое обеспечивает комфортное проживание большой семье. Лесной участок 24 сотки!

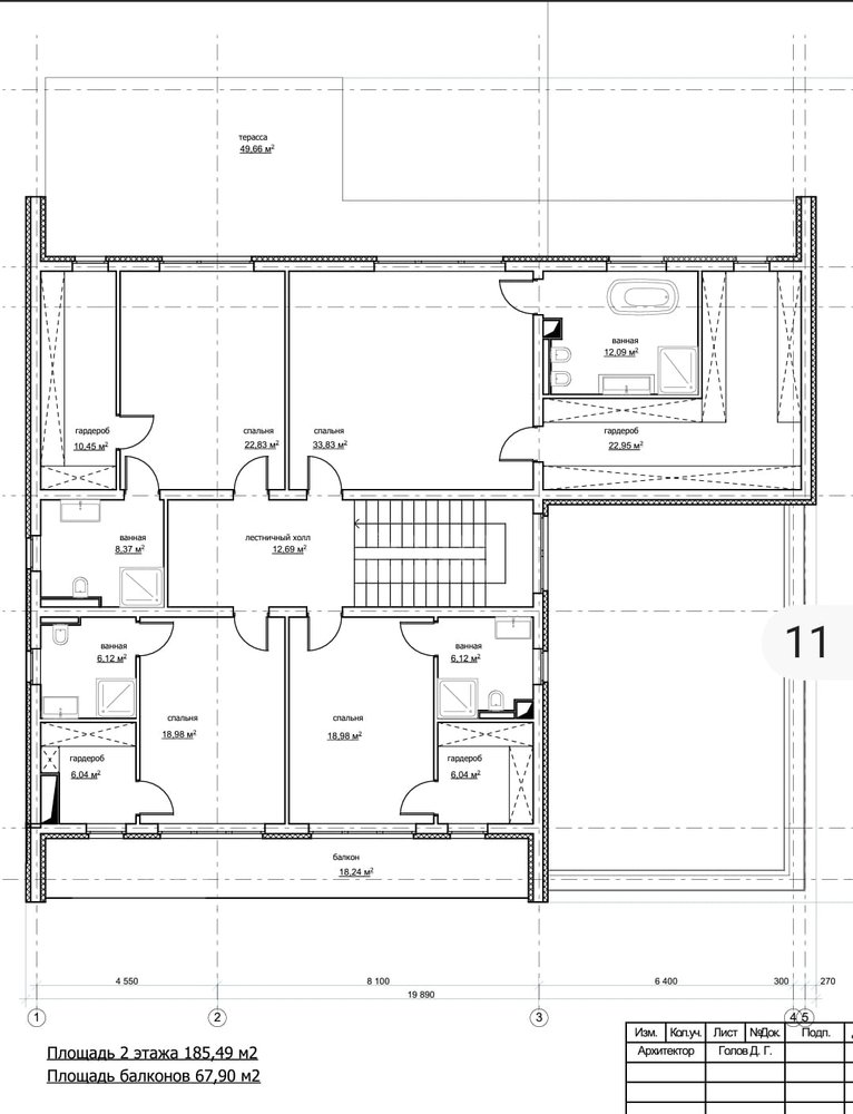
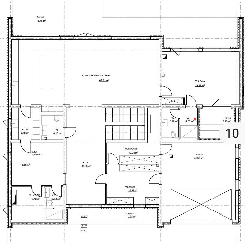
Планировка:
1 этаж: современная кухня-гостиная, идеально подходящая для семейных встреч и приёмов гостей, уютная спальня с собственным санузлом и гардеробной, прихожая, просторная гардеробная, котельная, гараж на 2 машино-места;
2 этаж: 4 спальни, каждая из которых оборудована собственным санузлом и гардеробной, что обеспечивает максимальный комфорт и приватность для всех жильцов.

Коттеджный поселок "Бузаево" расположен в 18 км по Рублево-Успенскому шоссе от МКАД, рядом разнообразная инфраструктура, школы , в том числа - Ломоносовская школа, спортивные комплексы, рестораны, магазины и много другое.
Заявка на просмотр объекта
Вы даете свое согласие на обработку Ваших персональных данных
Узнавайте о новинках первыми, подпишитесь:
Спасибо за обращение! Мы свяжемся с вами в ближайшее время
Ваше имя Ваш телефон

Похожие объекты:

Продажа
360 000 000
240 000 2
24.54 сот. 1500 кв.м.
3 811 859
2 541 2
24.54 сот. 1500 кв.м.
3 520 948
2 347 2
24.54 сот. 1500 кв.м.
2 993 920
1 996 2
24.54 сот. 1500 кв.м.
Большой дом с прекрасным ремонтом Рублёво-Успенское шоссе, 20 км ID: 9211 В избранное:
5 спален Лесной
Под ключ с мебелью
Подробнее
Продажа
74 900 000
244 771 2
8.4 сот. 306 кв.м.
793 079
2 592 2
8.4 сот. 306 кв.м.
732 553
2 394 2
8.4 сот. 306 кв.м.
622 902
2 036 2
8.4 сот. 306 кв.м.
Стильный фахверк на лесном участке Новорижское шоссе, 26 км ID: 6864 В избранное:
4 спальни Лесной
Без отделки
Подробнее
Продажа
298 000 000
754 430 2
11 сот. 395 кв.м.
3 155 372
7 988 2
11 сот. 395 кв.м.
2 914 562
7 379 2
11 сот. 395 кв.м.
2 478 300
6 274 2
11 сот. 395 кв.м.
Современный дом премиум-класса в клубном посёлке Gorki Lake Рублёво-Успенское шоссе, 16 км ID: 9140 В избранное:
4 спальни Лесной
Под ключ с мебелью
Подробнее
Продажа
295 000 000
732 010 2
24 сот. 403 кв.м.
3 123 607
7 751 2
24 сот. 403 кв.м.
2 885 221
7 159 2
24 сот. 403 кв.м.
2 453 351
6 088 2
24 сот. 403 кв.м.
Двухэтажный дом под ключ с мебелью Новорижское шоссе, 25 км ID: 9238 В избранное:
4 спальни Газон
Под ключ с мебелью
Подробнее
Продажа
280 000 000
742 706 2
13 сот. 377 кв.м.
2 964 779
7 864 2
13 сот. 377 кв.м.
2 738 515
7 264 2
13 сот. 377 кв.м.
2 328 604
6 177 2
13 сот. 377 кв.м.
Финский эко-дом под ключ Рублёво-Успенское шоссе, 16 км ID: 5461 В избранное:
4 спальни Газон
Под ключ с мебелью
Подробнее
Продажа
137 000 000
18 сот.
1 450 624
18 сот.
1 339 916
18 сот.
1 139 353
18 сот.
Земельный участок в ДПК Новь Рублёво-Успенское шоссе, 7 км ID: 8415 В избранное:
Смешанный
Подробнее
Продажа
944 421 000
787 017 2
30 сот. 1200 кв.м.
10 000 000
8 333 2
30 сот. 1200 кв.м.
9 236 825
7 697 2
30 сот. 1200 кв.м.
7 854 224
6 545 2
30 сот. 1200 кв.м.
Дом с дизайнерским ремонтом Рублёво-Успенское шоссе, 8 км ID: 6717 В избранное:
6 спален Эксклюзивный
Под ключ с мебелью
Подробнее
Продажа
225 000 000
409 091 2
50 сот. 550 кв.м.
2 382 412
4 332 2
50 сот. 550 кв.м.
2 200 592
4 001 2
50 сот. 550 кв.м.
1 871 200
3 402 2
50 сот. 550 кв.м.
Резиденция в стиле шале Новорижское шоссе, 16 км ID: 7776 В избранное:
4 спальни Смешанный
Под ключ с мебелью
Подробнее
В избранном 0
Посмотреть избранное: 0
Скрыть
Отмена