Продажа

Новый стильный дом с бассейном рядом со Сколково

9224
КП Сетунька, Сколковское шоссе (2 км от МКАД)
450 000 000
4 764 824
4 401 185
3 742 400
Показать цену в
900 кв.м.
24 сот

Актуальность информации и точную стоимость уточняйте у менеджера: +7 (495) 800 67 76
Поделиться:
Дом

Общая плошадь
900 кв.м.

Кол-во спален
5

Отделка
Под чистовую

Тип застройки
Охраняемый поселок

Материал стен
Кирпич

Фундамент
Монолитный

Кровля
Плоская кровля

Облицовка
Комбинированная
Участок

Площадь участка
24 сот.

Ландшафт
Газон

Рельеф
Ровный

Разрешенное использование
Для садоводства или огородничества

Населённый пункт
Немчиново

Поселок
КП Сетунька

Расстояние до МКАД
2 км.
Коммуникации

Электричество
15 кВт.

Газоснабжение
Магистральный

Водоснабжение
Центральное

Канализация
Септик
Дополнительно

Охрана
Есть

Бассейн
Есть
Описание объекта
Предлагается к продаже стильный современный дом 900 кв.м. на участке 24 сотки в охраняемом поселке Сетунька.
Дом предлагается в состоянии White box. Большая площадь остекления. Просторная терраса. В контуре дома теплый гараж на 2 м/м.
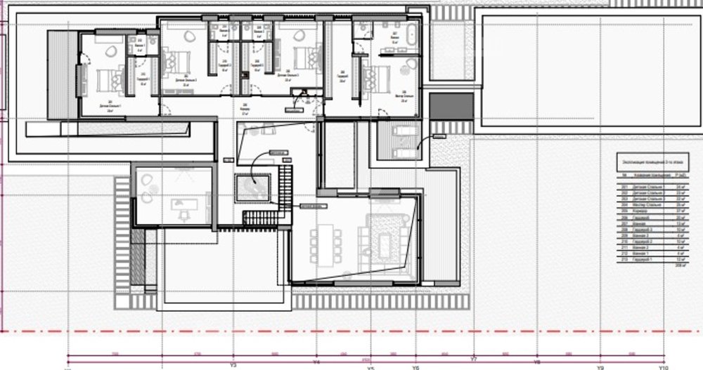
Планировка:
1 этаж: холл, гостиная- столовая, кухня, кабинет, гостевая спальня с с/у, санузел, СПА зона с бассейном, хаммамом, комнатой отдыха, с/у , гараж на 3 авто, блок для персонала
2 этаж: мастер спальня с с/у и гардеробной, 3 спальни с с/у и гардеробными
Участок ухоженный, проведены ландшафтные работы, вложен газон, высажены лесные деревья, вымощены дорожки, установлено освещение. Перед домом организована парковка на 2 м/м.
Заявка на просмотр объекта
Вы даете свое согласие на обработку Ваших персональных данных
Узнавайте о новинках первыми, подпишитесь:
Спасибо за обращение! Мы свяжемся с вами в ближайшее время
Ваше имя Ваш телефон

Похожие объекты:

Продажа
650 000 000
365 579 2
28 сот. 1778 кв.м.
6 882 524
3 871 2
28 сот. 1778 кв.м.
6 357 267
3 576 2
28 сот. 1778 кв.м.
5 405 689
3 040 2
28 сот. 1778 кв.м.
Резиденция на большом участке Новорижское шоссе, 10 км ID: 8711 В избранное:
7 спален Смешанный
Под ключ с мебелью
Подробнее
Продажа
2 738 820 900
1 304 200 2
75 сот. 2100 кв.м.
29 000 000
13 810 2
75 сот. 2100 кв.м.
26 786 792
12 756 2
75 сот. 2100 кв.м.
22 777 251
10 846 2
75 сот. 2100 кв.м.
Классическая резиденция в Майендорфе Рублёво-Успенское шоссе, 7 км ID: 9119 В избранное:
7 спален
Под ключ с мебелью
Подробнее
Продажа
4 627 662 900
1 685 238 2
116 сот. 2746 кв.м.
49 000 000
17 844 2
116 сот. 2746 кв.м.
45 260 442
16 482 2
116 сот. 2746 кв.м.
38 485 699
14 015 2
116 сот. 2746 кв.м.
Дом в престижном месте Рублевки Рублёво-Успенское шоссе, 9 км ID: 8194 В избранное:
5 спален Газон
Под ключ с мебелью
Подробнее
Продажа
342 000 000
285 сот.
3 621 266
285 сот.
3 344 900
285 сот.
2 844 224
285 сот.
Отличный участок в посёлке "Петрово-Дальнее" Ильинское шоссе, 15 км ID: 8174 В избранное:
Подробнее
Продажа
285 000 000
678 571 2
20.5 сот. 420 кв.м.
3 017 722
7 185 2
20.5 сот. 420 кв.м.
2 787 417
6 637 2
20.5 сот. 420 кв.м.
2 370 187
5 643 2
20.5 сот. 420 кв.м.
Уютный и компактный дом в КП "Мэдисон Парк" Рублёво-Успенское шоссе, 25 км ID: 8679 В избранное:
4 спальни Смешанный
Под ключ с мебелью
Подробнее
Продажа Спецпредложение
430 000 000
537 500 2
17 сот. 800 кв.м.
4 553 054
5 691 2
17 сот. 800 кв.м.
4 205 576
5 257 2
17 сот. 800 кв.м.
3 576 071
4 470 2
17 сот. 800 кв.м.
Идеальный дом для большой семьи в отличной локации! Новорижское шоссе, 13 км ID: 8584 В избранное:
6 спален Эксклюзивный
Под ключ с мебелью
Подробнее
Продажа
125 000 000
292 193 2
14 сот. 427.8 кв.м.
1 323 562
3 094 2
14 сот. 427.8 кв.м.
1 222 551
2 858 2
14 сот. 427.8 кв.м.
1 039 556
2 430 2
14 сот. 427.8 кв.м.
Стильный особняк в средиземноморском стиле в КП "Покровский" Новорижское шоссе, 28 км ID: 8657 В избранное:
4 спальни Лесной
Под ключ
Подробнее
Продажа
226 661 040
612 598 2
14.5 сот. 370 кв.м.
2 400 000
6 486 2
14.5 сот. 370 кв.м.
2 216 838
5 991 2
14.5 сот. 370 кв.м.
1 885 014
5 095 2
14.5 сот. 370 кв.м.
Стильный дом под ключ в Маслово Рублёво-Успенское шоссе, 28 км ID: 8983 В избранное:
4 спальни Газон
Под ключ
Подробнее
В избранном 0
Посмотреть избранное: 0
Скрыть
Отмена