Продажа

Новый дом рядом с Москвой!

9048
Поселок Малевича, Можайское шоссе (2 км от МКАД)
169 000 000
1 789 456
1 652 889
1 405 479
Показать цену в
550 кв.м.
13 сот

Актуальность информации и точную стоимость уточняйте у менеджера: +7 (495) 800 67 76
Поделиться:
Дом

Общая плошадь
550 кв.м.

Кол-во спален
4

Отделка
Под чистовую

Тип застройки
Охраняемый поселок

Материал стен
Кирпич

Фундамент
Монолитный

Кровля
Плоская кровля

Облицовка
Комбинированная
Участок

Площадь участка
13 сот.

Ландшафт
Газон

Рельеф
Ровный

Разрешенное использование
Для жилищного строительства (ИЖС)

Населённый пункт
Немчиновка

Поселок
Поселок Малевича

Расстояние до МКАД
2 км.
Коммуникации

Электричество
15 кВт.

Газоснабжение
Магистральный

Водоснабжение
Центральное

Канализация
Центральная
Дополнительно

Охрана
Есть

Бассейн
Нет
Описание объекта
Современный дом площадью 550 м², расположенный в престижном коттеджном посёлке «КП Казимира Малевича».
Идеальное место для постоянного проживания—участок 13 соток (ИЖС), окружённый тишиной и природой, при этом всего в 20 минутах от Москвы.
Срок завершения строительства—декабрь 2025 года, что открывает возможность адаптировать планировочные и интерьерные решения под индивидуальные предпочтения будущего владельца. По желанию клиента объект может быть реализован в формате «под ключ» с полной отделкой и меблировкой.
Высокие потолки, панорамное остекление и продуманная функциональная планировка создают ощущение простора и света.
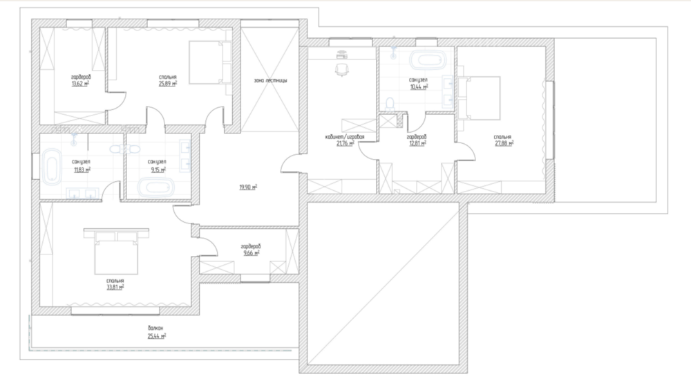
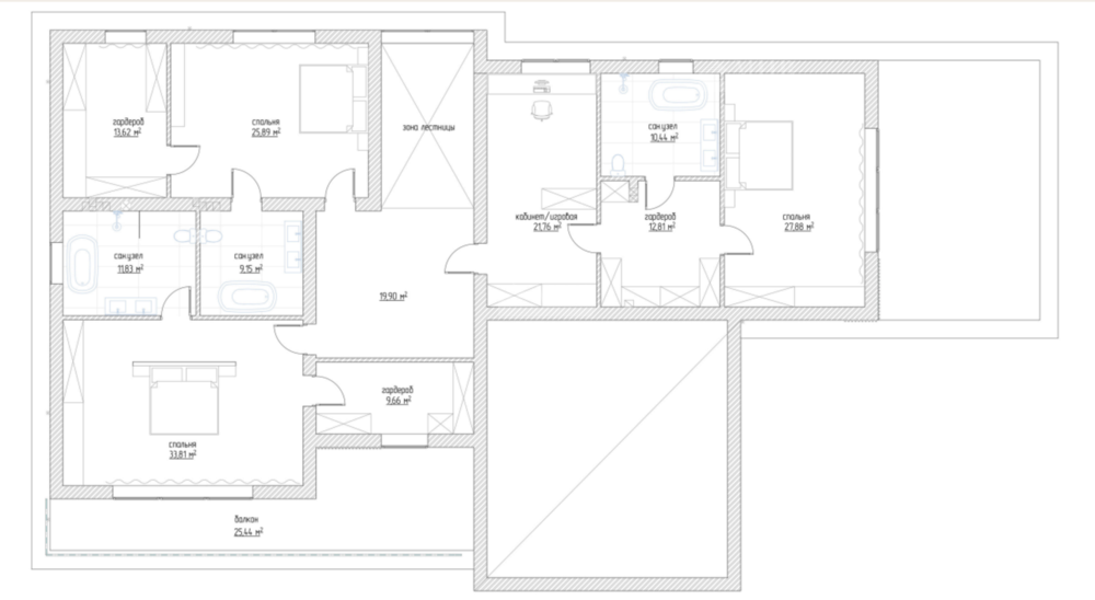
Планировка:
1 этаж: Парадная входная группа, гардеробная, просторный холл, спальня, гостевой санузел, кухня-столовая с выходом на террасу, гостиная, кладовая, постирочная, комната хранения, котельная, гараж на два автомобиля, а также отдельный блок для персонала со всеми удобствами
2 этаж: Мастер-спальня с ванной комнатой и гардеробной, две спальни с индивидуальными санузлами и гардеробными, кабинет/спальня и отдельная гардеробная
Посёлок охраняемый и располагает развитой инфраструктурой и удобной транспортной доступностью.
Поблизости—живописные парки Малевича и Раздолье.
Заявка на просмотр объекта
Вы даете свое согласие на обработку Ваших персональных данных
Узнавайте о новинках первыми, подпишитесь:
Спасибо за обращение! Мы свяжемся с вами в ближайшее время
Ваше имя Ваш телефон

Похожие объекты:

Продажа
105 000 000
150 000 2
24 сот. 700 кв.м.
1 111 792
1 588 2
24 сот. 700 кв.м.
1 026 943
1 467 2
24 сот. 700 кв.м.
873 227
1 247 2
24 сот. 700 кв.м.
Дом в КП Рубин Эстейт Новорижское шоссе, 15 км ID: 7400 В избранное:
7 спален Лесной
Без отделки
Подробнее
Продажа
991 642 050
734 550 2
15 сот. 1350 кв.м.
10 500 000
7 778 2
15 сот. 1350 кв.м.
9 698 666
7 184 2
15 сот. 1350 кв.м.
8 246 936
6 109 2
15 сот. 1350 кв.м.
Отличный дом "под ключ" с мебелью в КП "Николино" Рублёво-Успенское шоссе, 24 км ID: 8304 В избранное:
Смешанный
Подробнее
Продажа
115 000 000
402 098 2
26.12 сот. 286 кв.м.
1 217 677
4 258 2
26.12 сот. 286 кв.м.
1 124 747
3 933 2
26.12 сот. 286 кв.м.
956 391
3 344 2
26.12 сот. 286 кв.м.
Дом из крупноформатного клеёного бруса высочайшего качества Ленинградское шоссе, 129 км ID: 6980 В избранное:
4 спальни Эксклюзивный
Под ключ с мебелью
Подробнее
Продажа
350 000 000
244 755 2
190 сот. 1430 кв.м.
3 705 974
2 592 2
190 сот. 1430 кв.м.
3 423 144
2 394 2
190 сот. 1430 кв.м.
2 910 755
2 035 2
190 сот. 1430 кв.м.
Резиденция на большом участке Рублёво-Успенское шоссе, 35 км ID: 6730 В избранное:
7 спален
Под ключ с мебелью
Подробнее
Продажа
124 900 000
240 192 2
11.1 сот. 520 кв.м.
1 322 503
2 543 2
11.1 сот. 520 кв.м.
1 221 573
2 349 2
11.1 сот. 520 кв.м.
1 038 724
1 998 2
11.1 сот. 520 кв.м.
Новый дом в лесном коттеджном поселке Новорижское шоссе, 26 км ID: 7522 В избранное:
4 спальни Лесной
Без отделки
Подробнее
Продажа
80 000 000
285 714 2
10 сот. 280 кв.м.
847 080
3 025 2
10 сот. 280 кв.м.
782 433
2 794 2
10 сот. 280 кв.м.
665 316
2 376 2
10 сот. 280 кв.м.
Вайтбокс в Молоденово Рублёво-Успенское шоссе, 24 км ID: 8522 В избранное:
4 спальни Газон
Под чистовую
Подробнее
Продажа
390 000 000
866 667 2
10 сот. 450 кв.м.
4 129 514
9 177 2
10 сот. 450 кв.м.
3 814 360
8 476 2
10 сот. 450 кв.м.
3 243 413
7 208 2
10 сот. 450 кв.м.
Дом "под ключ" в коттеджном посёлке "Заря" Рублёво-Успенское шоссе, 19 км ID: 8333 В избранное:
4 спальни Смешанный
Под ключ
Подробнее
Продажа
300 000 000
983 607 2
26.5 сот. 305 кв.м.
3 176 549
10 415 2
26.5 сот. 305 кв.м.
2 934 123
9 620 2
26.5 сот. 305 кв.м.
2 494 933
8 180 2
26.5 сот. 305 кв.м.
Очень красивый дом на лесном участке Рублёво-Успенское шоссе, 11 км ID: 4573 В избранное:
4 спальни Лесной
Под ключ с мебелью
Подробнее
В избранном 0
Посмотреть избранное: 0
Скрыть
Отмена