Продажа

Дом "под отделку" в КП " HYGGE HOUSE"

8687
Хюгге хаус (Hygge House), Новорижское шоссе (10 км от МКАД)
60 000 000
635 310
586 825
498 987
Показать цену в
528.4 кв.м.
7.7 сот

Актуальность информации и точную стоимость уточняйте у менеджера: +7 (495) 800 67 76
Поделиться:
Дом

Общая плошадь
528.4 кв.м.

Кол-во спален
6

Отделка
Без отделки

Тип застройки
Охраняемый поселок

Материал стен
Кирпич

Фундамент
Монолитный

Кровля
Эксплуатируемая кровля

Облицовка
Клинкерная плитка
Участок

Площадь участка
7.7 сот.

Ландшафт
Парковый

Рельеф
Ровный

Разрешенное использование
Для жилищного строительства (ИЖС)

Населённый пункт
Поздняково

Поселок
Хюгге хаус (Hygge House)

Расстояние до МКАД
10 км.
Коммуникации

Газоснабжение
Магистральный

Водоснабжение
Центральное

Канализация
Центральная
Дополнительно

Охрана
Есть

Бассейн
Нет
Описание объекта
   Предлагаем к покупке дом "под отделку" в КП " HYGGE HOUSE".
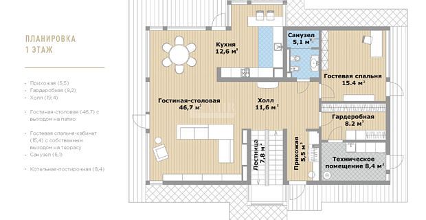
   Планировка:
1-й  этаж: тамбур, гардеробная, котельная, гараж, кабинет с с/у, холл, гостиная/столовая, кухня, с/у;
2-й  этаж: мастер-спальня с с/у и гардеробной, холл, постирочная, 3 детские спальни, 3 с/у, кладовая;
3-й этаж: комната прислуги с с/у, кухня/столовая, с/у, открытая терраса с зоной барбекю, зоной отдыха, душевая.
  
КП " HYGGE HOUSE" расположен в самой востребованной локации Подмосковья. Насыщенная инфраструктура локации предлагает жителям всё необходимое для комфортной и престижной загородной жизни. Посёлок поддерживает скандинавскую концепцию Hygge-искусства создавать красивое и удобное пространство вокруг себя. Трёхэтажные коттеджи с эксплуатируемыми кровлями построены в стиле современного минимализма.

Заявка на просмотр объекта
Вы даете свое согласие на обработку Ваших персональных данных
Узнавайте о новинках первыми, подпишитесь:
Спасибо за обращение! Мы свяжемся с вами в ближайшее время
Ваше имя Ваш телефон

Похожие объекты:

Продажа
139 000 000
267 308 2
20 сот. 520 кв.м.
1 471 801
2 830 2
20 сот. 520 кв.м.
1 359 477
2 614 2
20 сот. 520 кв.м.
1 155 986
2 223 2
20 сот. 520 кв.м.
Отличная локация. Новый дом. Рублёво-Успенское шоссе, 19 км ID: 5371 В избранное:
4 спальни Газон
Под ключ с мебелью
Подробнее
Продажа
396 656 820
37 сот.
4 200 000
37 сот.
3 879 466
37 сот.
3 298 774
37 сот.
Земельный участок у воды в КП "Береста-2" Новорижское шоссе, 1 км ID: 8385 В избранное:
Лесной
Подробнее
Продажа
370 000 000
1 193 548 2
12 сот. 310 кв.м.
3 917 744
12 638 2
12 сот. 310 кв.м.
3 618 752
11 673 2
12 сот. 310 кв.м.
3 077 084
9 926 2
12 сот. 310 кв.м.
Новый современный дом в Загорье Рублёво-Успенское шоссе, 15 км ID: 9060 В избранное:
3 спальни Газон
Под ключ с мебелью
Подробнее
Продажа
150 000 000
200 000 2
40 сот. 750 кв.м.
1 588 275
2 118 2
40 сот. 750 кв.м.
1 467 062
1 956 2
40 сот. 750 кв.м.
1 247 467
1 663 2
40 сот. 750 кв.м.
Загородный дом на большом участке в Знаменском Рублёво-Успенское шоссе, 14 км ID: 8521 В избранное:
7 спален
Под ключ с мебелью
Подробнее
Продажа
120 000 000
96 000 2
30 сот. 1250 кв.м.
1 270 620
1 016 2
30 сот. 1250 кв.м.
1 173 649
939 2
30 сот. 1250 кв.м.
997 973
798 2
30 сот. 1250 кв.м.
Прекрасная усадьба в КП Голицыно-3. Минское шоссе, 35 км ID: 7956 В избранное:
7 спален Лесной
Под ключ с мебелью
Подробнее
Продажа
120 000 000
109 091 2
15 сот. 1100 кв.м.
1 270 620
1 155 2
15 сот. 1100 кв.м.
1 173 649
1 067 2
15 сот. 1100 кв.м.
997 973
907 2
15 сот. 1100 кв.м.
Дом в Рождественно с шикарным бассейном Рублёво-Успенское шоссе, 8 км ID: 1677 В избранное:
4 спальни Парковый
Под ключ с мебелью
Подробнее
Продажа
309 000 000
702 273 2
13 сот. 440 кв.м.
3 271 846
7 436 2
13 сот. 440 кв.м.
3 022 147
6 869 2
13 сот. 440 кв.м.
2 569 781
5 840 2
13 сот. 440 кв.м.
Дом в КП "Коровино" Новорижское шоссе, 10 км ID: 8945 В избранное:
5 спален Лесной
Под ключ с мебелью
Подробнее
Продажа
132 218 940
213 256 2
15 сот. 620 кв.м.
1 400 000
2 258 2
15 сот. 620 кв.м.
1 293 155
2 086 2
15 сот. 620 кв.м.
1 099 591
1 774 2
15 сот. 620 кв.м.
Дом под ключ с мебелью на лесном участке Рублёво-Успенское шоссе, 15 км ID: 3215 В избранное:
4 спальни
Под ключ с мебелью
Подробнее
В избранном 0
Посмотреть избранное: 0
Скрыть
Отмена