Продажа

Дом под чистовую в Миллениуме

6609
Миллениум Парк (Millennium Park), Новорижское шоссе (19 км от МКАД)
265 000 000
2 805 952
2 591 809
2 203 858
Показать цену в
500 кв.м.
12 сот

Актуальность информации и точную стоимость уточняйте у менеджера: +7 (495) 800 67 76
Поделиться:
Дом

Общая плошадь
500 кв.м.

Кол-во спален
4

Отделка
Под чистовую

Тип застройки
Охраняемый поселок

Материал стен
Дерево
Участок

Площадь участка
12 сот.

Разрешенное использование
Для жилищного строительства (ИЖС)

Населённый пункт
Обушково

Поселок
Миллениум Парк (Millennium Park)

Расстояние до МКАД
19 км.
Коммуникации

Газоснабжение
Магистральный

Водоснабжение
Центральное

Канализация
Центральная
Дополнительно

Охрана
Есть
Описание объекта
Предлагаем к продаже новый дом в коттеджном поселке Миллениум Парк. Все дома по индивидуальным проектам,  отличительная особенность которых- большие террасы от 100м2 под единой кровлей с домом,  высотой потолка до 5.5 метров! Потолки в гостиных - 3.5-5.5 метров, в остальных помещениях не ниже 3.2 в чистоте. Большая площадь остекления, небольшие вложения в отделку, так как большинство стен стоят и не требуют отделки. Скрытые каналы для электрики.
Дома и участки:
Под жилую часть отведены 670 участков площадью от 0,2 до 2 га.
Коллекция проектов домов, разработанная архитекторами Villagio Estate, насчитывает более 150 вариаций площадью от 300 до 2000 м.кв. Ряд проектов от классики до суперсовременных выполнен с использованием авторской мозаики и мрамора. Вместе с готовым домом собственник получает и ландшафтный дизайн собственного участка: элегантные кованные заборы, живая фасадная изгородь, газон.

Коммуникации:
- магистральный газ
- электричество
- центральная канализация
- центральный водопровод

Инфраструктура:
К услугам жителей Миллениум парка :
- Парк Остров с небольшим живописным озером с организованной рыбалкой;
- Парк Парк ручьев с теннисным кортом;
- Парк Лабиринт уединенное место с необыкновенными топиарными формами ;
- Парк Поляна ;
- Центральный Парк Усадьба с озером площадью 3 га, на котором оборудована пляжная песчаная зона, кабинки для
переодевания, шезлонги. Берег подготовлен для удобного входа/выхода в воду, можно купаться, а также работает
ресторан высокой кухни.
- Детский образовательный клуб Робин Гуд
- Детские площадки;
- Велосипедные дорожки;
- Многофункциональный спортивный комплекс ;
- Доставка фермерских продуктов питания.

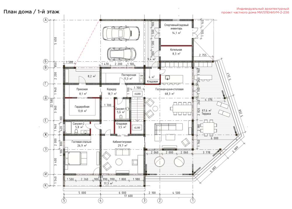
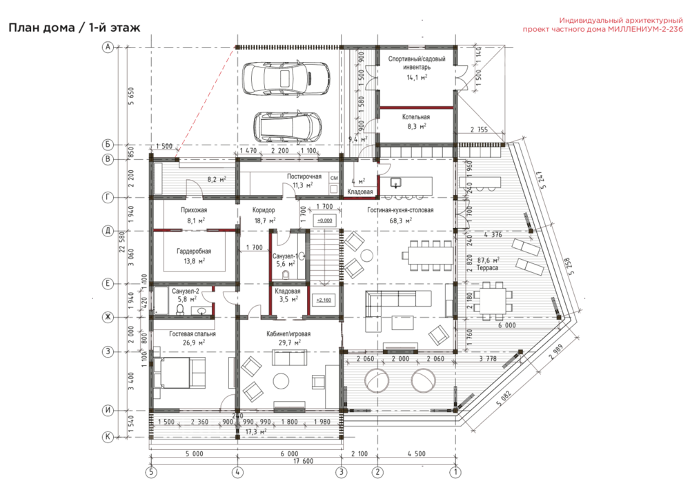
Планировка:
1 этаж: Прихожая, большая гардеробная, гостевой санузел, кухня-столовая, гостиная с выходом на террасу 80м2, кладовая при кухне, постирочная,
кабинет/гостевая спальня, санузел, сауна, котельная, кладовая для спортивного и садового инвентаря, навес для авто.
2 этаж: Хозяйская спальня с гардеробной и санузлом, 2 детские спальни с санузлами, холл.
Заявка на просмотр объекта
Вы даете свое согласие на обработку Ваших персональных данных
Узнавайте о новинках первыми, подпишитесь:
Спасибо за обращение! Мы свяжемся с вами в ближайшее время
Ваше имя Ваш телефон

Похожие объекты:

Продажа
500 000 000
454 545 2
24 сот. 1100 кв.м.
5 294 249
4 813 2
24 сот. 1100 кв.м.
4 890 205
4 446 2
24 сот. 1100 кв.м.
4 158 222
3 780 2
24 сот. 1100 кв.м.
Дом со СПА-зоной в КП "Ренессанс парк" Новорижское шоссе, 19 км ID: 9297 В избранное:
5 спален Газон
Под ключ с мебелью
Подробнее
Продажа
991 642 050
1 130 720 2
47 сот. 877 кв.м.
10 500 000
11 973 2
47 сот. 877 кв.м.
9 698 666
11 059 2
47 сот. 877 кв.м.
8 246 936
9 404 2
47 сот. 877 кв.м.
Дом под ключ в КП "Павлово". Новорижское шоссе, 14 км ID: 8015 В избранное:
5 спален Смешанный
Под ключ
Подробнее
Продажа
60 000 000
113 550 2
7.7 сот. 528.4 кв.м.
635 310
1 202 2
7.7 сот. 528.4 кв.м.
586 825
1 111 2
7.7 сот. 528.4 кв.м.
498 987
944 2
7.7 сот. 528.4 кв.м.
Дом "под отделку" в КП " HYGGE HOUSE" Новорижское шоссе, 10 км ID: 8687 В избранное:
6 спален Парковый
Без отделки
Подробнее
Продажа
1 352 706 052
1 436 039 2
37.86 сот. 941.97 кв.м.
14 323 126
15 206 2
37.86 сот. 941.97 кв.м.
13 230 020
14 045 2
37.86 сот. 941.97 кв.м.
11 249 704
11 943 2
37.86 сот. 941.97 кв.м.
Дом под ключ с мебелью Рублёво-Успенское шоссе, 8 км ID: 5794 В избранное:
5 спален
Под ключ
Подробнее
Продажа
129 000 000
258 000 2
13 сот. 500 кв.м.
1 365 916
2 732 2
13 сот. 500 кв.м.
1 261 673
2 523 2
13 сот. 500 кв.м.
1 072 821
2 146 2
13 сот. 500 кв.м.
Уютный дом под ключ Рублёво-Успенское шоссе, 15 км ID: 3824 В избранное:
5 спален Газон
Под ключ с мебелью
Подробнее
Продажа
255 000 000
31 сот.
2 700 067
31 сот.
2 494 005
31 сот.
2 120 693
31 сот.
Просторный участок в Шульгино ГП-4 Рублёво-Успенское шоссе, 8 км ID: 8878 В избранное:
Поле
Подробнее
Продажа
1 794 399 900
897 200 2
200 сот. 2000 кв.м.
19 000 000
9 500 2
200 сот. 2000 кв.м.
17 549 967
8 775 2
200 сот. 2000 кв.м.
14 923 026
7 462 2
200 сот. 2000 кв.м.
Резиденция на большом участке Рублёво-Успенское шоссе, 24 км ID: 7030 В избранное:
6 спален
Под ключ с мебелью
Подробнее
Продажа
107 000 000
297 222 2
7 сот. 360 кв.м.
1 132 969
3 147 2
7 сот. 360 кв.м.
1 046 504
2 907 2
7 сот. 360 кв.м.
889 860
2 472 2
7 сот. 360 кв.м.
Новый дом в Новорижском Новорижское шоссе, 25 км ID: 9117 В избранное:
4 спальни Газон
Под ключ с мебелью
Подробнее
В избранном 0
Посмотреть избранное: 0
Скрыть
Отмена