Продажа

Для уединенной комфортной жизни

7115
Ильинка Парк, Ильинское шоссе (17 км от МКАД)
45 000 000
476 482
440 118
374 240
Показать цену в
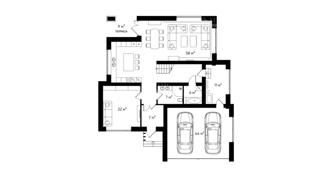
270 кв.м.
8.7 сот

Актуальность информации и точную стоимость уточняйте у менеджера: +7 (495) 800 67 76
Поделиться:
Дом

Общая плошадь
270 кв.м.

Кол-во спален
3

Отделка
Без отделки

Тип застройки
Охраняемый поселок

Материал стен
Кирпич

Фундамент
Монолитный
Участок

Площадь участка
8.7 сот.

Разрешенное использование
Для жилищного строительства (ИЖС)

Населённый пункт
Дмитровское

Поселок
Ильинка Парк

Расстояние до МКАД
17 км.
Коммуникации

Газоснабжение
Магистральный

Водоснабжение
Центральное

Канализация
Центральная
Дополнительно

Охрана
Есть
Описание объекта
Предлагаем Вашему вниманию дом в коттеджном поселке Ильинка Парк.
Только натуральные материалы. Высокие потолки и панорамные окна. Детально продуманные планировки. Просторные террасы. Патио с зоной BBQ на участке. Большая мастер-спальня с собственной гардеробной и ванной комнатой. Большая кухня-гостиная. Комфортный гараж, шириной 7 метров для двух автомобилей.

Дома возводятся из кирпича с фасадной отделкой деревом и клинкерным кирпичом.

Поселок граничит с лесным массивом. Собственный выход в лес создает ощущение эмоциональной близости к природе, которая влияет на психологическое и социальное благополучие человека. Люди, тесно связанные с природой, более здоровы и энергичны. Они строят позитивные отношения, добиваются успехов в саморазвитии и реализации своих целей.

Внутри поселка экологичный детский игровой комплекс, спортивная площадка с амортизирующим покрытием, work-out зона, малые архитектурные формы, поддерживающие общий стиль.

В поселке круглосуточное видеонаблюдение и патрулирование территории охранной организацией, контрольно-пропускной режим въезда и выезд, локальная служба эксплуатации для быстрого решения вопросов бытового характера, все центральные коммуникации и высокоскоростной интернет.
Заявка на просмотр объекта
Вы даете свое согласие на обработку Ваших персональных данных
Узнавайте о новинках первыми, подпишитесь:
Спасибо за обращение! Мы свяжемся с вами в ближайшее время
Ваше имя Ваш телефон

Похожие объекты:

Продажа
944 421 000
1 108 475 2
25 сот. 852 кв.м.
10 000 000
11 737 2
25 сот. 852 кв.м.
9 236 825
10 841 2
25 сот. 852 кв.м.
7 854 224
9 219 2
25 сот. 852 кв.м.
Новый дом в Миллениуме! Новорижское шоссе, 19 км ID: 8912 В избранное:
4 спальни Газон
Под ключ с мебелью
Подробнее
Продажа
2 644 378 800
1 175 279 2
3650 сот. 2250 кв.м.
28 000 000
12 444 2
3650 сот. 2250 кв.м.
25 863 109
11 495 2
3650 сот. 2250 кв.м.
21 991 828
9 774 2
3650 сот. 2250 кв.м.
Большая резиденция в Павлово-2 Новорижское шоссе, 16 км ID: 7503 В избранное:
6 спален Смешанный
Под ключ с мебелью
Подробнее
Продажа
135 000 000
337 500 2
15 сот. 400 кв.м.
1 429 447
3 574 2
15 сот. 400 кв.м.
1 320 355
3 301 2
15 сот. 400 кв.м.
1 122 720
2 807 2
15 сот. 400 кв.м.
Стильный дом в Лесных Далях Рублёво-Успенское шоссе, 28 км ID: 7315 В избранное:
3 спальни Смешанный
Под ключ с мебелью
Подробнее
Продажа
170 000 000
18 сот.
1 800 045
18 сот.
1 662 670
18 сот.
1 413 795
18 сот.
Отличный участок в Николино Рублёво-Успенское шоссе, 24 км ID: 8914 В избранное:
Поле
Подробнее
Продажа
180 000 000
500 000 2
9 сот. 360 кв.м.
1 905 930
5 294 2
9 сот. 360 кв.м.
1 760 474
4 890 2
9 сот. 360 кв.м.
1 496 960
4 158 2
9 сот. 360 кв.м.
Дом в Баковке Минское шоссе, 5 км ID: 6878 В избранное:
5 спален
Под ключ с мебелью
Подробнее
Продажа
95 000 000
44 сот.
1 005 907
44 сот.
929 139
44 сот.
790 062
44 сот.
Участок с ландшафтным дизайном Рублёво-Успенское шоссе, 25 км ID: 9255 В избранное:
6 спален Эксклюзивный
Под ключ с мебелью
Подробнее
Продажа
222 186 838
488 323 2
15 сот. 455 кв.м.
2 352 625
5 171 2
15 сот. 455 кв.м.
2 173 078
4 776 2
15 сот. 455 кв.м.
1 847 804
4 061 2
15 сот. 455 кв.м.
Ильинские Холмы! На лоне природы! Новорижское шоссе, 39 км ID: 7799 В избранное:
4 спальни Прилесной
Под ключ
Подробнее
Продажа
330 000 000
375 000 2
139 сот. 880 кв.м.
3 494 204
3 971 2
139 сот. 880 кв.м.
3 227 535
3 668 2
139 сот. 880 кв.м.
2 744 427
3 119 2
139 сот. 880 кв.м.
Усадьба у большой воды Можайское шоссе, 111 км ID: 9285 В избранное:
3 спальни У воды
Под ключ с мебелью
Подробнее
В избранном 0
Посмотреть избранное: 0
Скрыть
Отмена