Продажа

Участок в Шато Соверен

7427
Шато Соверен, Новорижское шоссе (18 км от МКАД)
160 000 000
1 694 160
1 564 866
1 330 631
Показать цену в
99.87 сот

Актуальность информации и точную стоимость уточняйте у менеджера: +7 (495) 800 67 76
Поделиться:
Расположение

Адрес
Россия, Московская область, городской округ Красногорск, деревня Тимошкино, коттеджный посёлок Шато Соверен

Регион
Московская область

Шоссе
Новорижское

Растояние от МКАД
18 км.

Населённый пункт
Тимошкино
Участок

Площадь участка
99.87 сот.

Категория земель
Населенные пункты

Разрешенное использование
Для жилищного строительства (ИЖС)

Рельеф
Ровный
Описание

Газоснабжение
Магистральный

Водоснабжение
Центральное

Канализация
Центральная
Дополнительно

Тип сделки
Продажа

Охрана
Есть
Описание объекта
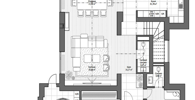
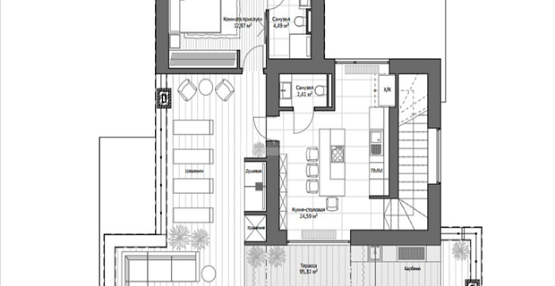
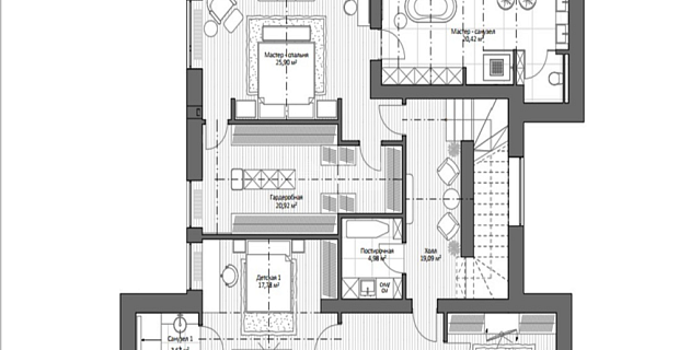
Предлагаем к продаже участок у леса. 31,87 соток в собственности + 68 соток в аренде. Все коммуникации центральные, проходят по границе участка.

Поселок Шато Соверен расположен на 18-м км Новорижского шоссе, являющегося безусловным лидером премиального направления элитной недвижимости Подмосковья. И это не просто лучшая, а, возможно, идеальная точка для жизни за городом.
Заявка на просмотр объекта
Вы даете свое согласие на обработку Ваших персональных данных
Узнавайте о новинках первыми, подпишитесь:
Спасибо за обращение! Мы свяжемся с вами в ближайшее время
Ваше имя Ваш телефон

Похожие объекты:

Продажа
60 000 000
113 550 2
7.7 сот. 528.4 кв.м.
635 310
1 202 2
7.7 сот. 528.4 кв.м.
586 825
1 111 2
7.7 сот. 528.4 кв.м.
498 987
944 2
7.7 сот. 528.4 кв.м.
Дом "под отделку" в КП " HYGGE HOUSE" Новорижское шоссе, 10 км ID: 8687 В избранное:
6 спален Парковый
Без отделки
Подробнее
Продажа
1 133 305 200
73.5 сот.
12 000 000
73.5 сот.
11 084 190
73.5 сот.
9 425 069
73.5 сот.
Участок в Жуковке-2 Рублёво-Успенское шоссе, 9 км ID: 7657 В избранное:
Лесной
Подробнее
Продажа
127 000 000
481 061 2
10 сот. 264 кв.м.
1 344 739
5 094 2
10 сот. 264 кв.м.
1 242 112
4 705 2
10 сот. 264 кв.м.
1 056 188
4 001 2
10 сот. 264 кв.м.
Дом в стиле Хай-тек Рублёво-Успенское шоссе, 10 км ID: 9086 В избранное:
5 спален Газон
Под ключ
Подробнее
Продажа
40 000 000
15 сот.
423 540
15 сот.
391 216
15 сот.
332 658
15 сот.
Участок в удобной локации Рублёво-Успенское шоссе, 17 км ID: 1761 В избранное:
Подробнее
Продажа
1 350 000 000
627 907 2
62 сот. 2150 кв.м.
14 294 472
6 649 2
62 сот. 2150 кв.м.
13 203 554
6 141 2
62 сот. 2150 кв.м.
11 227 199
5 222 2
62 сот. 2150 кв.м.
Резиденция для большой семьи Рублёво-Успенское шоссе, 28 км ID: 8913 В избранное:
5 спален Газон
Под ключ с мебелью
Подробнее
Продажа
145 000 000
517 857 2
13 сот. 280 кв.м.
1 535 332
5 483 2
13 сот. 280 кв.м.
1 418 159
5 065 2
13 сот. 280 кв.м.
1 205 884
4 307 2
13 сот. 280 кв.м.
Дом под ключ с мебелью в Шервуде Новорижское шоссе, 23 км ID: 2981 В избранное:
3 спальни Лесной
Под ключ с мебелью
Подробнее
Продажа
260 000 000
238 532 2
24.54 сот. 1090 кв.м.
2 753 010
2 526 2
24.54 сот. 1090 кв.м.
2 542 907
2 333 2
24.54 сот. 1090 кв.м.
2 162 275
1 984 2
24.54 сот. 1090 кв.м.
Большой дом с прекрасным ремонтом Рублёво-Успенское шоссе, 20 км ID: 9211 В избранное:
6 спален Лесной
Под ключ с мебелью
Подробнее
Продажа
280 000 000
401 895 2
20 сот. 696.7 кв.м.
2 964 779
4 255 2
20 сот. 696.7 кв.м.
2 738 515
3 931 2
20 сот. 696.7 кв.м.
2 328 604
3 342 2
20 сот. 696.7 кв.м.
Дом в ПЖСК Рождественский Рублёво-Успенское шоссе, 8 км ID: 7628 В избранное:
5 спален
Под ключ с мебелью
Подробнее
В избранном 0
Посмотреть избранное: 0
Скрыть
Отмена