Продажа

Стильный таунхаус в Жаворонках!

7005
Жаворонки-1, Можайское шоссе (24 км от МКАД)
38 000 000
402 363
371 656
316 025
Показать цену в
233 кв.м.
2.6 сот

Актуальность информации и точную стоимость уточняйте у менеджера: +7 (495) 800 67 76
Поделиться:
Дом

Общая плошадь
233 кв.м.

Кол-во спален
4

Отделка
Под ключ с мебелью

Тип застройки
Охраняемый поселок

Материал стен
Кирпич

Фундамент
Монолитный
Участок

Площадь участка
2.6 сот.

Разрешенное использование
Для жилищного строительства (ИЖС)

Населённый пункт
Жаворонки

Поселок
Жаворонки-1

Расстояние до МКАД
24 км.
Коммуникации

Газоснабжение
Магистральный

Водоснабжение
Центральное

Канализация
Центральная
Дополнительно

Охрана
Есть

Бассейн
Нет
Описание объекта
К продаже предлагается таунхаус в благоустроенном солнечном участке правильной формы с березами, имеющем выход к прогулочным дорожкам вокруг декоративного пруда. Общая площадь участка 2,59 соток. Парковка из брусчатки на 1 авто. Приватное расположение в глубине посёлка.
Дом с дизайнерским ремонтом, дорогой мебелью, кухней, брендовой сантехникой, живописные виды из окон на декоративное озеро.

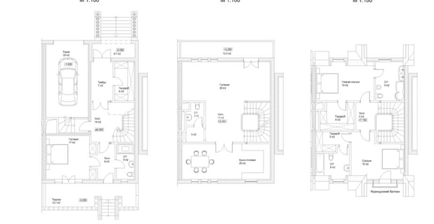
Планировка:
1 этаж: Просторная гостиная с видом на участок, кухня-столовая, сауна с с/у, гостевая спальня. гостевой с/у, постирочная с помывочной для животных, холл, прихожая;
2 этаж: Мастер-спальня с собственным кабинетом и с/у, отдельная спальня, детская спальня 2 шт, общий с/у, холл.

Клубный поселок Жаворонки-1 расположен в 20 км от МКАД по Можайскому шоссе и в 22 км от МКАД по Минскому шоссе. Рядом платная трасса. Посёлок охраняется по периметру, есть шлагбаум, КПП, видеонаблюдение. Вокруг солидное окружение и развитая инфраструктура. Много внимания в Жаворонках-1 представлено местам отдыха: среди деревьев установлены беседки, скамейки, зона
барбекю. Много прогулочных дорожек с фонарями вечернего освещения. В центре посёлка декоративное озеро, радующее взгляды жителей. Вся необходимая инфраструктура находится в непосредственной
близости. До г. Одинцово всего 10 минут на авто. Рядом крупные торговые центры, магазины, аптеки, образовательные заведения, развлекательные объекты, загородные санатории, спортивные базы и пансионаты.
Заявка на просмотр объекта
Вы даете свое согласие на обработку Ваших персональных данных
Узнавайте о новинках первыми, подпишитесь:
Спасибо за обращение! Мы свяжемся с вами в ближайшее время
Ваше имя Ваш телефон

Похожие объекты:

Продажа
115 000 000
374 593 2
7 сот. 307 кв.м.
1 217 677
3 966 2
7 сот. 307 кв.м.
1 124 747
3 664 2
7 сот. 307 кв.м.
956 391
3 115 2
7 сот. 307 кв.м.
Современный дом под ключ Новорижское шоссе, 20 км ID: 9214 В избранное:
4 спальни Газон
Под ключ с мебелью
Подробнее
Продажа
69 700 000
258 148 2
10 сот. 270 кв.м.
738 018
2 733 2
10 сот. 270 кв.м.
681 695
2 525 2
10 сот. 270 кв.м.
579 656
2 147 2
10 сот. 270 кв.м.
Новый современный дом в КП "Новорижский" Новорижское шоссе, 19 км ID: 8784 В избранное:
4 спальни Лесной
Под ключ с мебелью
Подробнее
Продажа
110 000 000
22 сот.
1 164 735
22 сот.
1 075 845
22 сот.
914 809
22 сот.
Участок в Калчуге Рублёво-Успенское шоссе, 11 км ID: 9151 В избранное:
Газон
Подробнее
Продажа
944 421 000
899 449 2
60 сот. 1050 кв.м.
10 000 000
9 524 2
60 сот. 1050 кв.м.
9 236 825
8 797 2
60 сот. 1050 кв.м.
7 854 224
7 480 2
60 сот. 1050 кв.м.
Резиденция под ключ Рублёво-Успенское шоссе, 9 км ID: 4203 В избранное:
7 спален Лесной
Под ключ
Подробнее
Продажа
73 000 000
314 655 2
4.48 сот. 232 кв.м.
772 960
3 332 2
4.48 сот. 232 кв.м.
713 970
3 077 2
4.48 сот. 232 кв.м.
607 100
2 617 2
4.48 сот. 232 кв.м.
Таунхаус под отделку Минское шоссе, 11 км ID: 6095 В избранное:
3 спальни
Без отделки
Подробнее
Продажа
290 000 000
362 500 2
10 сот. 800 кв.м.
3 070 664
3 838 2
10 сот. 800 кв.м.
2 836 319
3 545 2
10 сот. 800 кв.м.
2 411 769
3 015 2
10 сот. 800 кв.м.
Коттедж в отделке white box в КП "Миллениум Парк" Новорижское шоссе, 19 км ID: 8473 В избранное:
6 спален Лесной
Под чистовую
Подробнее
Продажа
45 000 000
20 сот.
476 482
20 сот.
440 118
20 сот.
374 240
20 сот.
Участок в КП Ивановское Новорижское шоссе, 19 км ID: 8280 В избранное:
Прилесной
Подробнее
Продажа
495 000 000
582 353 2
58 сот. 850 кв.м.
5 241 307
6 166 2
58 сот. 850 кв.м.
4 841 303
5 696 2
58 сот. 850 кв.м.
4 116 640
4 843 2
58 сот. 850 кв.м.
Шикарная резиденция в Грибово! Минское шоссе, 11 км ID: 7031 В избранное:
5 спален
Под ключ с мебелью
Подробнее
В избранном 0
Посмотреть избранное: 0
Скрыть
Отмена