Продажа

Стильный дом в Немчиново

7851
Родники (Немчиново), Сколковское шоссе (5 км от МКАД)
214 191 853
2 267 970
2 094 884
1 781 315
Показать цену в
815 кв.м.
13.85 сот

Актуальность информации и точную стоимость уточняйте у менеджера: +7 (495) 800 67 76
Поделиться:
Дом

Общая плошадь
815 кв.м.

Кол-во спален
4

Отделка
Без отделки

Тип застройки
Охраняемый поселок

Материал стен
Кирпич

Фундамент
Монолитный
Участок

Площадь участка
13.85 сот.

Ландшафт
Смешанный

Рельеф
Ровный

Разрешенное использование
Для жилищного строительства (ИЖС)

Населённый пункт
Немчиново

Поселок
Родники (Немчиново)

Расстояние до МКАД
5 км.
Коммуникации

Газоснабжение
Магистральный

Водоснабжение
Центральное

Канализация
Центральная
Дополнительно

Охрана
Нет

Бассейн
Нет
Описание объекта
Предлагаем к продаже дом с уникальной архитектурой и интерьерами. Коттедж расположен на престижном направлении подмосковья. Функциональные планировочные решения, панорамное остекление, расположение на холме, открывающее прекрасные виды на лес.
Рядом располагается пруд, есть собственный выход в лес.

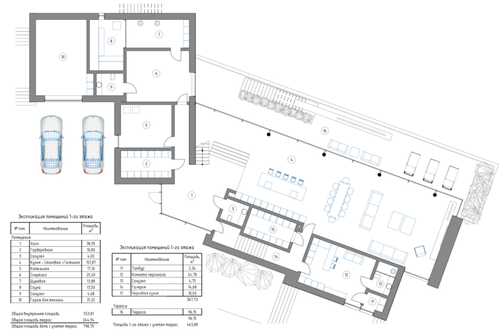
Планировка:
1 этаж: холл, гардеробная, 3 с/у, кухня-столовая-гостиная, котельная, спортзал, душевая, сауна, гараж для техники, комната для персонала, черновая кухня, терраса;
2 этаж: холл, хозяйская спальня, гардеробная, ванная комната, кабинет переговорная, с/у, кабинет-переговорная, гостевая спальня, ванная комната, прачечная.
Заявка на просмотр объекта
Вы даете свое согласие на обработку Ваших персональных данных
Узнавайте о новинках первыми, подпишитесь:
Спасибо за обращение! Мы свяжемся с вами в ближайшее время
Ваше имя Ваш телефон

Похожие объекты:

Продажа
33 000 000
107 143 2
5.03 сот. 308 кв.м.
349 420
1 134 2
5.03 сот. 308 кв.м.
322 754
1 048 2
5.03 сот. 308 кв.м.
274 443
891 2
5.03 сот. 308 кв.м.
Дом под отделку в КП HYGGE Новорижское шоссе, 10 км ID: 7268 В избранное:
4 спальни Парковый
Без отделки
Подробнее
Продажа
380 000 000
485 934 2
15.24 сот. 782 кв.м.
4 023 629
5 145 2
15.24 сот. 782 кв.м.
3 716 556
4 753 2
15.24 сот. 782 кв.м.
3 160 249
4 041 2
15.24 сот. 782 кв.м.
Дом в КП "Лебединое Озеро" Рублёво-Успенское шоссе, 19 км ID: 8548 В избранное:
5 спален Лесной
Под ключ с мебелью
Подробнее
Продажа
52 000 000
200 000 2
7.75 сот. 260 кв.м.
550 602
2 118 2
7.75 сот. 260 кв.м.
508 581
1 956 2
7.75 сот. 260 кв.м.
432 455
1 663 2
7.75 сот. 260 кв.м.
Новый, стильный дом в клубном поселке Можайское шоссе, 18 км ID: 8740 В избранное:
4 спальни Газон
Без отделки
Подробнее
Продажа
690 000 000
670 815 2
33.84 сот. 1028.6 кв.м.
7 306 064
7 103 2
33.84 сот. 1028.6 кв.м.
6 748 483
6 561 2
33.84 сот. 1028.6 кв.м.
5 738 346
5 579 2
33.84 сот. 1028.6 кв.м.
Дом под отделку Рублёво-Успенское шоссе, 8 км ID: 5789 В избранное:
Без отделки
Подробнее
Продажа
200 000 000
50 сот.
2 117 700
50 сот.
1 956 082
50 сот.
1 663 289
50 сот.
Лесной участок в КП LES Маслово Рублёво-Успенское шоссе, 25 км ID: 8682 В избранное:
Лесной
Подробнее
Продажа
94
14.5 сот. 1000 кв.м.
1
14.5 сот. 1000 кв.м.
1
14.5 сот. 1000 кв.м.
1
14.5 сот. 1000 кв.м.
Прекрасный лесной поселок вблизи школы Примакова Рублёво-Успенское шоссе, 8 км ID: 6651 В избранное:
6 спален Прилесной
Под ключ с мебелью
Подробнее
Продажа
600 000 000
500 000 2
22.5 сот. 1200 кв.м.
6 353 099
5 294 2
22.5 сот. 1200 кв.м.
5 868 246
4 890 2
22.5 сот. 1200 кв.м.
4 989 866
4 158 2
22.5 сот. 1200 кв.м.
Дом "под ключ" в КП "Павлово" Новорижское шоссе, 16 км ID: 8902 В избранное:
4 спальни Лесной
Под ключ с мебелью
Подробнее
Продажа
460 000 000
741 935 2
11 сот. 620 кв.м.
4 870 709
7 856 2
11 сот. 620 кв.м.
4 498 989
7 256 2
11 сот. 620 кв.м.
3 825 564
6 170 2
11 сот. 620 кв.м.
Эффектный и стильный дом в деревни Жуковка Рублёво-Успенское шоссе, 9 км ID: 8540 В избранное:
4 спальни Лесной
Под ключ
Подробнее
В избранном 0
Посмотреть избранное: 0
Скрыть
Отмена