Продажа

Стильный дом из клееного бруса

9164
Назарьево ДПК, Рублёво-Успенское шоссе (26 км от МКАД)
135 000 000
1 429 447
1 320 355
1 122 720
Показать цену в
250 кв.м.
25 сот

Актуальность информации и точную стоимость уточняйте у менеджера: +7 (495) 800 67 76
Поделиться:
Дом

Общая плошадь
250 кв.м.

Кол-во спален
3

Отделка
Под ключ с мебелью

Тип застройки
Охраняемый поселок

Материал стен
Клеенный брус

Фундамент
Монолитный

Кровля
Металлочерепица

Облицовка
Комбинированная
Участок

Площадь участка
25 сот.

Ландшафт
Лесной

Рельеф
Ровный

Разрешенное использование
Для жилищного строительства (ИЖС)

Населённый пункт
Назарьево

Поселок
Назарьево ДПК

Расстояние до МКАД
26 км.
Коммуникации

Электричество
15 кВт.

Газоснабжение
Магистральный

Водоснабжение
Центральное

Канализация
Центральная
Дополнительно

Охрана
Есть

Бассейн
Нет
Описание объекта
Предлагаем к покупке стильный дом из клееного бруса с русской баней в КП "Назарьево".
Планировка:
1-й этаж: прихожая, гостиная, кухня-столовая с кладовой, веранда, гардеробная, с/у, котельная;
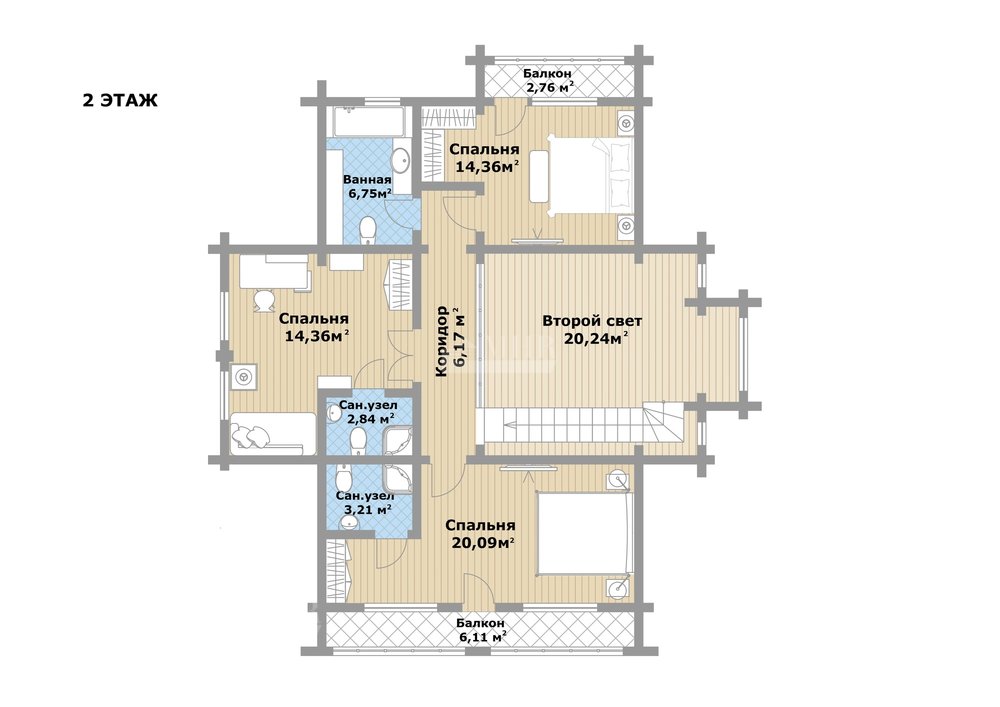
2-й этаж: мастер-спальня с ванной и выходом на балкон, детская с ванной и выходом на балкон, детская с ванной, коридор.
  В бане: парная на дровах, помывочная, комната отдыха с полноценной кухней, душевая.

На участке взрослые сосны, по периметру- вековые ели. Обустроены дорожки с фонариками, лаунж-зона, есть навес на 2 авто и выведены коммуникации для организации барбекю-зоны.

ДПК Назарьево( бывшие дачи Совмина)- охраняемый посёлок со своей службой сервиса. Тихо, зелено, солидное окружение. В поселке детская площадка, гостевая автостоянка, магазин. В шаговой доступности школа, храм, лес, речка, санаторий Управделами Президента с бассейном, лечебным корпусом и теннисными кортами. В 200 метрах от участка находится великолепные пруды с оборудованной зоной отдыха и прокатом лодок, Хаски-ленд и конный клуб.
Заявка на просмотр объекта
Вы даете свое согласие на обработку Ваших персональных данных
Узнавайте о новинках первыми, подпишитесь:
Спасибо за обращение! Мы свяжемся с вами в ближайшее время
Ваше имя Ваш телефон

Похожие объекты:

Продажа
97 000 000
388 000 2
12 сот. 250 кв.м.
1 027 084
4 108 2
12 сот. 250 кв.м.
948 700
3 795 2
12 сот. 250 кв.м.
806 695
3 227 2
12 сот. 250 кв.м.
Стильный коттедж с мебелью Ильинское шоссе, 21 км ID: 9014 В избранное:
3 спальни Газон
Под ключ с мебелью
Подробнее
Продажа
1 794 399 900
747 667 2
61 сот. 2400 кв.м.
19 000 000
7 917 2
61 сот. 2400 кв.м.
17 549 967
7 312 2
61 сот. 2400 кв.м.
14 923 026
6 218 2
61 сот. 2400 кв.м.
Уникальная резиденция в элитном посёлке "Резиденции Бенилюкс" Новорижское шоссе, 19 км ID: 9113 В избранное:
5 спален Лесной
Под ключ с мебелью
Подробнее
Продажа
1 350 000 000
627 907 2
62 сот. 2150 кв.м.
14 294 472
6 649 2
62 сот. 2150 кв.м.
13 203 554
6 141 2
62 сот. 2150 кв.м.
11 227 199
5 222 2
62 сот. 2150 кв.м.
Резиденция для большой семьи Рублёво-Успенское шоссе, 28 км ID: 8913 В избранное:
5 спален Газон
Под ключ с мебелью
Подробнее
Продажа
235 000 000
522 222 2
15 сот. 450 кв.м.
2 488 297
5 530 2
15 сот. 450 кв.м.
2 298 396
5 108 2
15 сот. 450 кв.м.
1 954 364
4 343 2
15 сот. 450 кв.м.
Новый дом в Рождественском ПЖСК Рублёво-Успенское шоссе, 8 км ID: 7419 В избранное:
4 спальни Эксклюзивный
Под ключ с мебелью
Подробнее
Продажа
149 500 000
241 129 2
25 сот. 620 кв.м.
1 582 980
2 553 2
25 сот. 620 кв.м.
1 462 171
2 358 2
25 сот. 620 кв.м.
1 243 308
2 005 2
25 сот. 620 кв.м.
Дом на участке с дизайнерским ландшафтом Минское шоссе, 11 км ID: 5313 В избранное:
7 спален Эксклюзивный
Под ключ с мебелью
Подробнее
Продажа
150 000 000
250 000 2
60 сот. 600 кв.м.
1 588 275
2 647 2
60 сот. 600 кв.м.
1 467 062
2 445 2
60 сот. 600 кв.м.
1 247 467
2 079 2
60 сот. 600 кв.м.
Дом с банным комплексом Новорижское шоссе, 25 км ID: 6503 В избранное:
6 спален Эксклюзивный
Под ключ с мебелью
Подробнее
Продажа
802 757 850
729 780 2
75 сот. 1100 кв.м.
8 500 000
7 727 2
75 сот. 1100 кв.м.
7 851 301
7 138 2
75 сот. 1100 кв.м.
6 676 091
6 069 2
75 сот. 1100 кв.м.
Резиденция на лесном участке Рублёво-Успенское шоссе, 15 км ID: 7272 В избранное:
6 спален Эксклюзивный
Под ключ с мебелью
Подробнее
Продажа
151 107 360
302 215 2
15 сот. 500 кв.м.
1 600 000
3 200 2
15 сот. 500 кв.м.
1 477 892
2 956 2
15 сот. 500 кв.м.
1 256 676
2 513 2
15 сот. 500 кв.м.
Дом в Успенских Полянах Рублёво-Успенское шоссе, 19 км ID: 6762 В избранное:
5 спален
Под ключ с мебелью
Подробнее
В избранном 0
Посмотреть избранное: 0
Скрыть
Отмена