Продажа

Отличный современный дом в стародачном поселке

6210
Дачи Новодарьино РАН, Рублёво-Успенское шоссе (20 км от МКАД)
69 000 000
730 606
674 848
573 835
Показать цену в
330 кв.м.
6 сот

Актуальность информации и точную стоимость уточняйте у менеджера: +7 (495) 800 67 76
Поделиться:
Дом

Общая плошадь
330 кв.м.

Кол-во спален
4

Отделка
Под чистовую

Тип застройки
Охраняемый поселок

Материал стен
Кирпич

Фундамент
Монолитный

Кровля
Металлочерепица

Облицовка
Комбинированная
Участок

Площадь участка
6 сот.

Ландшафт
Газон

Рельеф
Ровный

Разрешенное использование
Для жилищного строительства (ИЖС)

Населённый пункт
Новодарьино

Поселок
Дачи Новодарьино РАН

Расстояние до МКАД
20 км.
Коммуникации

Электричество
15 кВт.

Газоснабжение
Магистральный

Водоснабжение
Центральное

Канализация
Септик
Дополнительно

Охрана
Есть

Бассейн
Нет
Описание объекта
Предлагаем к покупке дом "под отделку" в деревне Новодарьино.
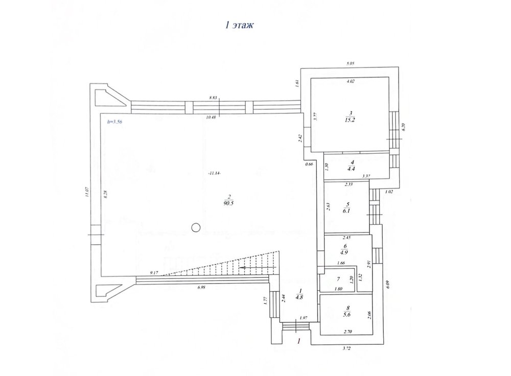
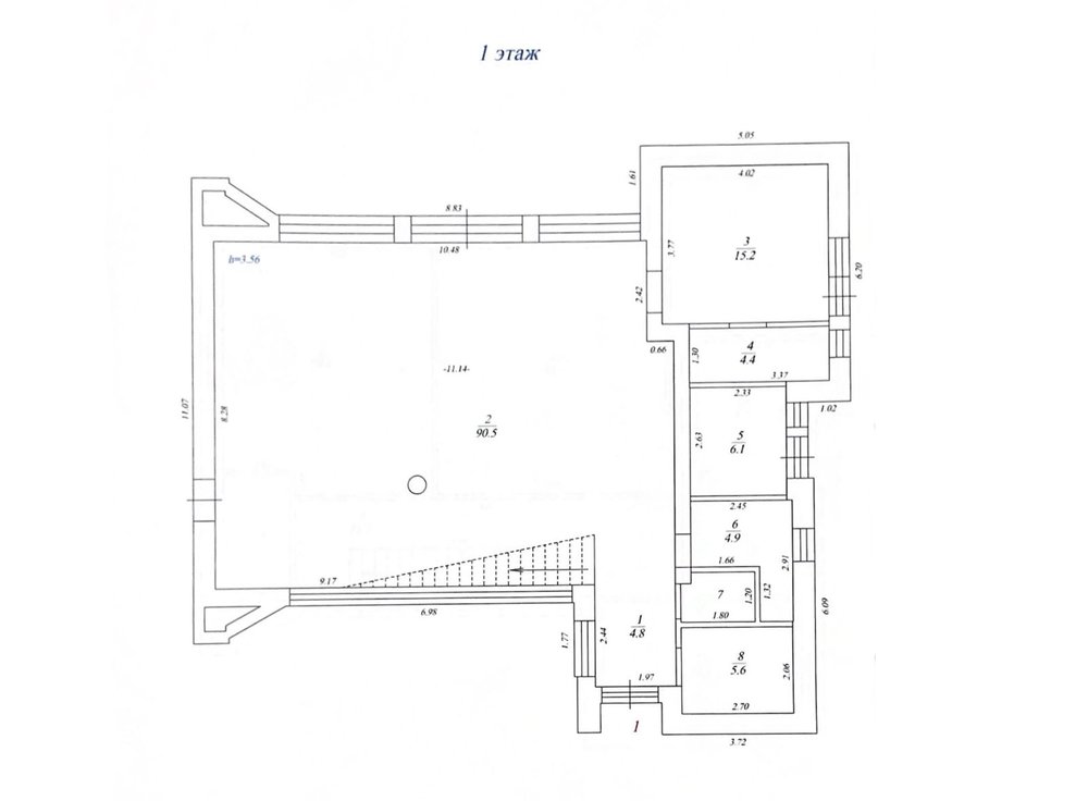
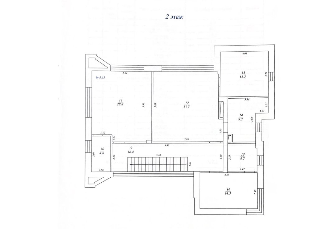
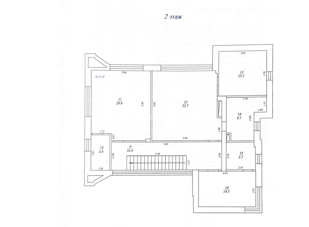
Планировка:
1 этаж: прихожая, гардеробная, кухня-гостиная с выходом на террасу, с/у, спальня с с/у, котельная ;
2 этаж: холл, мастер-спальня с гардеробной и с/у, 2 спальни со своими с/у.

Дом идеально подходит для комфортного и практичного образа жизни. Дом объединяет в себе функциональность, современное зонирование и атмосферу уюта, создавая пространство, в котором приятно жить и проводить время всей семьей. В доме два уровня. Внутреннее пространство включает четыре уютных спальни и пять функциональных ванных комнат.
Дом подготовлен под отделку- все основные строительные работы завершены, и теперь можно заняться созданием интерьера своей мечты. Эта стадия открывает простор для индивидуального дизайна с учетом личных вкусов и предпочтений.

Участок расположен на ровной местности с устойчивым, спокойным рельефом- это создаёт ощущение простора и гармонии в окружающем ландшафте. На всём участке высажен газон, который подчёркивает чистоту и аккуратность территории, создавая ощущение открытого и зелёного пространства.
На территории предусмотрены четыре парковочных места, расположенные таким образом, чтобы обеспечить лёгкий доступ и удобство в повседневном использовании. Такое размещение позволяет без труда припарковать автомобили всех членов семьи или гостей, при этом сохраняя свободное пространство участка и поддерживая его аккуратный внешний облик.
Заявка на просмотр объекта
Вы даете свое согласие на обработку Ваших персональных данных
Узнавайте о новинках первыми, подпишитесь:
Спасибо за обращение! Мы свяжемся с вами в ближайшее время
Ваше имя Ваш телефон

Похожие объекты:

Продажа
174 717 885
183 914 2
31 сот. 950 кв.м.
1 850 000
1 947 2
31 сот. 950 кв.м.
1 708 813
1 799 2
31 сот. 950 кв.м.
1 453 032
1 530 2
31 сот. 950 кв.м.
Дом в КП "Спутник" Новорижское шоссе, 35 км ID: 8605 В избранное:
7 спален Лесной
Под ключ с мебелью
Подробнее
Продажа
89 000 000
45 сот.
942 376
45 сот.
870 457
45 сот.
740 164
45 сот.
Участок в Чигасово Рублёво-Успенское шоссе, 27 км ID: 7253 В избранное:
Подробнее
Продажа
169 995 780
268 556 2
15 сот. 633 кв.м.
1 800 000
2 844 2
15 сот. 633 кв.м.
1 662 628
2 627 2
15 сот. 633 кв.м.
1 413 760
2 233 2
15 сот. 633 кв.м.
Дом в поселке "Береста-1" Новорижское шоссе, 1 км ID: 6824 В избранное:
5 спален
Под ключ с мебелью
Подробнее
Продажа
500 543 130
667 391 2
56 сот. 750 кв.м.
5 300 000
7 067 2
56 сот. 750 кв.м.
4 895 517
6 527 2
56 сот. 750 кв.м.
4 162 739
5 550 2
56 сот. 750 кв.м.
Современный дом в окружении соснового бора. Рублёво-Успенское шоссе, 25 км ID: 788 В избранное:
4 спальни Газон
Под ключ с мебелью
Подробнее
Продажа
128 000 000
224 561 2
18 сот. 570 кв.м.
1 355 328
2 378 2
18 сот. 570 кв.м.
1 251 893
2 196 2
18 сот. 570 кв.м.
1 064 505
1 868 2
18 сот. 570 кв.м.
Уютный и светлый дом Новорижское шоссе, 28 км ID: 6523 В избранное:
6 спален Прилесной
Под ключ с мебелью
Подробнее
Продажа
220 000 000
578 947 2
15 сот. 380 кв.м.
2 329 470
6 130 2
15 сот. 380 кв.м.
2 151 690
5 662 2
15 сот. 380 кв.м.
1 829 618
4 815 2
15 сот. 380 кв.м.
Новый коттедж в СК Липка Новорижское шоссе, 10 км ID: 9158 В избранное:
4 спальни Лесной
Под ключ с мебелью
Подробнее
Продажа
196 000 000
514 436 2
39.9 сот. 381 кв.м.
2 075 346
5 447 2
39.9 сот. 381 кв.м.
1 916 960
5 031 2
39.9 сот. 381 кв.м.
1 630 023
4 278 2
39.9 сот. 381 кв.м.
Роскошный загородный коттедж в КП "Зеленая роща-1" Минское шоссе, 31 км ID: 8810 В избранное:
7 спален Лесной
Под ключ с мебелью
Подробнее
Продажа
50 000 000
68 сот.
529 425
68 сот.
489 021
68 сот.
415 822
68 сот.
Участок в тихой части деревни Новорижское шоссе, 25 км ID: 6899 В избранное:
Подробнее
В избранном 0
Посмотреть избранное: 0
Скрыть
Отмена