Продажа

Особняк в классическом стиле

7755
Монтевиль, Новорижское шоссе (25 км от МКАД)
550 000 000
5 823 674
5 379 226
4 574 044
Показать цену в
976 кв.м.
47 сот

Актуальность информации и точную стоимость уточняйте у менеджера: +7 (495) 800 67 76
Поделиться:
Дом

Общая плошадь
976 кв.м.

Кол-во спален
5

Отделка
Под ключ с мебелью

Тип застройки
Охраняемый поселок

Материал стен
Кирпич

Фундамент
Монолитный
Участок

Площадь участка
47 сот.

Ландшафт
Смешанный

Рельеф
Ровный

Разрешенное использование
Для жилищного строительства (ИЖС)

Населённый пункт
Писково

Поселок
Монтевиль

Расстояние до МКАД
25 км.
Коммуникации

Газоснабжение
Магистральный

Водоснабжение
Центральное

Канализация
Центральная
Дополнительно

Охрана
Есть

Бассейн
Нет
Описание объекта
Предлагаем к покупке дом, приватно расположенный на ухоженном и утопающем в зелени участке, примыкающем к парковой территории элитного коттеджного поселка Монтевиль.
Из окон гостиной и мастер-спальни открывается потрясающий вид на парковый ландшафт участка в окружении зелени лиственных и хвойных деревьев. Имеется свой выход в парк.

Отделка в доме выполнена с использованием качественных премиальных материалов.

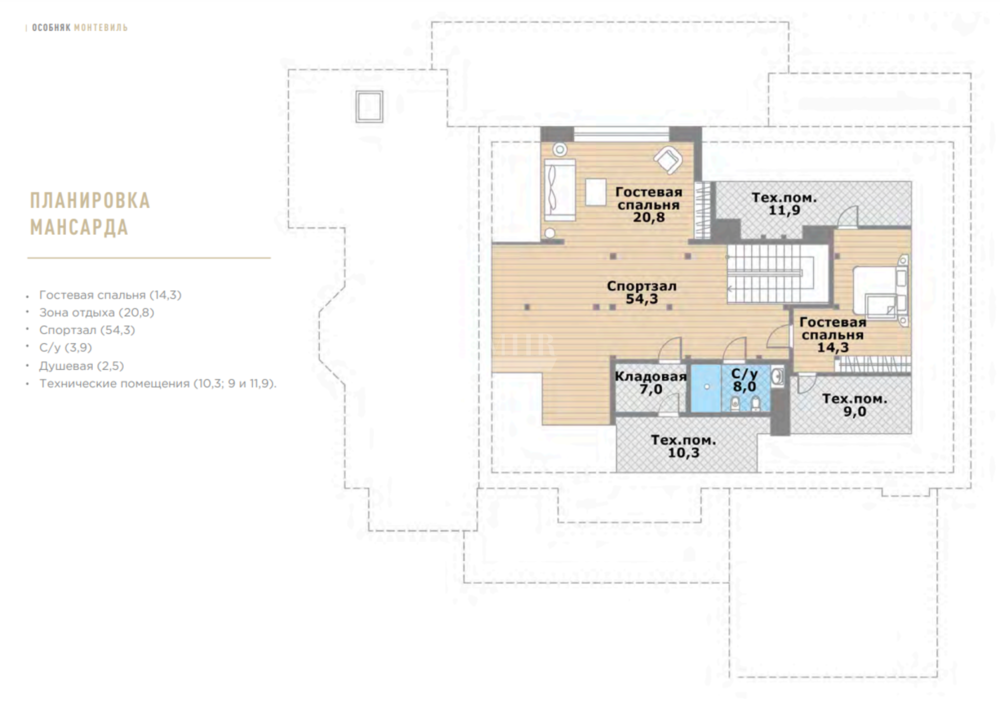
Планировка:
цоколь: спа-зона: массажная с душевой и зоной отдыха, сауна, хаммам, раздевалка, с/у, подсобное помещение, кладовая, общие и технические помещения: зона отдыха, с/у, сезонная гардеробная, кладовые и подсобные помещения, холодильная камера, постирочная;
1й этаж: прихожая, гардеробная, гостевой с/у, холл, гостиная с выходом на террасу, каминная-столовая, парадная кухня и техническая, кабинет, спальня со своим с/у, серверная, котельная, два независимых гаража с квартирой для персонала на втором этаже;
2й этаж: холл, спальня с выходом на балкон, ванная комната, с/у, две гардеробные, детская комната: гардеробная, ванная, игровая, еще один детский блок, блок для персонала;
мансарда: гостевая спальня, зона отдыха, спортзал, с/у, душевая, техническое помещение.

Котельная оборудована двумя конденсационными котлами Buderus, дизельгенератором Toyo/Kubota. Система кондиционирования - Daikin. Электрооборудование: контроллер Deep Sea, Socomec, ABB, электровыключатели Meljac. Замки Remy Garnier. Хаммам, сауна Harvia, Helo.

Коттеджный поселок Монтевиль расположен на экологически чистой территории Писково в Истринском районе Подмосковья в 23 км от МКАД по Новорижскому шоссе. Окружен первозданной подмосковной флорой и фауной, дремучими хвойными лесами и рыбными водоемами. Здесь можно уединиться и наслаждаться настоящей русской рыбалкой, виндсерфингом или созерцать непревзойденные панорамные виды с живописного побережья Беляны. В поселке организована пляжная зона с детскими и спортивными площадками, водными горками, беседками и рыболовными мостками. Есть возможность арендовать гребные лодки, катамараны и любое рыболовное снаряжение. На территории функционирует детский клуб, принимающий малышей возрастом от 1,2 годика. Также жителям поселка доступна вся инфраструктура близлежащих поселков семейства Villagio.
Заявка на просмотр объекта
Вы даете свое согласие на обработку Ваших персональных данных
Узнавайте о новинках первыми, подпишитесь:
Спасибо за обращение! Мы свяжемся с вами в ближайшее время
Ваше имя Ваш телефон

Похожие объекты:

Продажа
302 214 720
549 481 2
30 сот. 550 кв.м.
3 200 000
5 818 2
30 сот. 550 кв.м.
2 955 784
5 374 2
30 сот. 550 кв.м.
2 513 352
4 570 2
30 сот. 550 кв.м.
Роскошный дом в КП "Резиденции Бенилюкс" Новорижское шоссе, 19 км ID: 8814 В избранное:
5 спален Лесной
Под ключ с мебелью
Подробнее
Продажа
120 000 000
192 308 2
15 сот. 624 кв.м.
1 270 620
2 036 2
15 сот. 624 кв.м.
1 173 649
1 881 2
15 сот. 624 кв.м.
997 973
1 599 2
15 сот. 624 кв.м.
Особняк под ключ с мебелью в КП Маслово Рублёво-Успенское шоссе, 27 км ID: 5291 В избранное:
7 спален
Под ключ с мебелью
Подробнее
Продажа
144 505 857
23.54 сот.
1 530 100
23.54 сот.
1 413 327
23.54 сот.
1 201 775
23.54 сот.
Земельный участок в престижном месте Рублёво-Успенское шоссе, 24 км ID: 7666 В избранное:
Подробнее
Продажа
780 000 000
1 086 351 2
20 сот. 718 кв.м.
8 259 029
11 503 2
20 сот. 718 кв.м.
7 628 720
10 625 2
20 сот. 718 кв.м.
6 486 826
9 035 2
20 сот. 718 кв.м.
Дом на первой линии у воды! Рублёво-Успенское шоссе, 7 км ID: 9248 В избранное:
6 спален Газон
Под ключ с мебелью
Подробнее
Продажа
75 000 000
300 000 2
6.2 сот. 250 кв.м.
794 137
3 177 2
6.2 сот. 250 кв.м.
733 531
2 934 2
6.2 сот. 250 кв.м.
623 733
2 495 2
6.2 сот. 250 кв.м.
Новый дом с отделкой "под ключ" в КП "Новорижский" Новорижское шоссе, 24 км ID: 9126 В избранное:
5 спален Лесной
Под ключ с мебелью
Подробнее
Продажа
176 000 000
429 268 2
24 сот. 410 кв.м.
1 863 576
4 545 2
24 сот. 410 кв.м.
1 721 352
4 198 2
24 сот. 410 кв.м.
1 463 694
3 570 2
24 сот. 410 кв.м.
Деревянный дом в Новодарьино РАН Рублёво-Успенское шоссе, 19 км ID: 9105 В избранное:
4 спальни Лесной
Под ключ с мебелью
Подробнее
Продажа
160 000 000
444 444 2
11 сот. 360 кв.м.
1 694 160
4 706 2
11 сот. 360 кв.м.
1 564 866
4 347 2
11 сот. 360 кв.м.
1 330 631
3 696 2
11 сот. 360 кв.м.
Дом на живописном лесном участке Минское шоссе, 7 км ID: 6781 В избранное:
5 спален
Под ключ с мебелью
Подробнее
Продажа
180 000 000
500 000 2
21 сот. 360 кв.м.
1 905 930
5 294 2
21 сот. 360 кв.м.
1 760 474
4 890 2
21 сот. 360 кв.м.
1 496 960
4 158 2
21 сот. 360 кв.м.
Великолепный дом с отделкой в КП "Павлово-1" Новорижское шоссе, 14 км ID: 9171 В избранное:
5 спален Лесной
Под ключ
Подробнее
В избранном 0
Посмотреть избранное: 0
Скрыть
Отмена