Продажа

Очень качественный дом под отделку в КП "Николина Поляна"

8590
Николина Поляна, Ильинское шоссе (20 км от МКАД)
41 000 000
434 128
400 997
340 974
Показать цену в
331 кв.м.
18 сот

Актуальность информации и точную стоимость уточняйте у менеджера: +7 (495) 800 67 76
Поделиться:
Дом

Общая плошадь
331 кв.м.

Кол-во спален
4

Отделка
Без отделки

Тип застройки
Охраняемый поселок

Материал стен
Оцилиндрованное бревно

Фундамент
Монолитный

Кровля
Металлочерепица

Облицовка
Комбинированная
Участок

Площадь участка
18 сот.

Ландшафт
Лесной

Рельеф
Ровный

Разрешенное использование
Для жилищного строительства (ИЖС)

Населённый пункт
Дмитровское

Поселок
Николина Поляна

Расстояние до МКАД
20 км.
Коммуникации

Газоснабжение
По границе

Водоснабжение
Нет

Канализация
Нет
Дополнительно

Охрана
Есть

Бассейн
Нет
Описание объекта
    Предлагаем к покупке очень качественный дом под отделку в КП "Николина Поляна".
    Планировка:
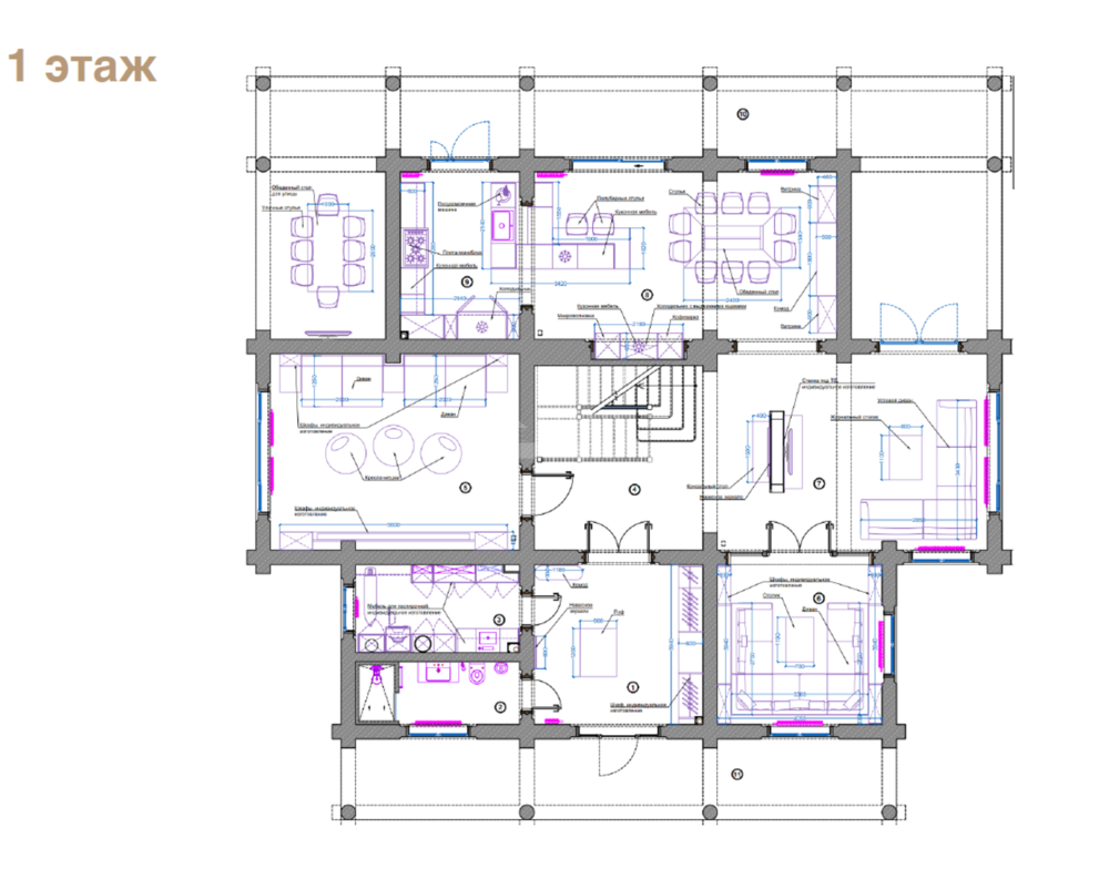
1-й этаж: прихожая, кухня, столовая, гостиная, библиотека, кинозал, хозблок/постирочная, санузел;
2-й этаж: мастер блок( спальня, санузел, гардеробная); детский блок( спальня, санузел, гардеробная, кладовка); детский блок( спальня, санузел, гардеробная);
гостевой блок( спальня, санузел, гардеробная, кладовка).
    
    Посёлок "Николина Поляна" красивое место в экологически чистом районе Подмосковья. Удобная транспортная доступность.
    Развитая инфраструктура посёлка: детские площадки, продуктовые магазин, аптека, пруд, удобные парковочные зоны.

Заявка на просмотр объекта
Вы даете свое согласие на обработку Ваших персональных данных
Узнавайте о новинках первыми, подпишитесь:
Спасибо за обращение! Мы свяжемся с вами в ближайшее время
Ваше имя Ваш телефон

Похожие объекты:

Продажа
145 000 000
517 857 2
13 сот. 280 кв.м.
1 535 332
5 483 2
13 сот. 280 кв.м.
1 418 159
5 065 2
13 сот. 280 кв.м.
1 205 884
4 307 2
13 сот. 280 кв.м.
Дом под ключ с мебелью в Шервуде Новорижское шоссе, 23 км ID: 2981 В избранное:
3 спальни Лесной
Под ключ с мебелью
Подробнее
Продажа
125 000 000
403 226 2
12 сот. 310 кв.м.
1 323 562
4 270 2
12 сот. 310 кв.м.
1 222 551
3 944 2
12 сот. 310 кв.м.
1 039 556
3 353 2
12 сот. 310 кв.м.
Стильный дом в КП "Новорижский" Новорижское шоссе, 27 км ID: 8861 В избранное:
4 спальни Лесной
Под ключ с мебелью
Подробнее
Продажа
280 000 000
30.6 сот.
2 964 779
30.6 сот.
2 738 515
30.6 сот.
2 328 604
30.6 сот.
Единственный участок в КП "Березки River Village" Рублёво-Успенское шоссе, 19 км ID: 8921 В избранное:
Лесной
Подробнее
Продажа
225 000 000
442 130 2
20 сот. 508.9 кв.м.
2 382 412
4 681 2
20 сот. 508.9 кв.м.
2 200 592
4 324 2
20 сот. 508.9 кв.м.
1 871 200
3 677 2
20 сот. 508.9 кв.м.
Дом в КП " Онегино ". Новорижское шоссе, 25 км ID: 8025 В избранное:
4 спальни Смешанный
Под ключ с мебелью
Подробнее
Продажа
60 000 000
113 550 2
7.7 сот. 528.4 кв.м.
635 310
1 202 2
7.7 сот. 528.4 кв.м.
586 825
1 111 2
7.7 сот. 528.4 кв.м.
498 987
944 2
7.7 сот. 528.4 кв.м.
Дом "под отделку" в КП " HYGGE HOUSE" Новорижское шоссе, 10 км ID: 8687 В избранное:
6 спален Парковый
Без отделки
Подробнее
Продажа
92 544 000
19.28 сот.
979 902
19.28 сот.
905 118
19.28 сот.
769 637
19.28 сот.
Участок под строительство Новорижское шоссе, 18 км ID: 9069 В избранное:
Поле
Подробнее
Продажа
91 728 000
195 000 2
5.54 сот. 470.4 кв.м.
971 262
2 065 2
5.54 сот. 470.4 кв.м.
897 137
1 907 2
5.54 сот. 470.4 кв.м.
762 851
1 622 2
5.54 сот. 470.4 кв.м.
Таунхаус под отделку Новорижское шоссе, 18 км ID: 9036 В избранное:
5 спален Газон
Без отделки
Подробнее
Продажа
1 794 399 900
747 667 2
61 сот. 2400 кв.м.
19 000 000
7 917 2
61 сот. 2400 кв.м.
17 549 967
7 312 2
61 сот. 2400 кв.м.
14 923 026
6 218 2
61 сот. 2400 кв.м.
Уникальная резиденция в элитном посёлке "Резиденции Бенилюкс" Новорижское шоссе, 19 км ID: 9113 В избранное:
5 спален Лесной
Под ключ с мебелью
Подробнее
В избранном 0
Посмотреть избранное: 0
Скрыть
Отмена