Продажа

Новый стильный дом!

8769
Новорижское шоссе (15 км от МКАД)
300 000 000
3 176 549
2 934 123
2 494 933
Показать цену в
650 кв.м.
18 сот

Актуальность информации и точную стоимость уточняйте у менеджера: +7 (495) 800 67 76
Поделиться:
Дом

Общая плошадь
650 кв.м.

Кол-во спален
5

Отделка
Под ключ

Тип застройки
Коттеджная застройка

Материал стен
Кирпич

Фундамент
Монолитный

Кровля
Плоская кровля

Облицовка
Комбинированная
Участок

Площадь участка
18 сот.

Ландшафт
Лесной

Рельеф
Террасный

Разрешенное использование
Для жилищного строительства (ИЖС)

Населённый пункт
Веледниково

Расстояние до МКАД
15 км.
Коммуникации

Электричество
30 кВт.

Газоснабжение
Магистральный

Водоснабжение
Индивидуальная скважина

Канализация
Септик
Дополнительно

Охрана
Есть

Бассейн
Нет
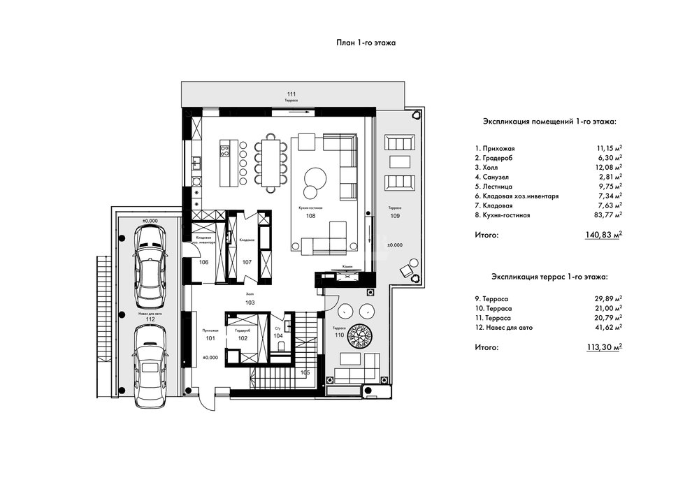
Описание объекта
Предлагаем новый стильный дом на красивом террасном участке с прудом, в охране. Очень красивые корабельные сосны, естественный лесной пейзаж с террасными тропинками. Дом выполнен из качественных материалов. В строительстве использовались только натуральные материалы. Большое панорамное остекление позволяет наслаждаться природой. Дом в охране, рядом красивые дома.

Планировка:
цокольный этаж: 2 спальни для персонала, кухня, с/у, постирочная , кладовка, спа-зона с кухней , хамам и сауна со стеклом в пол и видом на участок;
1 этаж: кухня-столовая-гостинная с камином, с/у, кладовка, гардеробная, выход на террасу;  
2 этаж: три большие спальни с с/у и гардеробными.
Отдельно на участке в окружении сосен большая отапливаемая беседка-барбекю с камином и полностью стеклянной открывающейся стеной с красивым видом на пруд.
Заявка на просмотр объекта
Вы даете свое согласие на обработку Ваших персональных данных
Узнавайте о новинках первыми, подпишитесь:
Спасибо за обращение! Мы свяжемся с вами в ближайшее время
Ваше имя Ваш телефон

Похожие объекты:

Продажа
170 000 000
265 625 2
20 сот. 640 кв.м.
1 800 045
2 813 2
20 сот. 640 кв.м.
1 662 670
2 598 2
20 сот. 640 кв.м.
1 413 795
2 209 2
20 сот. 640 кв.м.
Дуплекс в охраняемом поселке как на одну, так и на две семьи Рублёво-Успенское шоссе, 15 км ID: 2900 В избранное:
7 спален
Под ключ с мебелью
Подробнее
Продажа
83 000 000
276 667 2
12.5 сот. 300 кв.м.
878 845
2 929 2
12.5 сот. 300 кв.м.
811 774
2 706 2
12.5 сот. 300 кв.м.
690 265
2 301 2
12.5 сот. 300 кв.м.
Новый стильный дом Рублёво-Успенское шоссе, 28 км ID: 8236 В избранное:
4 спальни Прилесной
Без отделки
Подробнее
Продажа
70 370 000
227.1 сот.
745 113
227.1 сот.
688 247
227.1 сот.
585 228
227.1 сот.
Земельный участок с выходом на пляж Истринского водохранилища. Новорижское шоссе, 55 км ID: 8020 В избранное:
Подробнее
Продажа
71 500 000
200 280 2
18 сот. 357 кв.м.
757 078
2 121 2
18 сот. 357 кв.м.
699 299
1 959 2
18 сот. 357 кв.м.
594 626
1 666 2
18 сот. 357 кв.м.
Современный стильный дом в посёлке "Опушкино" Новорижское шоссе, 44 км ID: 8755 В избранное:
3 спальни Лесной
Под ключ
Подробнее
Продажа
314 840 000
437 278 2
11 сот. 720 кв.м.
3 333 683
4 630 2
11 сот. 720 кв.м.
3 079 264
4 277 2
11 сот. 720 кв.м.
2 618 349
3 637 2
11 сот. 720 кв.м.
Дом премиум-класса "под отделку" в ЖК "Резиденция Рублёво" Новорижское шоссе, 1 км ID: 9223 В избранное:
4 спальни Лесной
Без отделки
Подробнее
Продажа
70 000 000
177 665 2
8 сот. 394 кв.м.
741 195
1 881 2
8 сот. 394 кв.м.
684 629
1 738 2
8 сот. 394 кв.м.
582 151
1 478 2
8 сот. 394 кв.м.
Современный дом в КП Прозорово Новорижское шоссе, 11 км ID: 8729 В избранное:
4 спальни Газон
Без отделки
Подробнее
Продажа
141 663 150
228 488 2
15 сот. 620 кв.м.
1 500 000
2 419 2
15 сот. 620 кв.м.
1 385 524
2 235 2
15 сот. 620 кв.м.
1 178 134
1 900 2
15 сот. 620 кв.м.
Дом под ключ с мебелью на лесном участке Рублёво-Успенское шоссе, 15 км ID: 3214 В избранное:
5 спален
Под ключ с мебелью
Подробнее
Продажа
195 000 000
232 143 2
19 сот. 840 кв.м.
2 064 757
2 458 2
19 сот. 840 кв.м.
1 907 180
2 270 2
19 сот. 840 кв.м.
1 621 707
1 931 2
19 сот. 840 кв.м.
Дом с классической архитектурой Новорижское шоссе, 13 км ID: 9205 В избранное:
6 спален Лесной
Под ключ
Подробнее
В избранном 0
Посмотреть избранное: 0
Скрыть
Отмена