Продажа

Новый и стильный дом

6736
Маслово Forest Club, Рублёво-Успенское шоссе (28 км от МКАД)
82 126 000
869 591
803 226
682 996
Показать цену в
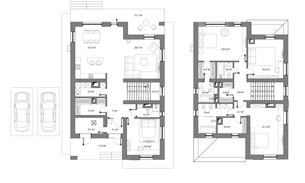
290.6 кв.м.
11.61 сот

Актуальность информации и точную стоимость уточняйте у менеджера: +7 (495) 800 67 76
Поделиться:
Дом

Общая плошадь
290.6 кв.м.

Кол-во спален
4

Отделка
Без отделки

Тип застройки
Охраняемый поселок

Материал стен
Кирпич

Фундамент
Монолитный
Участок

Площадь участка
11.61 сот.

Разрешенное использование
Для жилищного строительства (ИЖС)

Населённый пункт
Маслово

Поселок
Маслово Forest Club

Расстояние до МКАД
28 км.
Коммуникации

Газоснабжение
Магистральный

Водоснабжение
Центральное

Канализация
Центральная
Дополнительно

Охрана
Есть
Описание объекта
Дом в стиле Райта со скатной кровлей. Фасад: кирпич светлого оттенка, декоративная штукатурка в сочетании с планкеном темного цвета.

Дом Victory в стилистике «органической архитектуры» Фрэнка Ллойда Райта отличается чистотой линий и спокойными тонами. Респектабельность облика создаётся за счёт смещения объёмов и разнонаправленности кирпичной кладки. Лаконичный образ коттеджа создаётся благодаря отделке из натуральных и экологичных материалов: кирпича ручной формовки светлого оттенка, декоративной штукатурки и планкена тёмного цвета в акцентном оформлении.

На первом этаже владельцы могут обустроить просторную кухню-гостиную с камином и наслаждаться мерным потрескиванием дров в очаге. Здесь же свободно разместятся кабинет, ванная комната и хозяйственные помещения: полностью оборудованная котельная, гардеробная и кладовая.
Второй этаж отдан под приватную зону: у двух спален и детской предусмотрены личные ванные комнаты и гардеробные.
Заявка на просмотр объекта
Вы даете свое согласие на обработку Ваших персональных данных
Узнавайте о новинках первыми, подпишитесь:
Спасибо за обращение! Мы свяжемся с вами в ближайшее время
Ваше имя Ваш телефон

Похожие объекты:

Продажа
140 000 000
364 сот.
1 482 390
364 сот.
1 369 257
364 сот.
1 164 302
364 сот.
Участок под застройку Можайское шоссе, 17 км ID: 6859 В избранное:
Подробнее
Продажа
72 900 000
260 357 2
8 сот. 280 кв.м.
771 902
2 757 2
8 сот. 280 кв.м.
712 992
2 546 2
8 сот. 280 кв.м.
606 269
2 165 2
8 сот. 280 кв.м.
Новый дом в стародачном поселке Минское шоссе, 7 км ID: 8608 В избранное:
3 спальни Парковый
Без отделки
Подробнее
Продажа
66 000 000
132 132 2
14.23 сот. 499.5 кв.м.
698 841
1 399 2
14.23 сот. 499.5 кв.м.
645 507
1 292 2
14.23 сот. 499.5 кв.м.
548 885
1 099 2
14.23 сот. 499.5 кв.м.
Дом под отделку в Ильинском ландшафте Новорижское шоссе, 15 км ID: 5145 В избранное:
5 спален
Без отделки
Подробнее
Продажа
130 000 000
590 909 2
6 сот. 220 кв.м.
1 376 505
6 257 2
6 сот. 220 кв.м.
1 271 453
5 779 2
6 сот. 220 кв.м.
1 081 138
4 914 2
6 сот. 220 кв.м.
Фахверк в Подушкино Рублёво-Успенское шоссе, 8 км ID: 6715 В избранное:
4 спальни
Под ключ с мебелью
Подробнее
Продажа
98 545 000
339 109 2
12.73 сот. 290.6 кв.м.
1 043 444
3 591 2
12.73 сот. 290.6 кв.м.
963 811
3 317 2
12.73 сот. 290.6 кв.м.
819 544
2 820 2
12.73 сот. 290.6 кв.м.
Новый и стильный дом Рублёво-Успенское шоссе, 28 км ID: 6734 В избранное:
4 спальни
Без отделки
Подробнее
Продажа
93 000 000
310 000 2
3 сот. 300 кв.м.
984 730
3 282 2
3 сот. 300 кв.м.
909 578
3 032 2
3 сот. 300 кв.м.
773 429
2 578 2
3 сот. 300 кв.м.
Симпатичный таунхаус "под ключ" в жилом комплексе Парк Авеню Новорижское шоссе, 25 км ID: 8369 В избранное:
3 спальни Лесной
Под ключ с мебелью
Подробнее
Продажа
269 900 000
519 038 2
13.1 сот. 520 кв.м.
2 857 836
5 496 2
13.1 сот. 520 кв.м.
2 639 733
5 076 2
13.1 сот. 520 кв.м.
2 244 608
4 317 2
13.1 сот. 520 кв.м.
Современный дом в статусном поселке Рублёво-Успенское шоссе, 24 км ID: 7783 В избранное:
5 спален Газон
Без отделки
Подробнее
Продажа
130 000 000
423 453 2
30 сот. 307 кв.м.
1 376 505
4 484 2
30 сот. 307 кв.м.
1 271 453
4 142 2
30 сот. 307 кв.м.
1 081 138
3 522 2
30 сот. 307 кв.м.
Дом под отделку в КП "Онегино" Новорижское шоссе, 23 км ID: 8198 В избранное:
3 спальни Лесной
Без отделки
Подробнее
В избранном 0
Посмотреть избранное: 0
Скрыть
Отмена