Продажа

Новый дом в Молоденово

7255
Рублёво-Успенское шоссе (24 км от МКАД)
139 000 000
1 471 801
1 359 477
1 155 986
Показать цену в
540 кв.м.
13 сот

Актуальность информации и точную стоимость уточняйте у менеджера: +7 (495) 800 67 76
Поделиться:
Дом

Общая плошадь
540 кв.м.

Кол-во спален
5

Отделка
Под ключ

Тип застройки
Охраняемый поселок

Материал стен
Блоки

Фундамент
Монолитный
Участок

Площадь участка
13 сот.

Ландшафт
Газон

Рельеф
Ровный

Разрешенное использование
Для жилищного строительства (ИЖС)

Населённый пункт
Молоденово

Расстояние до МКАД
24 км.
Коммуникации

Газоснабжение
По границе

Водоснабжение
Скважина

Канализация
Септик
Дополнительно

Охрана
Нет

Бассейн
Нет
Описание объекта
Предлагаем к покупке новый дом бизнес-класса в Молоденово!

Дом завершён на этапе финишной отделки "под ключ" без мебели.

Дом построен из экологически чистых и качественных материалов с соблюдением всех технологий строительства.
Стены в доме являются дышащими и паропроницаемыми с показателем равным 0,20 мг/(мчПа). Это важный параметр, так как он влияет на комфортный микроклимат в помещении и долговечность конструкции. Стены выполнены из блоков Bonolit D500.
Декорированы качественной немецкой клинкерной плиткой.

Крыша - усиленная теплоизоляция и качественная мягкая черепица. Самый практичный и долговечный материал после меди.

Панорамные окна от выполнены из профиля REHAU.

Инженерия: Газовое отопление, водяной тёплый пол с регулировкой температуры в каждой комнате.
Водоснабжение — собственная артезианская скважина и система водоочистки: вода кристально чистая, никакой пластиковой бутилированной воды не нужно.

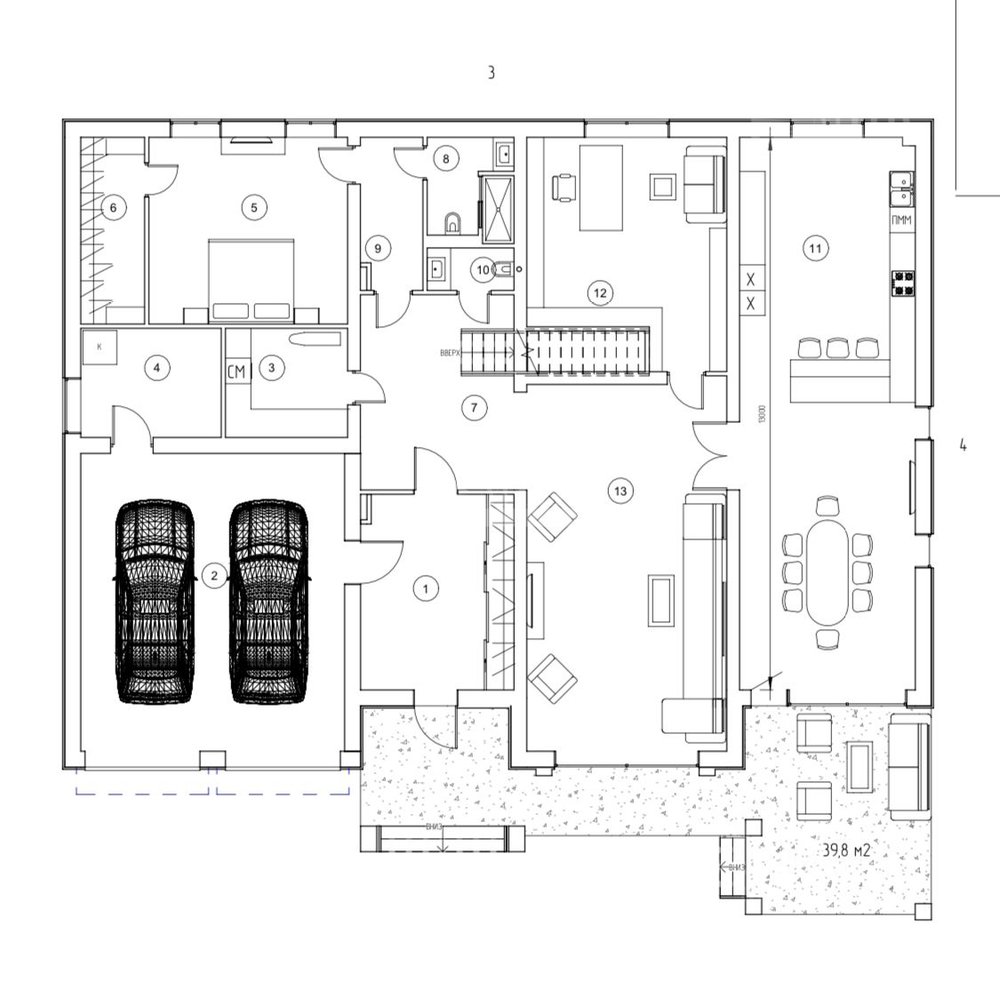
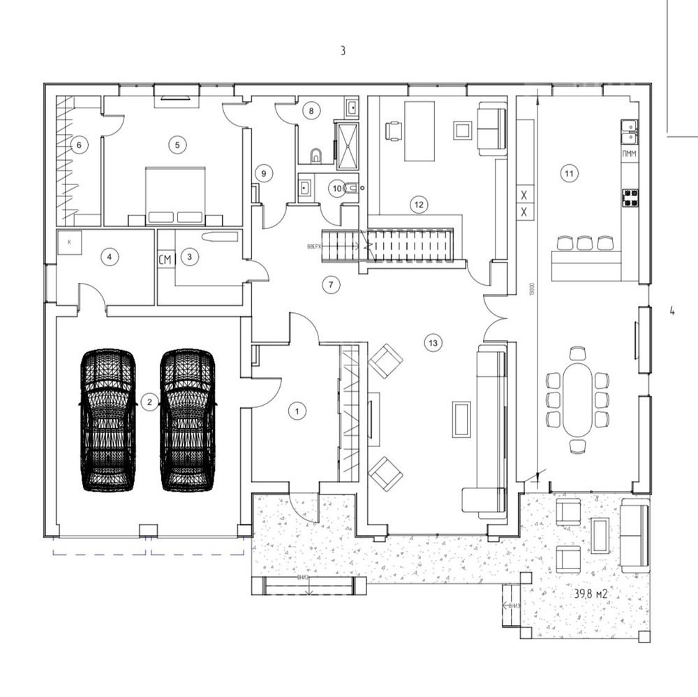
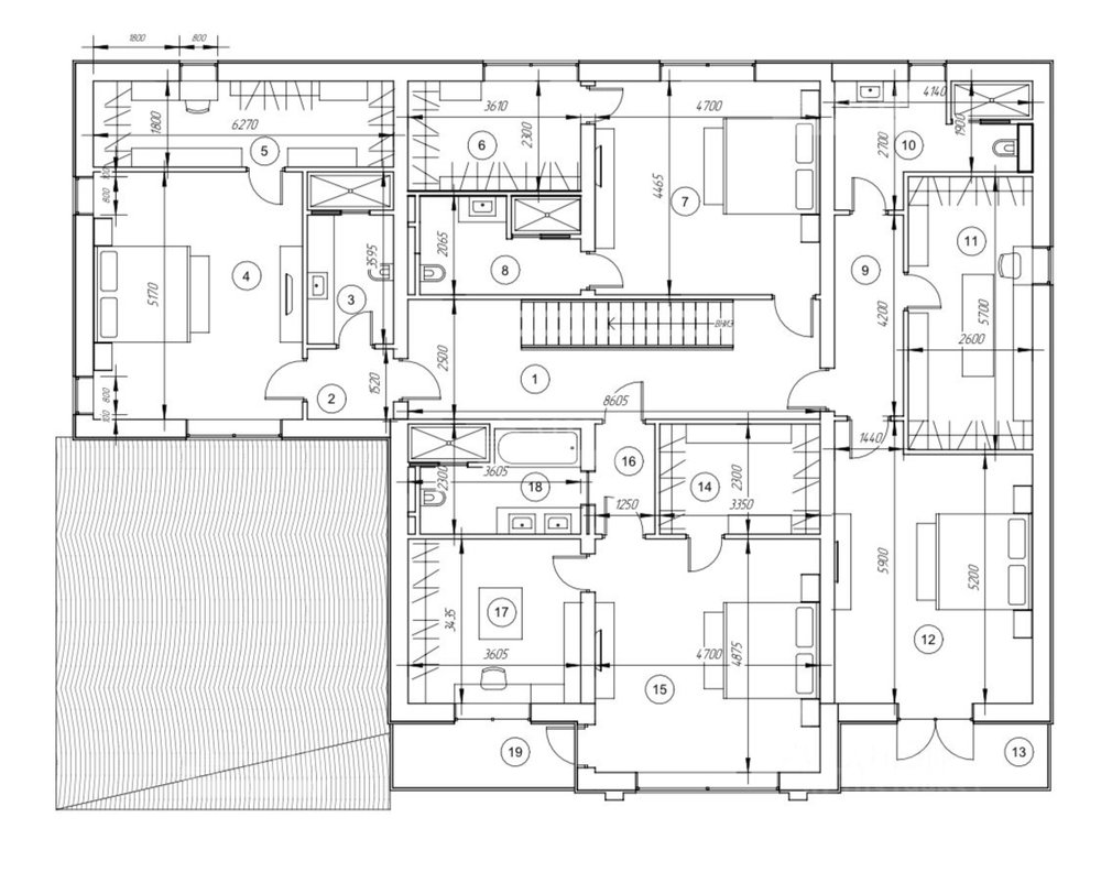
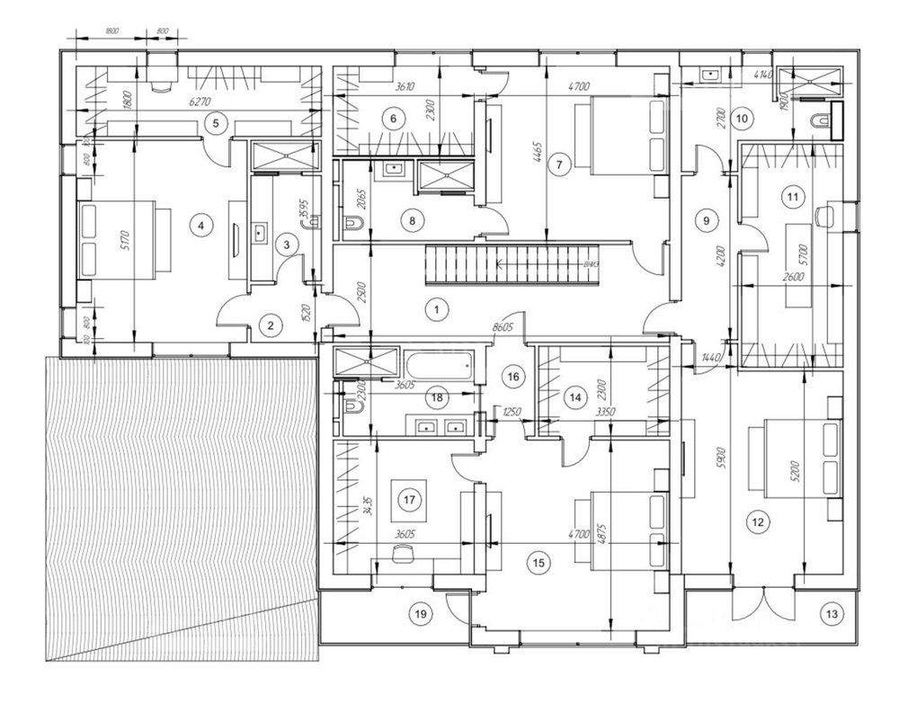
Планировка:
1й этаж: кухня с выходом на террасу, кабинет, спальня с санузлом, постирочная, гостевой туалет, котельная и гараж на два автомобиля;
2й этаж: четыре спальни, каждая со своей гардеробной и ванной комнатой, мастер-блок — с балконом.

Инфраструктура: 5 минут на машинедо разнообразных магазинов, Ломоносовской школы. В 10 минутах пешком — новый парк площадью 80 гектаров, до Рублёвского ТЦ — 10 км.
Заявка на просмотр объекта
Вы даете свое согласие на обработку Ваших персональных данных
Узнавайте о новинках первыми, подпишитесь:
Спасибо за обращение! Мы свяжемся с вами в ближайшее время
Ваше имя Ваш телефон

Похожие объекты:

Продажа
59 900 000
176 176 2
4.6 сот. 340 кв.м.
634 251
1 865 2
4.6 сот. 340 кв.м.
585 847
1 723 2
4.6 сот. 340 кв.м.
498 155
1 465 2
4.6 сот. 340 кв.м.
Дуплекс в КП "Европа-3" Ильинское шоссе, 22 км ID: 9127 В избранное:
5 спален Лесной
Под ключ с мебелью
Подробнее
Продажа
95 000 000
24 сот.
1 005 907
24 сот.
929 139
24 сот.
790 062
24 сот.
Лесной участок в Баковке Минское шоссе, 7 км ID: 9136 В избранное:
Лесной
Подробнее
Продажа
72 900 000
260 357 2
8 сот. 280 кв.м.
771 902
2 757 2
8 сот. 280 кв.м.
712 992
2 546 2
8 сот. 280 кв.м.
606 269
2 165 2
8 сот. 280 кв.м.
Новый дом в стародачном поселке Минское шоссе, 7 км ID: 8608 В избранное:
3 спальни Парковый
Без отделки
Подробнее
Продажа
1 038 863 100
465 858 2
35 сот. 2230 кв.м.
11 000 000
4 933 2
35 сот. 2230 кв.м.
10 160 507
4 556 2
35 сот. 2230 кв.м.
8 639 647
3 874 2
35 сот. 2230 кв.м.
Резиденция под отделку Новорижское шоссе, 23 км ID: 9002 В избранное:
6 спален
Без отделки
Подробнее
Продажа
71 500 000
200 280 2
18 сот. 357 кв.м.
757 078
2 121 2
18 сот. 357 кв.м.
699 299
1 959 2
18 сот. 357 кв.м.
594 626
1 666 2
18 сот. 357 кв.м.
Современный стильный дом в посёлке "Опушкино" Новорижское шоссе, 44 км ID: 8755 В избранное:
3 спальни Лесной
Под ключ
Подробнее
Продажа
95 000 000
28 сот.
1 005 907
28 сот.
929 139
28 сот.
790 062
28 сот.
Участок под строительство дома Рублёво-Успенское шоссе, 19 км ID: 7824 В избранное:
Прилесной
Подробнее
Продажа
330 000 000
165 000 2
24 сот. 2000 кв.м.
3 494 204
1 747 2
24 сот. 2000 кв.м.
3 227 535
1 614 2
24 сот. 2000 кв.м.
2 744 427
1 372 2
24 сот. 2000 кв.м.
Коттедж в поселке "Madison Park" Рублёво-Успенское шоссе, 27 км ID: 9275 В избранное:
Без отделки
Подробнее
Продажа
370 000 000
759 754 2
24.73 сот. 487 кв.м.
3 917 744
8 045 2
24.73 сот. 487 кв.м.
3 618 752
7 431 2
24.73 сот. 487 кв.м.
3 077 084
6 318 2
24.73 сот. 487 кв.м.
Дом под ключ в классическом стиле Рублёво-Успенское шоссе, 28 км ID: 4931 В избранное:
5 спален
Под ключ
Подробнее
В избранном 0
Посмотреть избранное: 0
Скрыть
Отмена