Продажа

Коттедж вблизи Москвы

9015
Можайское шоссе (1 км от МКАД)
290 000 000
3 070 664
2 836 319
2 411 769
Показать цену в
700 кв.м.
17 сот

Актуальность информации и точную стоимость уточняйте у менеджера: +7 (495) 800 67 76
Поделиться:
Дом

Общая плошадь
700 кв.м.

Кол-во спален
5

Отделка
Под ключ с мебелью

Тип застройки
Охраняемый поселок

Материал стен
Кирпич

Фундамент
Монолитный
Участок

Площадь участка
17 сот.

Ландшафт
Смешанный

Рельеф
Ровный

Разрешенное использование
Для жилищного строительства (ИЖС)

Населённый пункт
Немчиновка

Расстояние до МКАД
1 км.
Коммуникации

Газоснабжение
Магистральный

Водоснабжение
Центральное

Канализация
Центральная
Дополнительно

Охрана
Есть

Бассейн
Есть
Описание объекта
Предлагаем к покупке загородный коттедж под ключ с мебелью в непосредственной близости к Москве, всего в 1 км от МКАД - в Немчиновке.
Фасад дома с многоскатной крышей. Стены облицованы кремовой плиткой с благородной фактурой камня, создающей ощущение монументальности и изысканности. Большие окна визуально расширяют внутренние пространства и наполняют их солнечными лучами.
Современные интерьеры выдержаны в светлых тонах и декорированы молдингами, стеновыми панелями с геометричными золотистыми вставками и изящными люстрами. Планировка включает четыре уютные спальни, спа-зону с бассейном, баней и хаммамом, бильярдную и комнату отдыха.

Есть крытая терраса с зоной для барбекю, оборудованная казаном и тандыром.

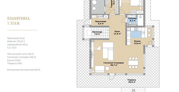
Планировка:
Цоколь: бильярдная, постирочная, бойлерная,технические и подсобные помещения, холодильная комната, зоны хранения;
1й этаж: прихожая, холл, гостиная, кухня-столовая, спа-зона с бассейном, баней, хаммамом и душевой,терраса;
2й этаж: мастер-спальня с гардеробной, 3 спальни с санузлами;
мансарда: спальня, комната отдыха, санузел.

Посёлок «Немчиновка» находится рядом с МКАД, а также к нему прилегает Минское шоссе. Дорога до аэропорта Внуково займёт около 25-ти минут, а вся необходимая инфраструктура находится в пешей доступности. Особой гордостью локации стали живописные парки — Парк Малевича, Мещерский парк, Ромашковский лес и «Парк Раздолье», где можно наслаждаться долгими прогулками и единением с природой.
Заявка на просмотр объекта
Вы даете свое согласие на обработку Ваших персональных данных
Узнавайте о новинках первыми, подпишитесь:
Спасибо за обращение! Мы свяжемся с вами в ближайшее время
Ваше имя Ваш телефон

Похожие объекты:

Продажа
128 000 000
414 239 2
15 сот. 309 кв.м.
1 355 328
4 386 2
15 сот. 309 кв.м.
1 251 893
4 051 2
15 сот. 309 кв.м.
1 064 505
3 445 2
15 сот. 309 кв.м.
Уютный дом в камерном поселке Рублёво-Успенское шоссе, 28 км ID: 9047 В избранное:
Сад
Под ключ с мебелью
Подробнее
Продажа
85 000 000
340 000 2
10 сот. 250 кв.м.
900 022
3 600 2
10 сот. 250 кв.м.
831 335
3 325 2
10 сот. 250 кв.м.
706 898
2 828 2
10 сот. 250 кв.м.
Коттедж "под ключ" в КП " Работники МИД" Можайское шоссе, 19 км ID: 8623 В избранное:
4 спальни Поле
Под ключ
Подробнее
Продажа
120 000 000
545 455 2
15 сот. 220 кв.м.
1 270 620
5 776 2
15 сот. 220 кв.м.
1 173 649
5 335 2
15 сот. 220 кв.м.
997 973
4 536 2
15 сот. 220 кв.м.
Кирпичный дом Новорижское шоссе, 23 км ID: 7364 В избранное:
4 спальни Газон
Под ключ с мебелью
Подробнее
Продажа
855 000 000
675 889 2
100.34 сот. 1265 кв.м.
9 053 166
7 157 2
100.34 сот. 1265 кв.м.
8 362 251
6 610 2
100.34 сот. 1265 кв.м.
7 110 560
5 621 2
100.34 сот. 1265 кв.м.
Дом с стиле шале Новорижское шоссе, 19 км ID: 5530 В избранное:
4 спальни
Под ключ с мебелью
Подробнее
Продажа
387 212 610
586 686 2
5 сот. 660 кв.м.
4 100 000
6 212 2
5 сот. 660 кв.м.
3 787 098
5 738 2
5 сот. 660 кв.м.
3 220 232
4 879 2
5 сот. 660 кв.м.
Идеальный вариант для тех, кто хочет жить в большом доме Новорижское шоссе, 1 км ID: 3380 В избранное:
5 спален
Под ключ с мебелью
Подробнее
Продажа
2 266 610 400
1 212 091 2
110 сот. 1870 кв.м.
24 000 000
12 834 2
110 сот. 1870 кв.м.
22 168 380
11 855 2
110 сот. 1870 кв.м.
18 850 139
10 080 2
110 сот. 1870 кв.м.
Шикарный дом в старой части Николино Рублёво-Успенское шоссе, 24 км ID: 7862 В избранное:
6 спален Смешанный
Под ключ с мебелью
Подробнее
Продажа
255 000 000
31 сот.
2 700 067
31 сот.
2 494 005
31 сот.
2 120 693
31 сот.
Просторный участок в Шульгино ГП-4 Рублёво-Успенское шоссе, 8 км ID: 8878 В избранное:
Поле
Подробнее
Продажа
85 000 000
175 258 2
12 сот. 485 кв.м.
900 022
1 856 2
12 сот. 485 кв.м.
831 335
1 714 2
12 сот. 485 кв.м.
706 898
1 458 2
12 сот. 485 кв.м.
Дом в Прозорово Новорижское шоссе, 15 км ID: 6052 В избранное:
5 спален
Без отделки
Подробнее
В избранном 0
Посмотреть избранное: 0
Скрыть
Отмена