Продажа

Коттедж "под отделку" в КП " Работники МИД"

8623
Можайское шоссе (19 км от МКАД)
71 000 000
751 783
694 409
590 468
Показать цену в
250 кв.м.
10 сот

Актуальность информации и точную стоимость уточняйте у менеджера: +7 (495) 800 67 76
Поделиться:
Дом

Общая плошадь
250 кв.м.

Кол-во спален
4

Отделка
Под чистовую

Тип застройки
Охраняемый поселок

Материал стен
Кирпич

Фундамент
Монолитный

Кровля
Металлочерепица

Облицовка
Комбинированная
Участок

Площадь участка
10 сот.

Ландшафт
Поле

Рельеф
Ровный

Разрешенное использование
Для жилищного строительства (ИЖС)

Населённый пункт
Перхушково

Расстояние до МКАД
19 км.
Коммуникации

Газоснабжение
Магистральный

Водоснабжение
Центральное

Канализация
Центральная
Дополнительно

Охрана
Есть

Бассейн
Нет
Описание объекта
     К покупке предлагаем коттедж "под отделку" в КП " Работники МИД".
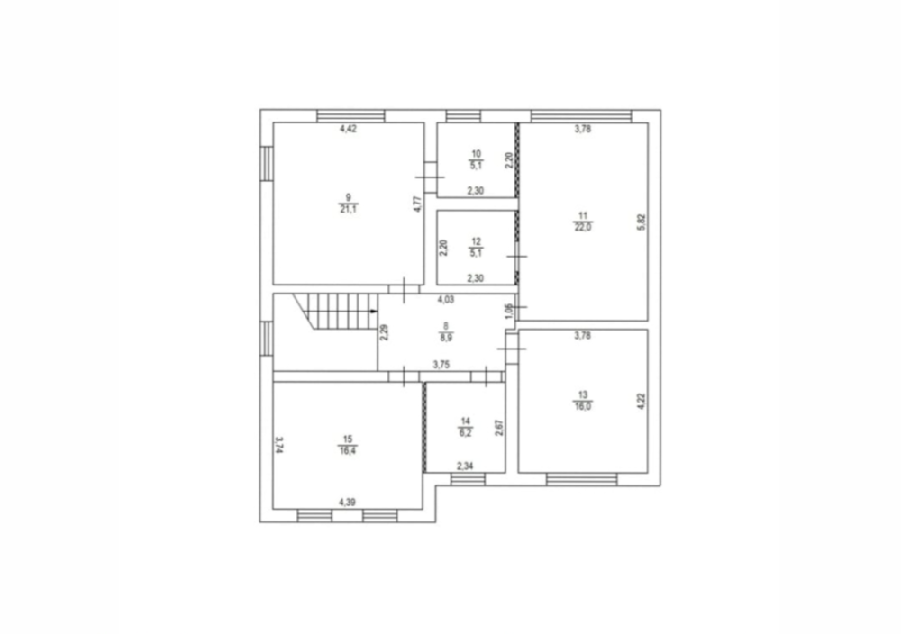
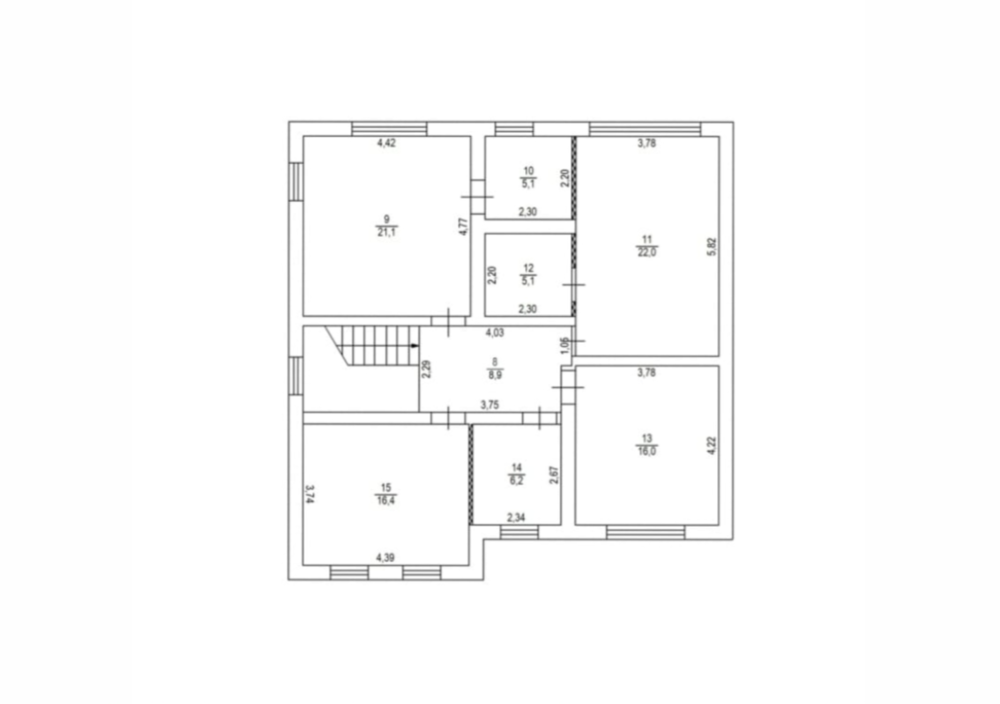
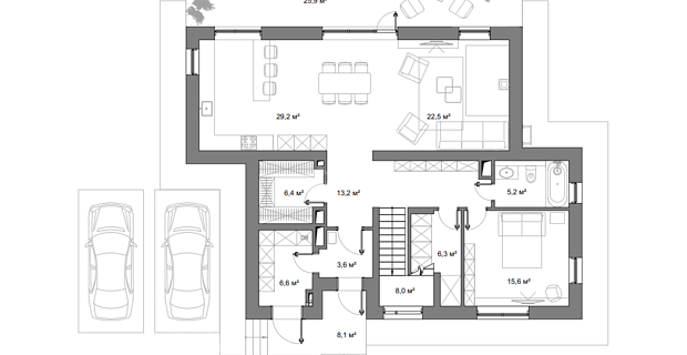
   Планировка:
   1-й этаж: холл, гостиная с кухней-столовой и выходом на веранду, спальная комната, гардеробная, постирочная, бойлерная, ванная комната;
   2-й этаж: две спальни со своими ванными комнатами, спальная комната, ванная комната.
   На участке построен навес на два автомобиля, также есть парковка для гостевых автомобилей, засеян газон и проложены дорожки.

   Стародачный посёлок окружен вековым лесом, в посёлке оборудована детская площадка и продуктовый магазин.
   Развитая инфраструктура позволяет жить в доме постоянно, рядом есть школы и детские сады, магазины, рестораны и все что необходимо для жизни.
   Посёлок охраняется, въезд на территорию осуществляется по пропускам.
Заявка на просмотр объекта
Вы даете свое согласие на обработку Ваших персональных данных
Узнавайте о новинках первыми, подпишитесь:
Спасибо за обращение! Мы свяжемся с вами в ближайшее время
Ваше имя Ваш телефон

Похожие объекты:

Продажа
330 547 350
168 646 2
47 сот. 1960 кв.м.
3 500 000
1 786 2
47 сот. 1960 кв.м.
3 232 889
1 649 2
47 сот. 1960 кв.м.
2 748 979
1 403 2
47 сот. 1960 кв.м.
Дом Новорижское шоссе, 10 км ID: 6895 В избранное:
6 спален
Без отделки
Подробнее
Продажа
135 000 000
339 026 2
15 сот. 398.2 кв.м.
1 429 447
3 590 2
15 сот. 398.2 кв.м.
1 320 355
3 316 2
15 сот. 398.2 кв.м.
1 122 720
2 819 2
15 сот. 398.2 кв.м.
Стильный дом в Лесных Далях Рублёво-Успенское шоссе, 28 км ID: 7315 В избранное:
3 спальни Смешанный
Под ключ с мебелью
Подробнее
Продажа
390 000 000
866 667 2
10 сот. 450 кв.м.
4 129 514
9 177 2
10 сот. 450 кв.м.
3 814 360
8 476 2
10 сот. 450 кв.м.
3 243 413
7 208 2
10 сот. 450 кв.м.
Дом "под ключ" в коттеджном посёлке "Заря" Рублёво-Успенское шоссе, 19 км ID: 8333 В избранное:
4 спальни Смешанный
Под ключ
Подробнее
Продажа
29 250 000
15 сот.
309 714
15 сот.
286 077
15 сот.
243 256
15 сот.
Участок в Грибово Минское шоссе, 11 км ID: 9024 В избранное:
Опушка леса
Подробнее
Продажа
59 000 000
393 333 2
3 сот. 150 кв.м.
624 721
4 165 2
3 сот. 150 кв.м.
577 044
3 847 2
3 сот. 150 кв.м.
490 670
3 271 2
3 сот. 150 кв.м.
Дом в поселке Жуковка-1 Рублёво-Успенское шоссе, 7 км ID: 8386 В избранное:
4 спальни Лесной
Без отделки
Подробнее
Продажа
370 000 000
770 833 2
15 сот. 480 кв.м.
3 917 744
8 162 2
15 сот. 480 кв.м.
3 618 752
7 539 2
15 сот. 480 кв.м.
3 077 084
6 411 2
15 сот. 480 кв.м.
Новый с удобной локацией! Рублёво-Успенское шоссе, 19 км ID: 6905 В избранное:
5 спален
Под ключ
Подробнее
Продажа
306 700 720
433 сот.
3 247 500
433 сот.
2 999 659
433 сот.
2 550 659
433 сот.
Участок в Горышкино Рублёво-Успенское шоссе, 28 км ID: 7552 В избранное:
Подробнее
Продажа
550 000 000
549 сот.
5 823 674
549 сот.
5 379 226
549 сот.
4 574 044
549 сот.
Земельный участок под строительство поселка Рублёво-Успенское шоссе, 24 км ID: 7621 В избранное:
Поле
Подробнее
В избранном 0
Посмотреть избранное: 0
Скрыть
Отмена