Продажа

Элегантный дом в КП "Жуковке"

9082
Рублёво-Успенское шоссе (9 км от МКАД)
1 180 526 250
12 500 000
11 546 031
9 817 780
Показать цену в
784.3 кв.м.
51.62 сот

Актуальность информации и точную стоимость уточняйте у менеджера: +7 (495) 800 67 76
Поделиться:
Дом

Общая плошадь
784.3 кв.м.

Кол-во спален
6

Отделка
Под ключ с мебелью

Тип застройки
Охраняемый поселок

Материал стен
Кирпич

Фундамент
Монолитный

Кровля
Металлочерепица

Облицовка
Облицовочный кирпич
Участок

Площадь участка
51.62 сот.

Ландшафт
Лесной

Рельеф
Ровный

Разрешенное использование
Для жилищного строительства (ИЖС)

Населённый пункт
Жуковка

Расстояние до МКАД
9 км.
Коммуникации

Газоснабжение
Магистральный

Водоснабжение
Центральное

Канализация
Центральная
Дополнительно

Охрана
Есть

Бассейн
Есть
Описание объекта
Предлагаем к покупке элегантный дом в Жуковке
Цоколь: многофункциональный wellness-комплекс с полноценной SPA-зоной: сауна, с/у, 2 душевые, хаммам, зона отдыха, бассейн с противотоком, кинозал, чемоданная, комната  для хранения, постирочная, массажная, котельная.
1-й этаж: холл с выходом на просторную террасу, гардеробная, с/у, кабинет, каминный зал с выходом во двор, кухня-столовая с выходом на просторную террасу, каминная зона отдыха;
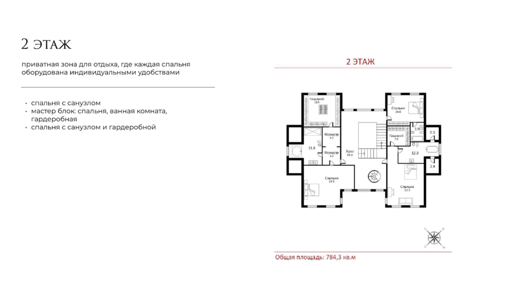
2-й этаж: приватная зона для отдыха, где каждая спальня оборудована индивидуальными удобствами: спальня с с/у, мастер блок: спальня, ванная комната, гардеробная, спальня с с/у и гардеробной.
Мансарда: уединенная гостевая зона с камерной и уютной атмосферой: 2 спальни, с/у.
Гостевой дом №1: комфортное пространство для приема и размещения гостей: столовая, 3 спальни, 3 с/у, столовая, коридор, 2 террасы, котельная.
Гостевой дом №2: пространство для досуга и неформальных приемов: кухня, столовая, бар, каминный зал, гардероб, терраса.

КП "Жуковка"- сохраняет статус одной из самых престижных локаций Подмосковья, предлагая гармоничное сочетание приватной загородной жизни с преимуществами столичной инфраструктуры.
Заявка на просмотр объекта
Вы даете свое согласие на обработку Ваших персональных данных
Узнавайте о новинках первыми, подпишитесь:
Спасибо за обращение! Мы свяжемся с вами в ближайшее время
Ваше имя Ваш телефон

Похожие объекты:

Продажа
280 000 000
316 384 2
15 сот. 885 кв.м.
2 964 779
3 350 2
15 сот. 885 кв.м.
2 738 515
3 094 2
15 сот. 885 кв.м.
2 328 604
2 631 2
15 сот. 885 кв.м.
Одноэтажный дом с цоколем Ильинское шоссе, 15 км ID: 8579 В избранное:
6 спален Смешанный
Под ключ с мебелью
Подробнее
Продажа
380 000 000
32 сот.
4 023 629
32 сот.
3 716 556
32 сот.
3 160 249
32 сот.
Земельный участок с выходом к каналу Новорижское шоссе, 24 км ID: 9276 В избранное:
Газон
Подробнее
Продажа
424 989 450
472 211 2
43.5 сот. 900 кв.м.
4 500 000
5 000 2
43.5 сот. 900 кв.м.
4 156 571
4 618 2
43.5 сот. 900 кв.м.
3 534 401
3 927 2
43.5 сот. 900 кв.м.
Дом на большом участке в Бенилюксе Новорижское шоссе, 19 км ID: 7548 В избранное:
8 спален Эксклюзивный
Под ключ с мебелью
Подробнее
Продажа
84 500 000
497 938 2
0.01 сот. 169.7 кв.м.
894 728
5 272 2
0.01 сот. 169.7 кв.м.
826 445
4 870 2
0.01 сот. 169.7 кв.м.
702 740
4 141 2
0.01 сот. 169.7 кв.м.
Квартира под ключ в Агаларове Новорижское шоссе, 23 км ID: 8492 В избранное:
2 спальни 3 комнаты 3 сан. узла
Под ключ 3 этаж
Подробнее
Продажа
700 000 000
1 400 000 2
15 сот. 500 кв.м.
7 411 949
14 824 2
15 сот. 500 кв.м.
6 846 287
13 693 2
15 сот. 500 кв.м.
5 821 511
11 643 2
15 сот. 500 кв.м.
Дом в отличной локации Рублёво-Успенское шоссе, 11 км ID: 9227 В избранное:
4 спальни Газон
Под ключ с мебелью
Подробнее
Продажа
195 210 000
318 971 2
15 сот. 612 кв.м.
2 066 981
3 377 2
15 сот. 612 кв.м.
1 909 234
3 120 2
15 сот. 612 кв.м.
1 623 453
2 653 2
15 сот. 612 кв.м.
Дом в элитном коттеджном посёлке "Знаменское поле" Рублёво-Успенское шоссе, 15 км ID: 9051 В избранное:
5 спален Лесной
Под ключ с мебелью
Подробнее
Продажа
390 000 000
541 667 2
17.5 сот. 720 кв.м.
4 129 514
5 735 2
17.5 сот. 720 кв.м.
3 814 360
5 298 2
17.5 сот. 720 кв.м.
3 243 413
4 505 2
17.5 сот. 720 кв.м.
Новый современный дом Новорижское шоссе, 19 км ID: 7103 В избранное:
5 спален
Под чистовую
Подробнее
Продажа
575 000 000
625 000 2
28.04 сот. 920 кв.м.
6 088 386
6 618 2
28.04 сот. 920 кв.м.
5 623 736
6 113 2
28.04 сот. 920 кв.м.
4 781 955
5 198 2
28.04 сот. 920 кв.м.
Дом под ключ Новорижское шоссе, 19 км ID: 6561 В избранное:
5 спален Смешанный
Под ключ
Подробнее
В избранном 0
Посмотреть избранное: 0
Скрыть
Отмена