Продажа

Дом в стадии строительства

6304
Знаменское-Сосны НПИЗ, Рублёво-Успенское шоссе (15 км от МКАД)
155 770 770
1 649 379
1 523 502
1 295 459
Показать цену в
625 кв.м.
20 сот

Актуальность информации и точную стоимость уточняйте у менеджера: +7 (495) 800 67 76
Поделиться:
Дом

Общая плошадь
625 кв.м.

Кол-во спален
5

Отделка
Без отделки

Тип застройки
Охраняемый поселок

Материал стен
Блоки

Фундамент
Монолитный
Участок

Площадь участка
20 сот.

Разрешенное использование
Для жилищного строительства (ИЖС)

Населённый пункт
Знаменское

Поселок
Знаменское-Сосны НПИЗ

Расстояние до МКАД
15 км.
Коммуникации

Газоснабжение
Магистральный

Водоснабжение
Центральное

Канализация
Центральная
Дополнительно

Охрана
Есть
Описание объекта
Предлагаем к продаже новый дом в Знаменское-Сосны. Дом расположен на второй линии от леса, с балкона открывается прекрасный вид на окрестности. Дом правильно расположен - в течение всего дня на участке солнце.
На участке запроектировано строение русской бани и зоны барбекю.
Стены тёплая керамика 440 мм, межкомнатные перегородки полнотелый кирпич. Все перекрытия монолит. Фундамент - заглубления лента на 2 м сверху плита перекрытия 20 мм.  Фальцевая кровля производство - Финляндия, финишное покрытие по технологии двойной фальц.
Гараж на 2-3 автомобиля. Одна из самых  благоустроенных улиц в посёлке.
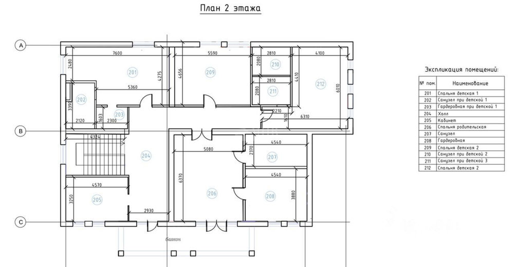
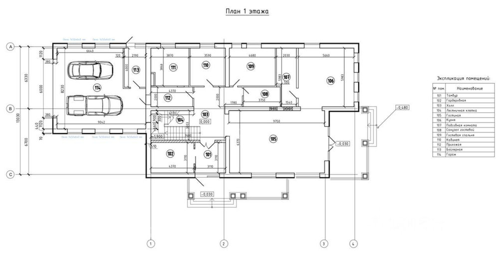
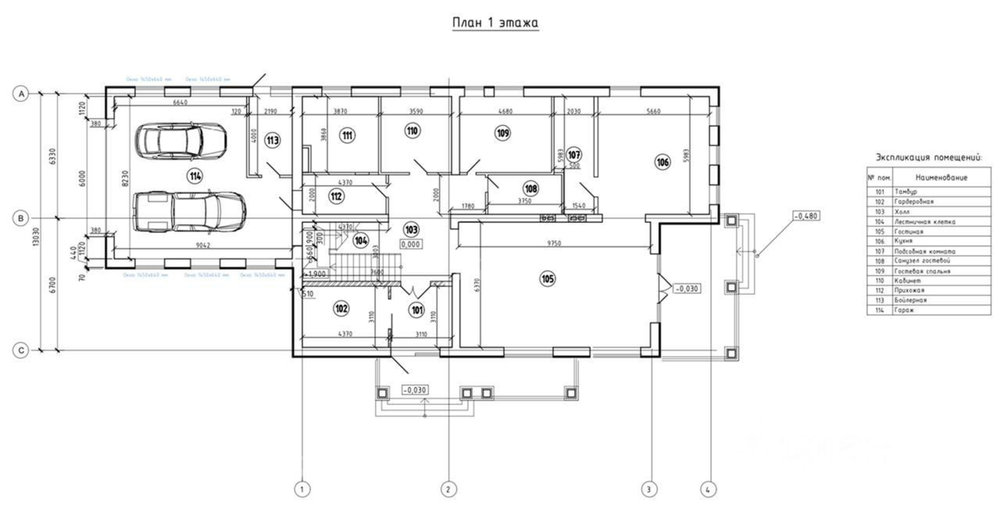
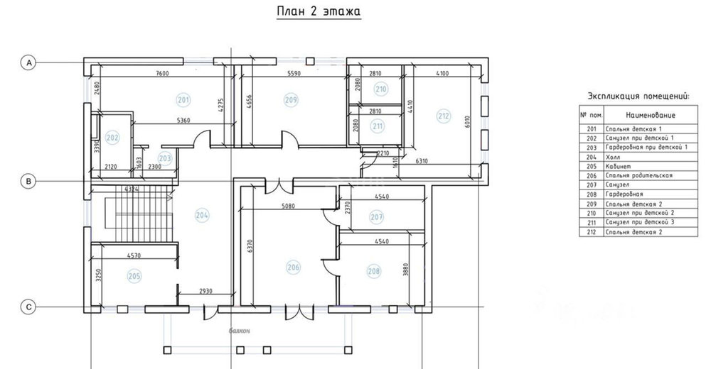
Планировка:
Цоколь: винная комната, погреб, тех-помещение.
1 этаж: холл, прихожая, бойлерная, кухня-столовая, гостиная, гардеробная, гостевая спальня, 2 с/у, кабинет, котельная, подсобная комната.
2 этаж: холл, мастер блок с своим с/у и гардеробной, 3 детских спальни с своими с/у и гардеробными, спальня родительская со своим с/у и гардеробной, кабинет.
Заявка на просмотр объекта
Вы даете свое согласие на обработку Ваших персональных данных
Узнавайте о новинках первыми, подпишитесь:
Спасибо за обращение! Мы свяжемся с вами в ближайшее время
Ваше имя Ваш телефон

Похожие объекты:

Продажа
145 000 000
290 000 2
19 сот. 500 кв.м.
1 535 332
3 071 2
19 сот. 500 кв.м.
1 418 159
2 836 2
19 сот. 500 кв.м.
1 205 884
2 412 2
19 сот. 500 кв.м.
Уютный дом в кп "Монтевиль"! Новорижское шоссе, 25 км ID: 7165 В избранное:
4 спальни
Под ключ с мебелью
Подробнее
Продажа
200 000 000
46 сот.
2 117 700
46 сот.
1 956 082
46 сот.
1 663 289
46 сот.
Участок в приватной части Николиной горы Рублёво-Успенское шоссе, 24 км ID: 6393 В избранное:
Лесной
Подробнее
Продажа
115 000 000
402 098 2
26.12 сот. 286 кв.м.
1 217 677
4 258 2
26.12 сот. 286 кв.м.
1 124 747
3 933 2
26.12 сот. 286 кв.м.
956 391
3 344 2
26.12 сот. 286 кв.м.
Дом из крупноформатного клеёного бруса высочайшего качества Ленинградское шоссе, 129 км ID: 6980 В избранное:
4 спальни Эксклюзивный
Под ключ с мебелью
Подробнее
Продажа
120 000 000
245 399 2
29.31 сот. 489 кв.м.
1 270 620
2 598 2
29.31 сот. 489 кв.м.
1 173 649
2 400 2
29.31 сот. 489 кв.м.
997 973
2 041 2
29.31 сот. 489 кв.м.
Современный загородный дом Новорижское шоссе, 16 км ID: 9020 В избранное:
3 спальни Лесной
Под ключ с мебелью
Подробнее
Продажа
149 000 000
298 000 2
30 сот. 500 кв.м.
1 577 686
3 155 2
30 сот. 500 кв.м.
1 457 281
2 915 2
30 сот. 500 кв.м.
1 239 150
2 478 2
30 сот. 500 кв.м.
Близость к платной дороге Рублёво-Успенское шоссе, 15 км ID: 6494 В избранное:
6 спален Газон
Под ключ с мебелью
Подробнее
Продажа
177 000 000
354 000 2
24 сот. 500 кв.м.
1 874 164
3 748 2
24 сот. 500 кв.м.
1 731 133
3 462 2
24 сот. 500 кв.м.
1 472 011
2 944 2
24 сот. 500 кв.м.
Дом Минское шоссе, 31 км ID: 7687 В избранное:
Подробнее
Продажа
375 000 000
551 471 2
23.23 сот. 680 кв.м.
3 970 687
5 839 2
23.23 сот. 680 кв.м.
3 667 654
5 394 2
23.23 сот. 680 кв.м.
3 118 667
4 586 2
23.23 сот. 680 кв.м.
Новый дом "под ключ" с бассейном на Николиной горе Рублёво-Успенское шоссе, 24 км ID: 8430 В избранное:
4 спальни Лесной
Под ключ
Подробнее
Продажа
165 000 000
200 730 2
15 сот. 822 кв.м.
1 747 102
2 125 2
15 сот. 822 кв.м.
1 613 768
1 963 2
15 сот. 822 кв.м.
1 372 213
1 669 2
15 сот. 822 кв.м.
Прекрасный уютный дом в РАПСе Рублёво-Успенское шоссе, 22 км ID: 5640 В избранное:
6 спален Лесной
Под ключ с мебелью
Подробнее
В избранном 0
Посмотреть избранное: 0
Скрыть
Отмена