Продажа

Дом в Лесном Городке

6286
Минское шоссе (13 км от МКАД)
39 000 000
412 951
381 436
324 341
Показать цену в
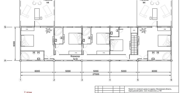
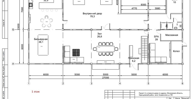
378 кв.м.
10 сот

Актуальность информации и точную стоимость уточняйте у менеджера: +7 (495) 800 67 76
Поделиться:
Дом

Общая плошадь
378 кв.м.

Отделка
Без отделки

Тип застройки
Деревня

Материал стен
Кирпич

Фундамент
Монолитный
Участок

Площадь участка
10 сот.

Разрешенное использование
Для жилищного строительства (ИЖС)

Населённый пункт
Лесной Городок

Расстояние до МКАД
13 км.
Коммуникации

Электричество
15 кВт.

Газоснабжение
Магистральный

Водоснабжение
Скважина

Канализация
Септик
Дополнительно

Охрана
Нет
Описание объекта
Предлагаем на продажу дом в Лесном Городке. Помимо основного дома на участке располагается гостевой дом (полностью под ключ). Электричество - 15 кВт, 3 фазы, магистральный газ. На участке септик и скважина.
Заявка на просмотр объекта
Вы даете свое согласие на обработку Ваших персональных данных
Узнавайте о новинках первыми, подпишитесь:
Спасибо за обращение! Мы свяжемся с вами в ближайшее время
Ваше имя Ваш телефон

Похожие объекты:

Продажа
434 433 660
241 352 2
40.76 сот. 1800 кв.м.
4 600 000
2 556 2
40.76 сот. 1800 кв.м.
4 248 939
2 361 2
40.76 сот. 1800 кв.м.
3 612 943
2 007 2
40.76 сот. 1800 кв.м.
Дом под отделку! Новорижское шоссе, 23 км ID: 9022 В избранное:
5 спален Газон
Без отделки
Подробнее
Продажа
134 000 000
377 465 2
10 сот. 355 кв.м.
1 418 859
3 997 2
10 сот. 355 кв.м.
1 310 575
3 692 2
10 сот. 355 кв.м.
1 114 403
3 139 2
10 сот. 355 кв.м.
Дом в поселке Европа-2 Ильинское шоссе, 22 км ID: 7791 В избранное:
4 спальни Парковый
Под ключ с мебелью
Подробнее
Продажа
849 978 900
1 170 769 2
146 сот. 726 кв.м.
9 000 000
12 397 2
146 сот. 726 кв.м.
8 313 142
11 451 2
146 сот. 726 кв.м.
7 068 802
9 737 2
146 сот. 726 кв.м.
Эко- Усадьба Знаменское Поле( Горки-2) Рублёво-Успенское шоссе, 17 км ID: 7989 В избранное:
5 спален Прилесной
Под чистовую
Подробнее
Продажа
2 361 052 500
1 124 311 2
63 сот. 2100 кв.м.
25 000 000
11 905 2
63 сот. 2100 кв.м.
23 092 062
10 996 2
63 сот. 2100 кв.м.
19 635 561
9 350 2
63 сот. 2100 кв.м.
Загородная резиденция Рублёво-Успенское шоссе, 19 км ID: 6826 В избранное:
5 спален
Под ключ
Подробнее
Продажа
145 000 000
426 471 2
10 сот. 340 кв.м.
1 535 332
4 516 2
10 сот. 340 кв.м.
1 418 159
4 171 2
10 сот. 340 кв.м.
1 205 884
3 547 2
10 сот. 340 кв.м.
Современный дом в охраняемом поселке Новорижское шоссе, 29 км ID: 8872 В избранное:
4 спальни Газон
Под ключ с мебелью
Подробнее
Продажа
500 000 000
454 545 2
24 сот. 1100 кв.м.
5 294 249
4 813 2
24 сот. 1100 кв.м.
4 890 205
4 446 2
24 сот. 1100 кв.м.
4 158 222
3 780 2
24 сот. 1100 кв.м.
Дом со СПА-зоной в КП "Ренессанс парк" Новорижское шоссе, 19 км ID: 9297 В избранное:
5 спален Газон
Под ключ с мебелью
Подробнее
Продажа
256 000 000
192 916 2
24 сот. 1327 кв.м.
2 710 656
2 043 2
24 сот. 1327 кв.м.
2 503 785
1 887 2
24 сот. 1327 кв.м.
2 129 010
1 604 2
24 сот. 1327 кв.м.
Дом в итальянском стиле Новорижское шоссе, 19 км ID: 3157 В избранное:
7 спален Газон
Без отделки
Подробнее
Продажа
186 995 358
22 сот.
1 980 000
22 сот.
1 828 891
22 сот.
1 555 136
22 сот.
Участок в КП Николино Рублёво-Успенское шоссе, 24 км ID: 7455 В избранное:
Подробнее
В избранном 0
Посмотреть избранное: 0
Скрыть
Отмена