Продажа

Дом с бассейном

5157
КП Горки-6 (Индиго), Ильинское шоссе (9 км от МКАД)
1 200 000 000
12 706 198
11 736 492
9 979 733
Показать цену в
1046 кв.м.
33.5 сот

Актуальность информации и точную стоимость уточняйте у менеджера: +7 (495) 800 67 76
Поделиться:
Дом

Общая плошадь
1046 кв.м.

Кол-во спален
5

Отделка
Под ключ с мебелью

Тип застройки
Коттеджная застройка

Материал стен
Комбинированный

Фундамент
Монолитный

Кровля
Металлочерепица

Облицовка
Дерево
Участок

Площадь участка
33.5 сот.

Ландшафт
Смешанный

Рельеф
С перепадами высот

Разрешенное использование
Для жилищного строительства (ИЖС)

Населённый пункт
Горки-6

Поселок
КП Горки-6 (Индиго)

Расстояние до МКАД
9 км.
Коммуникации

Электричество
80 кВт.

Газоснабжение
Магистральный

Водоснабжение
Центральное

Канализация
Центральная
Дополнительно

Охрана
Есть

Бассейн
Есть
Описание объекта
Предлагаем к покупке дом c участком по проекту студии Atrium архитекторами Антоном Надточий и Верой Бутко в стиле минимализм.
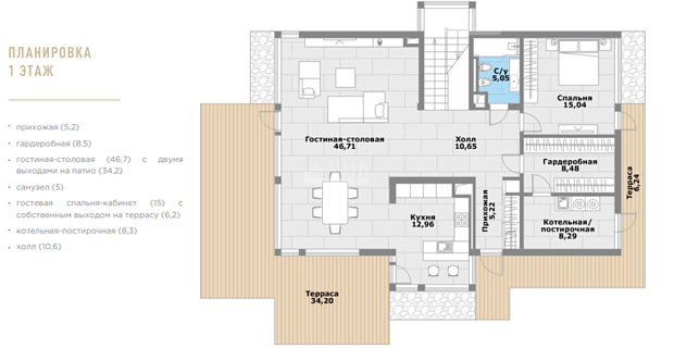
Планировка дома:
1-й этаж: чемоданная, венткамера, техническое помещение СПА-зоны.
СПА-зона: бассейн с противотоком, сауна из абаши( африканское дерево), хамам, джакузи, с/у, душевая, раздевалка.
Малая гостиная, винная комната с круглосуточным охлаждением, сырная комната, домашний кинотеатр( со звукоизоляцией и акустической подготовкой, готовый к установке оборудования), блок из 4 детских спален( с индивидуальными ванными комнатами и гардеробами), производственная кухня с кухонным подъемником, кладовая, постирочная и помещение для хранения уборочного инвентаря, две спальни для персонала с душевыми, вент камера, электрощитовая, серверная, водомерный узел с оборудованием для водоподготовки, котельная, комната для водителя с санузлом.
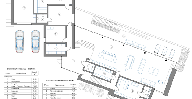
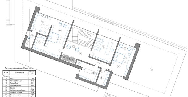
2-й этаж: главная гостиная с дровяным камином, парадная кухня и доготовочная, гардеробная, хозяйский блок: спальня, ванная комната, несколько гардеробных для одежды, спортзал или библиотека, гараж, кабинет или комната водителя, с/у.

РЕЗИДЕНЦИЯ “ГОРКИ-6” РАСПОЛОЖЕНА НА ТЕРРИТОРИИ ПАРКА 3,8 ГА В ГРАНИЦАХ ОХРАНЯЕМОГО ПОСЁЛКА. В КОМПЛЕКС РЕЗИДЕНЦИИ ВХОДЯТ ДВА ДОМОВЛАДЕНИЯ, СПА КОМПЛЕКС И ПУНКТ ОХРАНЫ С НАВЕСОМ НА ЧЕТЫРЕ АВТОМОБИЛЯ, СТОЯНКИ ДЛЯ ПАРКОВКИ АВТОМОБИЛЕЙ. ВЫСАЖЕНЫ БОЛЕЕ 100 ВИДОВ РАСТЕНИЙ, УСТРОЕНЫ ДВА ПРУДА, РУЧЕЙ НА ВЕРХНЕЙ И НИЖНЕЙ ТЕРРАСЕ.

ПРИ СОЗДАНИИ ПРОЕКТА ПРИМЕНЕНЫ СМЕЛЫЕ ТЕХНИЧЕСКИЕ И КОНСТРУКТИВНЫЕ РЕШЕНИЯ. ЭЛЕМЕНТЫ ФАСАДА ИМЕЮТ КЛЕЕНЫЕ И СТЕКЛЯННЫЕ УГЛОВЫЕ СОЕДИНЕНИЯ С ОБРАТНЫМ НАКЛОНОМ. ПРИРОДНЫЕ МАТЕРИАЛЫ: КАНАДСКИЙ ДУБ, ИТАЛЬЯНСКИЙ СЛАНЕЦ, ТРЕВЕРТИН.

В ДОМЕ: 6 СПАЛЕН, 2 ГОСТИНЫЕ, 2 КУХНИ, 9 ВАННЫХ КОМНАТ, КАБИНЕТ, БИБЛИОТЕКА, БАССЕЙН 10м x 3м, ХАММАМ, ТЕРРАСЫ С КАМИНАМИ, ЖИЛЫЕ ПОМЕЩЕНИЯ ДЛЯ ПЕРСОНАЛА, ГАРАЖ НА 4 ММ.
Заявка на просмотр объекта
Вы даете свое согласие на обработку Ваших персональных данных
Узнавайте о новинках первыми, подпишитесь:
Спасибо за обращение! Мы свяжемся с вами в ближайшее время
Ваше имя Ваш телефон

Похожие объекты:

Продажа
350 000 000
42 сот.
3 705 974
42 сот.
3 423 144
42 сот.
2 910 755
42 сот.
Прилесной участок в горках-8 Рублёво-Успенское шоссе, 19 км ID: 8781 В избранное:
6 спален Прилесной
Под ключ с мебелью
Подробнее
Продажа
70 900 000
230 945 2
10 сот. 307 кв.м.
750 725
2 445 2
10 сот. 307 кв.м.
693 431
2 259 2
10 сот. 307 кв.м.
589 636
1 921 2
10 сот. 307 кв.м.
Дом из клееного бруса Новорижское шоссе, 28 км ID: 7063 В избранное:
4 спальни
Под ключ
Подробнее
Продажа
312 000 000
814 621 2
17 сот. 383 кв.м.
3 303 611
8 626 2
17 сот. 383 кв.м.
3 051 488
7 967 2
17 сот. 383 кв.м.
2 594 731
6 775 2
17 сот. 383 кв.м.
Финский эко-дом под ключ Рублёво-Успенское шоссе, 16 км ID: 5467 В избранное:
Под ключ
Подробнее
Продажа
220 000 000
289 093 2
13.85 сот. 761 кв.м.
2 329 470
3 061 2
13.85 сот. 761 кв.м.
2 151 690
2 827 2
13.85 сот. 761 кв.м.
1 829 618
2 404 2
13.85 сот. 761 кв.м.
Стильный дом в Немчиново Сколковское шоссе, 5 км ID: 7851 В избранное:
4 спальни Смешанный
Без отделки
Подробнее
Продажа
99 000 000
257 813 2
8.34 сот. 384 кв.м.
1 048 261
2 730 2
8.34 сот. 384 кв.м.
968 261
2 522 2
8.34 сот. 384 кв.м.
823 328
2 144 2
8.34 сот. 384 кв.м.
Дом с отделкой white box Рублёво-Успенское шоссе, 26 км ID: 8542 В избранное:
4 спальни Газон
Под чистовую
Подробнее
Продажа
99 900 000
339 796 2
12 сот. 294 кв.м.
1 057 791
3 598 2
12 сот. 294 кв.м.
977 063
3 323 2
12 сот. 294 кв.м.
830 813
2 826 2
12 сот. 294 кв.м.
Модный фахверк с авторской отделкой в КП "Зелёная Роща" Минское шоссе, 34 км ID: 8041 В избранное:
4 спальни Лесной
Под ключ с мебелью
Подробнее
Продажа
75 000 000
241 158 2
3.7 сот. 311 кв.м.
794 137
2 553 2
3.7 сот. 311 кв.м.
733 531
2 359 2
3.7 сот. 311 кв.м.
623 733
2 006 2
3.7 сот. 311 кв.м.
Торцевой таунхаус в Park Fonte Новорижское шоссе, 28 км ID: 8057 В избранное:
Смешанный
Подробнее
Продажа
120 000 000
160 000 2
31 сот. 750 кв.м.
1 270 620
1 694 2
31 сот. 750 кв.м.
1 173 649
1 565 2
31 сот. 750 кв.м.
997 973
1 331 2
31 сот. 750 кв.м.
Прекрасный дом в лесном поселке Новорижское шоссе, 39 км ID: 5715 В избранное:
7 спален
Без отделки
Подробнее
В избранном 0
Посмотреть избранное: 0
Скрыть
Отмена