Продажа

Дом "под отделку" в КП "Шервуд"

8772
Шервуд, Новорижское шоссе (23 км от МКАД)
1 038 863 100
11 000 000
10 160 507
8 639 647
Показать цену в
2500 кв.м.
32 сот

Актуальность информации и точную стоимость уточняйте у менеджера: +7 (495) 800 67 76
Поделиться:
Дом

Общая плошадь
2500 кв.м.

Кол-во спален
8

Отделка
Без отделки

Тип застройки
Охраняемый поселок

Материал стен
Кирпич

Фундамент
Монолитный

Кровля
Металлочерепица

Облицовка
Комбинированная
Участок

Площадь участка
32 сот.

Ландшафт
Лесной

Рельеф
Ровный

Разрешенное использование
Для дачного строительства

Населённый пункт
Воронино

Поселок
Шервуд

Расстояние до МКАД
23 км.
Коммуникации

Электричество
50 кВт.

Газоснабжение
Магистральный

Водоснабжение
Центральное

Канализация
Центральная
Дополнительно

Охрана
Есть

Бассейн
Есть
Описание объекта
Предлагаем к покупке дом "под отделку" в КП "Шервуд".
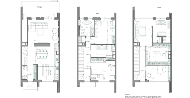
Планировка:
1-й уровень: большой тамбур, прихожая, гардеробная, гостевой с/у, гараж на 3 автомобиля с возможностью сделать лифт для второго уровня, комната для водителя, кухня, вторая разделочная кухня, столовая, просторная гостиная с камином, СПА- зона с бассейном, сауной и хаммамом, выход на террасу, блок для персонала с отдельным входом;
2-й уровень: 6 спален с гардеробными комнатами и с с/у, кабинет, кинотеатр, прачечная, зона чил-аут с барбекю и террасой.
Участок 34 соток собственность и 1,15 Га леса- оформленная аренда.

В коттеджном посёлке Шервуд представлены 95 роскошных домовладений на земельных участках от 20 до 150 соток. Продажи ведутся исключительно на вторичном рынке. В наличии есть как дома без отделки, так и особняки с дизайнерской отделкой под ключ, с площадью от 350 до 1200 квадратных метров.
Инфраструктура коттеджного посёлка организована с учетом желания жителей жить в камерной и уединенной обстановке, поэтому все сервисы вынесены за пределы жилой зоны. На въезде в посёлок расположено административное здание с кафе и магазином. Рядом с посёлком имеются фитнес-центр, ресторан и супермаркет, что обеспечивает жителям весь спектр необходимых услуг, сохраняя при этом тишину и уединение на территории коттеджного посёлка.
Система безопасности поселка обеспечивает безопасное пребывание жителей благодаря многоуровнем мерам: ограждение территории, контроль доступа и круглосуточное патрулирование.
Заявка на просмотр объекта
Вы даете свое согласие на обработку Ваших персональных данных
Узнавайте о новинках первыми, подпишитесь:
Спасибо за обращение! Мы свяжемся с вами в ближайшее время
Ваше имя Ваш телефон

Похожие объекты:

Продажа
225 000 000
775 862 2
21 сот. 290 кв.м.
2 382 412
8 215 2
21 сот. 290 кв.м.
2 200 592
7 588 2
21 сот. 290 кв.м.
1 871 200
6 452 2
21 сот. 290 кв.м.
Одноэтажный дом в американском стиле Новорижское шоссе, 12 км ID: 9235 В избранное:
2 спальни Эксклюзивный
Под ключ с мебелью
Подробнее
Продажа
217 500 000
271 875 2
45 сот. 800 кв.м.
2 302 998
2 879 2
45 сот. 800 кв.м.
2 127 239
2 659 2
45 сот. 800 кв.м.
1 808 827
2 261 2
45 сот. 800 кв.м.
Дом на лесном участке Рублёво-Успенское шоссе, 24 км ID: 2995 В избранное:
5 спален
Без отделки
Подробнее
Продажа
169 000 000
117 сот.
1 789 456
117 сот.
1 652 889
117 сот.
1 405 479
117 сот.
Лесной гектар с отличным ландшафтом Новорижское шоссе, 19 км ID: 5615 В избранное:
Подробнее
Продажа
529 253 528
56.04 сот.
5 604 000
56.04 сот.
5 176 317
56.04 сот.
4 401 507
56.04 сот.
Земельный участок в КП "Агаларов Эстэйт" Новорижское шоссе, 23 км ID: 9220 В избранное:
Газон
Подробнее
Продажа
350 000 000
448 718 2
40 сот. 780 кв.м.
3 705 974
4 751 2
40 сот. 780 кв.м.
3 423 144
4 389 2
40 сот. 780 кв.м.
2 910 755
3 732 2
40 сот. 780 кв.м.
Замечательный дом в Горках-8 Рублёво-Успенское шоссе, 19 км ID: 1391 В избранное:
6 спален Прилесной
Под ключ с мебелью
Подробнее
Продажа
170 000 000
265 625 2
20 сот. 640 кв.м.
1 800 045
2 813 2
20 сот. 640 кв.м.
1 662 670
2 598 2
20 сот. 640 кв.м.
1 413 795
2 209 2
20 сот. 640 кв.м.
Дуплекс в охраняемом поселке как на одну, так и на две семьи Рублёво-Успенское шоссе, 15 км ID: 2900 В избранное:
7 спален
Под ключ с мебелью
Подробнее
Продажа
230 000 000
66 302 2
116.25 сот. 3469 кв.м.
2 435 355
702 2
116.25 сот. 3469 кв.м.
2 249 494
648 2
116.25 сот. 3469 кв.м.
1 912 782
551 2
116.25 сот. 3469 кв.м.
Поместье на большом участке Ильинское шоссе, 15 км ID: 6908 В избранное:
7 спален
Без отделки
Подробнее
Продажа
802 757 850
668 965 2
40 сот. 1200 кв.м.
8 500 000
7 083 2
40 сот. 1200 кв.м.
7 851 301
6 543 2
40 сот. 1200 кв.м.
6 676 091
5 563 2
40 сот. 1200 кв.м.
Роскошный дом на большом участке! Минское шоссе, 20 км ID: 6105 В избранное:
6 спален
Под ключ
Подробнее
В избранном 0
Посмотреть избранное: 0
Скрыть
Отмена