Продажа

Дом под ключ в Старом Свете

7725
Старый Свет, Новорижское шоссе (30 км от МКАД)
89 000 000
942 376
870 457
740 164
Показать цену в
450 кв.м.
15 сот

Актуальность информации и точную стоимость уточняйте у менеджера: +7 (495) 800 67 76
Поделиться:
Дом

Общая плошадь
450 кв.м.

Кол-во спален
4

Отделка
Под ключ

Тип застройки
Охраняемый поселок

Материал стен
Кирпич

Фундамент
Монолитный
Участок

Площадь участка
15 сот.

Ландшафт
Смешанный

Рельеф
Ровный

Разрешенное использование
Для жилищного строительства (ИЖС)

Населённый пункт
Борки (НРШ)

Поселок
Старый Свет

Расстояние до МКАД
30 км.
Коммуникации

Газоснабжение
Магистральный

Водоснабжение
Центральное

Канализация
Центральная
Дополнительно

Охрана
Есть

Бассейн
Нет
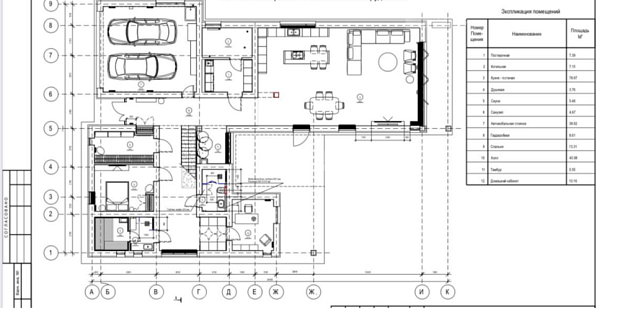
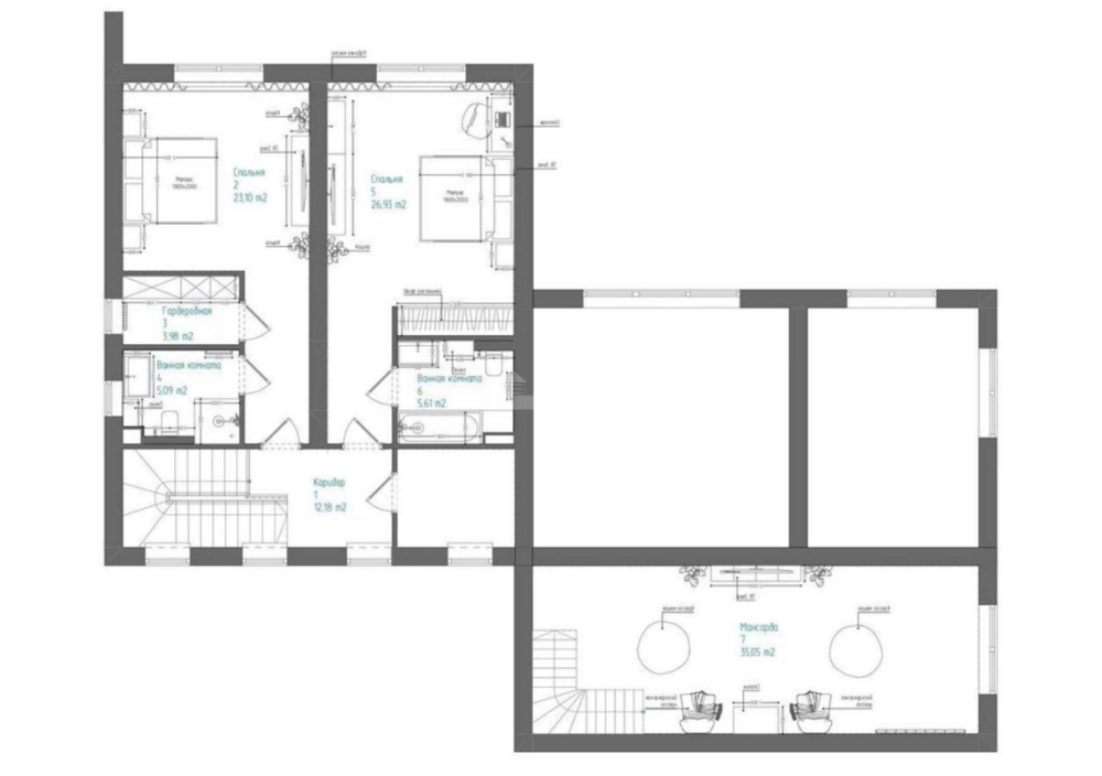
Описание объекта
Новый дом в поселке Старый Свет под ключ без мебели. Коттедж в тихом респектабельном поселке со всей необходимой инфраструктурой, в том числе с детским садом и школой.

Второй свет в гостиной и в кухне , всего в доме 5 с/у, а также 4 мастер-спальни со своими с/у и гардеробными. Одна комната изолированна от дома — может служить гостевой или блоком для персонала.
Теплый пол — везде где плитка. В спальнях натуральный паркет.

Планировка:
1й этаж: прихожая, гардеробная, кухня-гостиная, две мастер-пальни с с/у и гардеробными, терраса;
2й этаж: 2 мастер-спальни с с/у и гардеробными;
мансарда: свободное помещение.
Заявка на просмотр объекта
Вы даете свое согласие на обработку Ваших персональных данных
Узнавайте о новинках первыми, подпишитесь:
Спасибо за обращение! Мы свяжемся с вами в ближайшее время
Ваше имя Ваш телефон

Похожие объекты:

Продажа
330 000 000
397 590 2
15 сот. 830 кв.м.
3 494 204
4 210 2
15 сот. 830 кв.м.
3 227 535
3 889 2
15 сот. 830 кв.м.
2 744 427
3 307 2
15 сот. 830 кв.м.
Новый современный дом Рублёво-Успенское шоссе, 15 км ID: 7857 В избранное:
5 спален
Без отделки
Подробнее
Продажа
160 000 000
277 778 2
25.8 сот. 576 кв.м.
1 694 160
2 941 2
25.8 сот. 576 кв.м.
1 564 866
2 717 2
25.8 сот. 576 кв.м.
1 330 631
2 310 2
25.8 сот. 576 кв.м.
Современный новый дом "под отделку" в КП "Шато Соверен" Новорижское шоссе, 17 км ID: 9130 В избранное:
4 спальни Лесной
Под чистовую
Подробнее
Продажа
200 000 000
145 455 2
24 сот. 1375 кв.м.
2 117 700
1 540 2
24 сот. 1375 кв.м.
1 956 082
1 423 2
24 сот. 1375 кв.м.
1 663 289
1 210 2
24 сот. 1375 кв.м.
Дом под ключ в КП "Немчиновка" Можайское шоссе, 2 км ID: 8077 В избранное:
6 спален Смешанный
Под ключ
Подробнее
Продажа
140 000 000
401 146 2
13 сот. 349 кв.м.
1 482 390
4 248 2
13 сот. 349 кв.м.
1 369 257
3 923 2
13 сот. 349 кв.м.
1 164 302
3 336 2
13 сот. 349 кв.м.
Новый современный дом "под ключ" с мебелью в КП "Заречье" Новорижское шоссе, 21 км ID: 8863 В избранное:
4 спальни Лесной
Под ключ с мебелью
Подробнее
Продажа
345 000 000
556 452 2
23.3 сот. 620 кв.м.
3 653 032
5 892 2
23.3 сот. 620 кв.м.
3 374 242
5 442 2
23.3 сот. 620 кв.м.
2 869 173
4 628 2
23.3 сот. 620 кв.м.
Особняк с дизайнерским ремонтом в тихой части посёлка Новорижское шоссе, 19 км ID: 9172 В избранное:
5 спален Лесной
Под ключ
Подробнее
Продажа
250 000 000
475 285 2
20 сот. 526 кв.м.
2 647 125
5 033 2
20 сот. 526 кв.м.
2 445 103
4 648 2
20 сот. 526 кв.м.
2 079 111
3 953 2
20 сот. 526 кв.м.
Дом под ключ с мебелью Можайское шоссе, 25 км ID: 3173 В избранное:
5 спален
Под ключ с мебелью
Подробнее
Продажа
424 989 450
399 802 2
30 сот. 1063 кв.м.
4 500 000
4 233 2
30 сот. 1063 кв.м.
4 156 571
3 910 2
30 сот. 1063 кв.м.
3 534 401
3 325 2
30 сот. 1063 кв.м.
Красивый дом "под ключ" в посёлке Рассвет. Рублёво-Успенское шоссе, 5 км ID: 8099 В избранное:
7 спален Смешанный
Под ключ
Подробнее
Продажа
79 500 000
422 872 2
2.8 сот. 188 кв.м.
841 786
4 478 2
2.8 сот. 188 кв.м.
777 543
4 136 2
2.8 сот. 188 кв.м.
661 157
3 517 2
2.8 сот. 188 кв.м.
Стильный угловой таунхаус в КП "Futuro Park" Новорижское шоссе, 25 км ID: 9089 В избранное:
3 спальни Газон
Под ключ с мебелью
Подробнее
В избранном 0
Посмотреть избранное: 0
Скрыть
Отмена