Продажа

Дом под ключ с бассейном в Дубраве

2969
Дубрава, Новорижское шоссе (30 км от МКАД)
122 774 730
1 300 000
1 200 787
1 021 049
Показать цену в
452 кв.м.
22 сот

Актуальность информации и точную стоимость уточняйте у менеджера: +7 (495) 800 67 76
Поделиться:
Дом

Общая плошадь
452 кв.м.

Кол-во спален
5

Отделка
Под ключ с мебелью

Тип застройки
Охраняемый поселок

Материал стен
Кирпич

Фундамент
Монолитный

Кровля
Мягкая кровля

Облицовка
Комбинированная
Участок

Площадь участка
22 сот.

Ландшафт
Прилесной

Рельеф
Ровный

Разрешенное использование
Для жилищного строительства (ИЖС)

Населённый пункт
Красновидово

Поселок
Дубрава

Расстояние до МКАД
30 км.
Коммуникации

Электричество
20 кВт.

Газоснабжение
Магистральный

Водоснабжение
Центральное

Канализация
Септик
Дополнительно

Охрана
Есть

Бассейн
Есть
Описание объекта
Прекрасный дом под ключ с мебелью, расположен в окружении многовекового леса, на солнечной поляне, в охраняемом поселке.
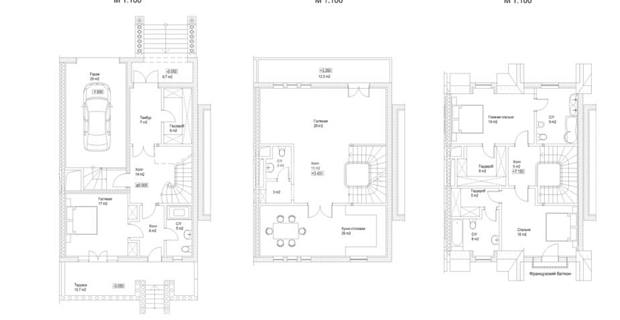
Планировка:
Цоколь: бассейн, квартира для персонала, купель, постирочная, с/у, сауна
1 этаж: второй свет, гостиная, камин, кухня, с/у, спальня, столовая, холл
2 этаж: 2 с/у, 2 спальни, кабинет, холл
мансарда: 2 с/у, 2 спальни, библиотека
Заявка на просмотр объекта
Вы даете свое согласие на обработку Ваших персональных данных
Узнавайте о новинках первыми, подпишитесь:
Спасибо за обращение! Мы свяжемся с вами в ближайшее время
Ваше имя Ваш телефон

Похожие объекты:

Продажа
195 000 000
433 333 2
18.3 сот. 450 кв.м.
2 064 757
4 588 2
18.3 сот. 450 кв.м.
1 907 180
4 238 2
18.3 сот. 450 кв.м.
1 621 707
3 604 2
18.3 сот. 450 кв.м.
Дом в КП "Монтевиль" Новорижское шоссе, 24 км ID: 8056 В избранное:
4 спальни Смешанный
Под ключ
Подробнее
Продажа
1 273 400 611
192.62 сот.
13 483 400
192.62 сот.
12 454 380
192.62 сот.
10 590 165
192.62 сот.
Лесной участок Новорижское шоссе, 19 км ID: 5534 В избранное:
Подробнее
Продажа
110 000 000
145 464 2
12.89 сот. 756.2 кв.м.
1 164 735
1 540 2
12.89 сот. 756.2 кв.м.
1 075 845
1 423 2
12.89 сот. 756.2 кв.м.
914 809
1 210 2
12.89 сот. 756.2 кв.м.
Прекрасный дом в дск Поляна Рублёво-Успенское шоссе, 24 км ID: 9198 В избранное:
3 спальни Парковый
Под ключ с мебелью
Подробнее
Продажа
430 000 000
648 567 2
12.4 сот. 663 кв.м.
4 553 054
6 867 2
12.4 сот. 663 кв.м.
4 205 576
6 343 2
12.4 сот. 663 кв.м.
3 576 071
5 394 2
12.4 сот. 663 кв.м.
Современный дом в престижном месте Рублёво-Успенское шоссе, 11 км ID: 8213 В избранное:
4 спальни Газон
Под ключ с мебелью
Подробнее
Продажа
119 900 000
218 397 2
13 сот. 549 кв.м.
1 269 561
2 312 2
13 сот. 549 кв.м.
1 172 671
2 136 2
13 сот. 549 кв.м.
997 142
1 816 2
13 сот. 549 кв.м.
Новый дом в лесном поселке Новорижское шоссе, 26 км ID: 7523 В избранное:
4 спальни Лесной
Под чистовую
Подробнее
Продажа
170 000 000
265 625 2
20 сот. 640 кв.м.
1 800 045
2 813 2
20 сот. 640 кв.м.
1 662 670
2 598 2
20 сот. 640 кв.м.
1 413 795
2 209 2
20 сот. 640 кв.м.
Дуплекс в охраняемом поселке как на одну, так и на две семьи Рублёво-Успенское шоссе, 15 км ID: 2900 В избранное:
7 спален
Под ключ с мебелью
Подробнее
Продажа
140 000 000
401 146 2
13 сот. 349 кв.м.
1 482 390
4 248 2
13 сот. 349 кв.м.
1 369 257
3 923 2
13 сот. 349 кв.м.
1 164 302
3 336 2
13 сот. 349 кв.м.
Новый современный дом "под ключ" с мебелью в КП "Заречье" Новорижское шоссе, 21 км ID: 8863 В избранное:
4 спальни Лесной
Под ключ с мебелью
Подробнее
Продажа
39 000 000
103 175 2
10 сот. 378 кв.м.
412 951
1 092 2
10 сот. 378 кв.м.
381 436
1 009 2
10 сот. 378 кв.м.
324 341
858 2
10 сот. 378 кв.м.
Дом в Лесном Городке Минское шоссе, 13 км ID: 6286 В избранное:
Без отделки
Подробнее
В избранном 0
Посмотреть избранное: 0
Скрыть
Отмена